
其实开工已经有十来天了,一直没开贴就是懒懒懒
,今天八月十八好日子所以先把贴开下,内容在慢慢添加吧。其实买这房完全是为了照顾父母方便,13年装修的房子现在给老人住,所以在不远处金色阳光买了现在这套。【小区名称】:金色阳光
【所在楼层】:6楼
【建筑面积】:200多点
【装修风格】:新中式
【包工方式】:半包
【装修公司】:八九不离色 装饰设计
【开工日期】:2020年08月3日
【装修预算】:17万++++多少不清楚了,尽力控制吧
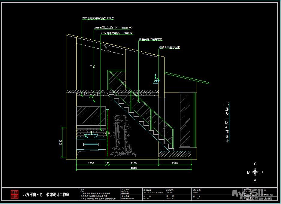
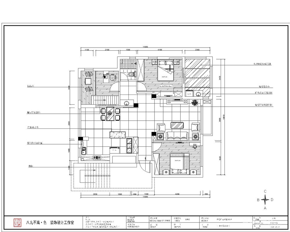
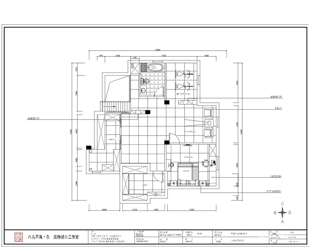
【户型图片】:
[ 本帖最后由 冬日的阳光 于 2020-9-2 15:15 编辑 ]






下面就等你的效果图了,真的好期待









