开工已有好几天了,帖子才开始写,希望能追上大部队的步伐。
本人平时较忙,所以选择做全包省心些。抽了空看过好几家装修后才定了境远装饰,也看了很多,初见设计师,从户型优缺点到生活习惯的方方面面,设计师问的很仔细。约了量房时间,再见是看方案。经过几次讨论调整,确定方案之后就直接签订了设计合同。设计师根据我们最终确定的方案做了施工报价,最终完成全部合同的签订,我们也终于可以放手了。
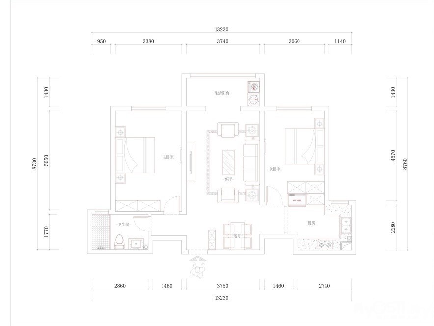
【小区名称】:龙山庄园
【建筑面积】:100平
【装修风格】:简约
【包工方式】:全包
【装修公司】:江苏境远装饰
【装修设计】:郑青
【开工日期】:2021年3月11日
[ 本帖最后由 my0511唐老鸭 于 2021-4-1 08:36 编辑 ]
- 来自 江苏省
- 精华 0
- 注册 2020-5-16























