| 标题
快捷导航

精彩推荐:MY0511客户端下载

    • 中信银行镇江分行

    • 公益体彩 乐善人生

    • 鹏龙鸿蒙

    • 天然石材·人造石

    » 梦溪论坛 » 家庭装修 » [2021万家基和装饰杯]新年后,开启家的幸福之旅
    家庭装修  >  [装修日记] [2021万家基和装饰杯]新年后,开启家的幸福之旅     
    查看: 33186  回复: 6
    [装修日记] [2021万家基和装饰杯]新年后,开启家的幸福之旅      查看: 33186  回复: 6
    • 来自 江苏省
    • 精华 0
    • 注册 2020-5-16
    •  
    [2021万家基和装饰杯]新年后,开启家的幸福之旅

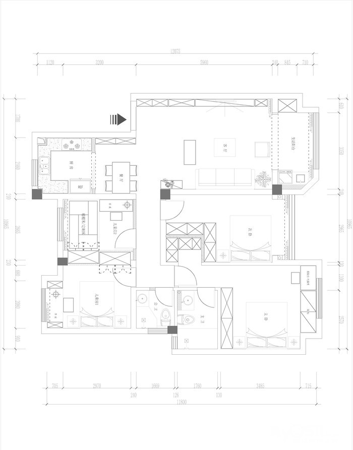
    新年后,匆匆忙忙看了几家装修公司,平时也忙,希望能找到一家靠谱,能省心的装修公司。最后经过几次的比较,选择了境远装饰,主要还是设计师做事认真负责,老板很热情,处处帮我们考虑,站在我们的角度去帮助我们规划。期待幸福之家的形成!



    小区名称】:光明南郡

    【建筑面积】:122平

    【装修风格】:现代简约

    包工方式】:半包

    【装修公司】:江苏境远装饰

    【装修设计】:赵志斌

    【开工日期】:2021年3月3日





    [ 本帖最后由 my0511唐老鸭 于 2021-4-1 08:35 编辑 ]





                      
    • 来自 江苏省
    • 精华 0
    • 注册 2014-10-16
    •  

    欢迎新同学




    • 来自 江苏省
    • 精华 1
    • 注册 2019-8-30
    • 行业 房产建筑
    •  
    • 来自 江苏省
    • 精华 0
    • 注册 2020-5-16
    •  

    今天到房子里看了看,师傅已经在砌墙了




    • 来自 江苏省
    • 精华 0
    • 注册 2020-5-16
    •  







    今天有空就过来看了看,这水电都要结束了




    • 来自 江苏省
    • 精华 0
    • 注册 2019-9-7
    • 行业 房产建筑
    •  






    • 来自 江苏省
    • 精华 0
    • 注册 2020-5-16
    •  

    装修进度还是可以的都开始贴瓷砖了,瓷砖选择也很快,没怎么花太多时间









    查看积分策略说明快速回复主题
    您目前还是游客,请 登录注册
    您目前是游客,本帖已被系统设置了自动关闭,不可回复!

    0/5000字

     
    < >
     

    Powered by Discuz! X 2 0.023973 s 清除 Cookies - 镇江网友之家 - 手机版
    论坛导航 关闭