收藏本站
客户端
扫码下载客户端
官方微信
打开微信扫一扫
登录
|
注册
|
标题
标题
用户
全站首页
|
论坛导航
|
网络问政
|
招聘求职
|
买房租房
|
装修频道
|
生活服务
|
教育
|
相亲
|
亲子
|
美食
|
婚嫁
|
手机客户端
家有学子
|
母婴乐园
快捷导航
精彩推荐:
MY0511客户端下载
中信银行镇江分行
公益体彩 乐善人生
鹏龙鸿蒙
天然石材·人造石
»
梦溪论坛
»
家庭装修
» [2021万家基和装饰杯]云台居新房装修
家庭装修
>
[装修日记]
[2021万家基和装饰杯]云台居新房装修
查看: 79562 回复: 109
快速回复
返回家庭装修
110
1/3
1
2
3
>
[装修日记]
[2021万家基和装饰杯]云台居新房装修
查看: 79562 回复: 109
上一主题
|
下一主题
wc2019
来自 江苏省
精华 0
注册 2018-12-9
[2021万家基和装饰杯]云台居新房装修
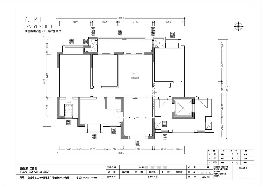
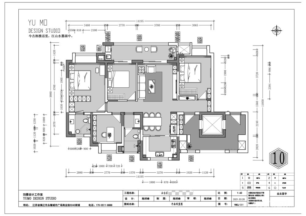
【小区名称】:云台居
【所在楼层】:三楼
【建筑面积】:约138平米
【装修风格】:现代简约
【包工方式】:半包
【装修公司】:羽墨设计
【
装修设计】:陈祥峰
【开工日期】:2021年5月10日
【装修预算】:40万
【户型图片】:
[
本帖最后由 my0511唐老鸭 于 2021-6-7 09:31 编辑
]
已有
0
人打赏
2021-5-15 20:16
1楼
0511家装频道:本地家居服务平台,数万业主共同选择
只看该作者
分享本楼
wc2019
来自 江苏省
精华 0
注册 2018-12-9
占楼
[
本帖最后由 wc2019 于 2021-5-15 20:28 编辑
]
2021-5-15 20:16
2楼
买房、卖房、租房上镇江房产网!
只看该作者
分享本楼
wc2019
来自 江苏省
精华 0
注册 2018-12-9
占楼
2021-5-15 20:16
3楼
[联宇电脑] 电脑组装\维修\升级\企业单位电脑维护!
只看该作者
分享本楼
wc2019
来自 江苏省
精华 0
注册 2018-12-9
占楼
2021-5-15 20:17
4楼
[联宇电脑] 电脑组装\维修\升级\企业单位电脑维护!
只看该作者
分享本楼
wc2019
来自 江苏省
精华 0
注册 2018-12-9
占楼
2021-5-15 20:17
5楼
0511家装频道:本地家居服务平台,数万业主共同选择
只看该作者
分享本楼
wc2019
来自 江苏省
精华 0
注册 2018-12-9
占楼
2021-5-15 20:18
6楼
0511家装频道:本地家居服务平台,数万业主共同选择
只看该作者
分享本楼
wc2019
来自 江苏省
精华 0
注册 2018-12-9
占楼
2021-5-15 20:18
7楼
0511家装频道:本地家居服务平台,数万业主共同选择
只看该作者
分享本楼
wc2019
来自 江苏省
精华 0
注册 2018-12-9
占楼
2021-5-15 20:18
8楼
[联宇电脑] 电脑组装\维修\升级\企业单位电脑维护!
只看该作者
分享本楼
wc2019
来自 江苏省
精华 0
注册 2018-12-9
占楼
2021-5-15 20:18
9楼
0511家装频道:本地家居服务平台,数万业主共同选择
只看该作者
分享本楼
wc2019
来自 江苏省
精华 0
注册 2018-12-9
已确定材料
防 水:西卡防水
水 管:进口芬驰管
电 线:远东电线
油 漆:德国都芳漆
空 调:格力
定 制:惠尔馨定制
门 窗:帕莱德门窗
[
本帖最后由 wc2019 于 2021-5-16 09:36 编辑
]
2021-5-15 20:19
10楼
找工作,就上MY0511!
只看该作者
分享本楼
wc2019
来自 江苏省
精华 0
注册 2018-12-9
占楼
2021-5-15 20:19
11楼
找工作,就上MY0511!
只看该作者
分享本楼
镇江德国都芳漆
来自 江苏省
精华 0
注册 2014-5-17
行业 商业贸易
恭喜开帖
---发自华为---
2021-5-15 20:20
12楼
[联宇电脑] 电脑组装\维修\升级\企业单位电脑维护!
只看该作者
分享本楼
wc2019
来自 江苏省
精华 0
注册 2018-12-9
新房开工啦
2021-5-15 20:30
13楼
0511家装频道:本地家居服务平台,数万业主共同选择
只看该作者
分享本楼
wc2019
来自 江苏省
精华 0
注册 2018-12-9
根据陈总的设计方案开始施工
敲墙
2021-5-15 20:55
14楼
0511家装频道:本地家居服务平台,数万业主共同选择
只看该作者
分享本楼
镇江德尔地板
专版版主
来自 江苏省
精华
1
注册 2019-8-30
行业 房产建筑
2021-5-15 21:12
15楼
[联宇电脑] 电脑组装\维修\升级\企业单位电脑维护!
只看该作者
分享本楼
XPLWJ
来自 江苏省
精华 0
注册 2005-6-10
恭喜开工,装友加油!
---发自vivo---
2021-5-16 08:31
16楼
找工作,就上MY0511!
只看该作者
分享本楼
芬驰水管
来自 江苏省
精华 0
注册 2018-4-27
行业 基础设施
恭喜楼主开工大吉
---发自梦溪论坛手机客户端---
2021-5-16 10:43
17楼
[联宇电脑] 电脑组装\维修\升级\企业单位电脑维护!
只看该作者
分享本楼
wc2019
来自 江苏省
精华 0
注册 2018-12-9
现场沟通封窗
2021-5-16 14:00
18楼
0511家装频道:本地家居服务平台,数万业主共同选择
只看该作者
分享本楼
wc2019
来自 江苏省
精华 0
注册 2018-12-9
[quote]原帖由
wc2019
于 2021-5-16 14:00 发表
现场沟通封窗
[attach]28032952[/attach]
2021-5-16 14:02
19楼
买房、卖房、租房上镇江房产网!
只看该作者
分享本楼
wc2019
来自 江苏省
精华 0
注册 2018-12-9
现场测量
[
本帖最后由 wc2019 于 2021-5-16 21:17 编辑
]
2021-5-16 14:07
20楼
买房、卖房、租房上镇江房产网!
只看该作者
分享本楼
星月神防盗门A
来自 江苏省
精华 0
注册 2019-11-21
行业 基础设施
恭喜楼主开工大吉
---发自iPhone XS Max---
2021-5-16 15:19
21楼
MY0511相亲,一分钟注册,享一辈子幸福!
只看该作者
分享本楼
本杰明进口涂料
来自 江苏省
精华 0
注册 2020-8-13
2021-5-16 17:25
22楼
[联宇电脑] 电脑组装\维修\升级\企业单位电脑维护!
只看该作者
分享本楼
daidaizhitu
来自 江苏省
精华 0
注册 2014-5-22
豪宅啊
---发自华为---
2021-5-17 09:31
23楼
MY0511相亲,一分钟注册,享一辈子幸福!
只看该作者
分享本楼
吃的是草
来自 江苏省
精华 0
注册 2007-3-19
行业 IT 通信
飘窗可以砸的吗?有没有影响啊?
2021-5-19 13:54
24楼
找工作,就上MY0511!
只看该作者
分享本楼
镇江风尚大宅
来自 江苏省
精华
87
注册 2017-9-7
开工大吉
2021-5-19 15:41
25楼
找工作,就上MY0511!
只看该作者
分享本楼
东墨装饰设计
专版版主
来自 江苏省
精华
93
注册 2021-4-14
恭喜开帖
---发自iPhone XR---
2021-5-23 11:40
26楼
0511家装频道:本地家居服务平台,数万业主共同选择
只看该作者
分享本楼
猥琐甲亢鸡
来自 江苏省
精华 0
注册 2016-6-6
邻居好!
2021-5-24 16:17
27楼
MY0511相亲,一分钟注册,享一辈子幸福!
只看该作者
分享本楼
林内专卖店
来自 江苏省
精华 0
注册 2021-5-28
---发自iPhone 12---
2021-5-30 13:46
28楼
[联宇电脑] 电脑组装\维修\升级\企业单位电脑维护!
只看该作者
分享本楼
wc2019
来自 北京
精华 0
注册 2018-12-9
昨天水电进场了
---发自华为---
2021-6-1 07:37
29楼
[联宇电脑] 电脑组装\维修\升级\企业单位电脑维护!
只看该作者
分享本楼
jinjing5566
来自 江苏省
精华 0
注册 2015-8-2
恭喜楼主开工大吉
---发自vivo---
2021-6-5 12:41
30楼
0511家装频道:本地家居服务平台,数万业主共同选择
只看该作者
分享本楼
摩卡生活客服
来自 江苏省
精华 0
注册 2018-1-25
行业 房产建筑
开工大吉
---发自iPhone 12---
2021-6-5 17:57
31楼
0511家装频道:本地家居服务平台,数万业主共同选择
只看该作者
分享本楼
wc2019
来自 江苏省
精华 0
注册 2018-12-9
进口芬驰管
远东电线
---发自华为---
2021-6-6 13:20
32楼
买房、卖房、租房上镇江房产网!
只看该作者
分享本楼
wc2019
来自 江苏省
精华 0
注册 2018-12-9
今天已经静音施工,明天不让施工了,789停工
---发自华为---
2021-6-6 13:24
33楼
[联宇电脑] 电脑组装\维修\升级\企业单位电脑维护!
只看该作者
分享本楼
wc2019
来自 江苏省
精华 0
注册 2018-12-9
---发自华为---
2021-6-6 15:54
34楼
找工作,就上MY0511!
只看该作者
分享本楼
wc2019
来自 北京
精华 0
注册 2018-12-9
西卡防水
---发自华为---
2021-6-6 16:52
35楼
买房、卖房、租房上镇江房产网!
只看该作者
分享本楼
wc2019
来自 北京
精华 0
注册 2018-12-9
高考不允许施工
---发自华为---
2021-6-7 18:31
36楼
[联宇电脑] 电脑组装\维修\升级\企业单位电脑维护!
只看该作者
分享本楼
wc2019
来自 北京
精华 0
注册 2018-12-9
早上好
---发自华为---
2021-6-8 07:01
37楼
MY0511相亲,一分钟注册,享一辈子幸福!
只看该作者
分享本楼
wc2019
来自 江苏省
精华 0
注册 2018-12-9
---发自华为---
2021-6-10 11:56
38楼
买房、卖房、租房上镇江房产网!
只看该作者
分享本楼
樱花慧
来自 江苏省
精华 0
注册 2008-12-29
行业 其它
开工大吉
2021-6-15 16:42
39楼
[联宇电脑] 电脑组装\维修\升级\企业单位电脑维护!
只看该作者
分享本楼
森香木门楼梯
来自 江苏省
精华 0
注册 2018-4-17
---发自iPhone XR---
2021-6-15 19:10
40楼
[联宇电脑] 电脑组装\维修\升级\企业单位电脑维护!
只看该作者
分享本楼
suihming
来自 江苏省
精华 0
注册 2013-8-12
坐等更新
2021-6-23 16:58
41楼
0511家装频道:本地家居服务平台,数万业主共同选择
只看该作者
分享本楼
wc2019
来自 江苏省
精华 0
注册 2018-12-9
这阵子有点忙,没来得及更新,补发一下水电图,目前水电已经结束,瓦工明天进场了。
---发自梦溪论坛手机客户端---
2021-6-30 12:29
42楼
找工作,就上MY0511!
只看该作者
分享本楼
wc2019
来自 江苏省
精华 0
注册 2018-12-9
目前,师傅们的表现我还是比较满意的,接下来就看瓦工师傅了。
---发自梦溪论坛手机客户端---
2021-6-30 12:34
43楼
[联宇电脑] 电脑组装\维修\升级\企业单位电脑维护!
只看该作者
分享本楼
wc2019
来自 江苏省
精华 0
注册 2018-12-9
瓦工师傅一大早就来了,期待大变样
---发自梦溪论坛手机客户端---
2021-7-1 09:08
44楼
找工作,就上MY0511!
只看该作者
分享本楼
薄凉清浅
来自 江苏省
精华 0
注册 2015-2-4
2021-7-4 17:24
45楼
买房、卖房、租房上镇江房产网!
只看该作者
分享本楼
suihming
来自 江苏省
精华 0
注册 2013-8-12
2021-7-5 11:41
46楼
MY0511相亲,一分钟注册,享一辈子幸福!
只看该作者
分享本楼
wc2019
来自 江苏省
精华 0
注册 2018-12-9
现阶段师傅开始贴砖了,手艺不错,这么热的天,师傅辛苦了。
---发自梦溪论坛手机客户端---
2021-7-7 16:03
47楼
[联宇电脑] 电脑组装\维修\升级\企业单位电脑维护!
只看该作者
分享本楼
wc2019
来自 江苏省
精华 0
注册 2018-12-9
空调防水
---发自梦溪论坛手机客户端---
2021-7-8 09:53
48楼
找工作,就上MY0511!
只看该作者
分享本楼
wc2019
来自 江苏省
精华 0
注册 2018-12-9
今天天终于放晴了,温度也不高,是个施工的好日子
,放两张瓷砖细节图
---发自梦溪论坛手机客户端---
2021-7-9 10:19
49楼
找工作,就上MY0511!
只看该作者
分享本楼
开心木门
来自 江苏省
精华 0
注册 2015-6-22
行业 房产建筑
2021-7-10 15:21
50楼
0511家装频道:本地家居服务平台,数万业主共同选择
只看该作者
分享本楼
返回家庭装修
110
1/3
1
2
3
>
快速回复主题
游客
您目前还是游客,请
登录
或
注册
您目前是游客,本帖已被系统设置了自动关闭,不可回复!
文明交流,理性发言
0/5000字
<
>
请在打开的新窗口中支付完成打赏
我已完成支付打赏
支付失败重新支付
其他金额
打赏金额:
元
确定
支付打赏
提 现
打赏人
打赏金额(元)
打赏时间
Powered by
Discuz! X 2
0.090084 s
清除 Cookies
-
镇江网友之家
-
手机版
论坛导航
关闭
吃喝玩乐
饮食男女
镇江钓友之家
菜菜鸟户外
镇江单车俱乐部
镜头里的镇江
畅游天下
猫狗总动员
视觉Coffeeshop摄影部落
花鸟鱼虫
婚姻.亲子.家庭
家有学子
谈婚论嫁
女性天地
母婴乐园
婚姻生活
梦溪佳缘
装修
家庭装修
装修招标
镇江室内设计师交流
装修商家直通车
你好,镇江!
百姓话题
我要买房
0511爱心家园
市场监管•12315热线
分类信息
生活服务
闲置转让
镇江二手房/镇江租房
镇江招聘求职
教育培训
镇江二手车
商铺厂房写字楼租售
宠物市场
运动健身
卡券交易
电脑维修升级
杂货铺
其他分类信息区
兴趣爱好
HiFi音响江城沙龙
镇江市美术家协会
我爱模型
车友俱乐部
车迷之家
汽车驾培中心
运动俱乐部
镇江市冬泳、铁人三项协会
聚焦足球
镇江羽毛球
镇江乒乓球协会
镇江网球协会
镇江市自行车运动协会
热爱篮球
动力机车
合作栏目
维权热线
天翼时代
色觉影像摄影工作室
站务区
疑问与建议
网络问政
市政府工作部门
垂直管理部门
党群工作部门
其他重点单位
辖市(区)