| 标题
快捷导航

精彩推荐:MY0511客户端下载

    • 中信银行镇江分行

    • 公益体彩 乐善人生

    • 鹏龙鸿蒙

    • 天然石材·人造石

    » 梦溪论坛 » 家庭装修 » [2021万家基和装饰杯]蛋花妹妹の舒适小窝诞生记,装修时的买买买超级纠结!
    家庭装修  >  [装修日记] [2021万家基和装饰杯]蛋花妹妹の舒适小窝诞生记,装修时的买买买超级纠结!     
    查看: 59578  回复: 45
    [装修日记] [2021万家基和装饰杯]蛋花妹妹の舒适小窝诞生记,装修时的买买买超级纠结!      查看: 59578  回复: 45
    • 来自 江苏省
    • 精华 56
    • 注册 2007-10-4
    • 行业 信息咨询
    • 我是车主
    •  
    [2021万家基和装饰杯]蛋花妹妹の舒适小窝诞生记,装修时的买买买超级纠结!


    此帖已成功报名2021家装日记大赛。更多家装信息关注MY0511家装频道


    【小区名称】:远洋三期
    【所在楼层】:21层
    【建筑面积】:115
    【装修风格】:现代简约
    【包工方式】:全包
    【装修公司】:舒雅装饰
    【开工日期】:2021年6月9日
    【装修预算】:30w
    【户型图片】:

    拖了好久的家装日记,终于在装修公司跟我说接下来就是一天一变之后,赶紧动笔开始记录了!
    看了版里好多大拿们的笔记,瞬间感觉自己好像连家装的门都还没有摸着!
    可能会走弯路、可能会有遗憾,但。。。就这么开造吧!
    如有错漏,望提点,请轻拍

    装修进度条
    5月  确定装修公司及装修模式
    6月9日 正式开工
    6月15日 进场墙体改造
    6月18日 我们定好了冰箱 洗衣机 洗碗机的尺寸
    6月26日 装修公司、地暖、门窗一起 沟通了一些现场的突发情况解决方案
    7月8日 水电进场 开槽
    7月12日 中央空调进场
    7月14日 水电材料进场
    7月24日 水电验收
    7月26日 卫生间填满结束
    7月28日 出了点小意外~客厅进水~把人家楼下客厅都弄进水了~好在邻居很好,顺利解决了
    7月29日 木工进场
    7月31日 选定了地砖、墙砖、卫生间瓷砖的样式
    8月1日 窗框和玻璃进场
    8月3日 卫生间做防水 地暖材料进场
    8月4日 铺地暖
    8月10日(左右)卫生间开始贴砖
    8月13日 发现入户门是歪的,开始和物业“纠缠”
    8月22日 卧室地板砖开帖
    8月25日 美缝开始进场
    8月28日 美缝结束
    8月29——9月5日 一直在讨论鞋柜、衣柜、电视柜的尺寸、样式、颜色
    9月6日  确定好柜子的所有细节
    9月7日 木工师傅开始打柜子
    9月12日 衣柜 吊柜 鞋柜 基本完工 电视柜完成40% 通知电工师傅移位
    9月17日 电工师傅上门移动需要改动的地方
    9月18日 木工师傅完工
    9月19日 现场发现一些细节问题 待改进 油漆进场换漆工
    9月27日 装修师傅进场
    10月11日 整理墙面 其他无变化
    10月17日 隐形门三个色板小样出来了 颜色和我们当初定的 可以说是毫无关系。。。装修公司说颜色很洋气,思来想去还是否决了,让重修烤色。
    10月21日 房间门做好了 送到了现场 待安装 三遍腻子 大白墙初现
    10月22日 装修公司说浴霸这些可以买起来 安装了 开始马爸爸家看浴霸 凉霸 灯
    11月9日 装修公司说橱柜 房门都要开始安装了
    11月10日 房门装好了
    11月15日 淋浴房好了
    11月25日 橱柜没有有按图施工 各种返工
    11月30日 橱柜师傅终于上门修改好了样子 煤气表安装
    12月2日 橱柜台面最终确认



    [ 本帖最后由 爱JJ的所有sy 于 2021-12-2 15:17 编辑 ]





                      
    • 来自 江苏省
    • 精华 56
    • 注册 2007-10-4
    • 行业 信息咨询
    • 我是车主
    •  

    避坑指南
    1.效果图
    别相信设计师说的:效果图不做准,后面都可以随时改!
    *你的设计费是给了费用的,开始就要全部想好,不然走一步想一步,水电尤其是插座之类的位置都会有问题。然后就是尔等都是平常人,脑补的效果真的没有3d的来的直观。

    2.报价单
    装修公司会说:全包这个后期你们要换,我们都是可以减的!
    *如果你有后期自购的打算,一定就要他们把价格写清楚,前往不要采用什么包工包料全写在一起的模式,后面有增减项,就会扯不清楚。

    [ 本帖最后由 爱JJ的所有sy 于 2021-9-22 11:05 编辑 ]




    • 来自 江苏省
    • 精华 56
    • 注册 2007-10-4
    • 行业 信息咨询
    • 我是车主
    •  

    前期准备(确定装修公司及装修模式)

    也曾在设计工作室VS装修公司,半包VS全包中间纠结了许久...许久...

    而我们的新家,我这个外行都知道好多都是承重墙呀,不能动,给设计师留的发挥空间就不大。
    更多的是,我们表达清楚我们的诉求,执行即可。所以定了装修公司,价格为王!

    版里蹲了N久,也听了很多小伙伴给的建议,家有奶娃+双职工+周末夫妻+装修小白,半包PASS,直接选择了全包!

    至于为什么选择舒雅装饰,单纯是因为量房的时候,设计师李工给我们的感觉是最好的。

    前前后后也有4 5家装修公司在现场量房,问的最多的问题就是:你们想怎么弄?这个你要吗?你想放哪边?然后就没有然后了~

    只有舒雅的李工是进门先问了我们的需求,然后结合我们家的状况,给出了他的建议。
    没有签单之前,我们家设计稿前前后后的改了N+1次。很有耐性的一个小伙子,基本我们的户型能想到的设计方案都给我们说明了利与弊,最终的方案就是在权衡之后的选择。

    [ 本帖最后由 爱JJ的所有sy 于 2021-7-26 15:10 编辑 ]




    • 来自 江苏省
    • 精华 0
    • 注册 2015-10-17
    •  
    • 来自 江苏省
    • 精华 74
    • 注册 2013-3-12
    • 行业 学生
    • 我们爱旅行
    •  

    围观 我主要关心蛋花妹妹的房间




    • 来自 江苏省
    • 精华 0
    • 注册 2014-5-17
    • 行业 商业贸易
    •  

    恭喜楼主开帖




    • 来自 江苏省
    • 精华 0
    • 注册 2014-10-16
    •  

    开工大吉




    • 来自 江苏省
    • 精华 0
    • 注册 2021-4-12
    •  
    • 来自 江苏省
    • 精华 56
    • 注册 2007-10-4
    • 行业 信息咨询
    • 我是车主
    •  

    先来补点前面的进度照片
    开工图

    门窗商家上门测量尺寸

    砸墙 墙体改造 我们改造的地方不多

    水电开槽

    水电进场施工了


    上周水电验收



    [ 本帖最后由 爱JJ的所有sy 于 2021-7-27 14:23 编辑 ]




    • 来自 江苏省
    • 精华 9
    • 注册 2005-10-29
    • 晒家
    •  

    过来支持下




    • 来自 江苏省
    • 精华 56
    • 注册 2007-10-4
    • 行业 信息咨询
    • 我是车主
    •  

    前天一场大雨 因为窗户被要求提前拆走,家里“养了鱼”,

    昨天傍晚的雨也着实不小,还好还好,早上去看没有积水。

    看到了板材已经到位了,下一步应该是开始吊顶了



    [ 本帖最后由 爱JJ的所有sy 于 2021-7-29 09:02 编辑 ]




    • 来自 江苏省
    • 精华 6
    • 注册 2013-5-21
    • 行业 IT 通信
    •  

    来支持一下蛋花的家,进度可以




    • 来自 江苏省
    • 精华 0
    • 注册 2020-8-13
    •  






    • 来自 江苏省
    • 精华 56
    • 注册 2007-10-4
    • 行业 信息咨询
    • 我是车主
    •  


    QUOTE:
    原帖由 悦悦动心 于 21-7-26 16:19 发表
    围观 我主要关心蛋花妹妹的房间
    我在看各种儿童房的造型




    • 来自 江苏省
    • 精华 56
    • 注册 2007-10-4
    • 行业 信息咨询
    • 我是车主
    •  


    QUOTE:
    原帖由 my0511小妖 于 21-7-27 14:20 发表
    过来支持下
    补作业 补作业




    • 来自 江苏省
    • 精华 56
    • 注册 2007-10-4
    • 行业 信息咨询
    • 我是车主
    •  


    QUOTE:
    原帖由 my0511菲雪 于 21-7-29 09:29 发表
    来支持一下蛋花的家,进度可以
    我也觉得进度还可以舒雅的王总说要一天一变了 就速度抓紧时间开帖了




    • 来自 江苏省
    • 精华 56
    • 注册 2007-10-4
    • 行业 信息咨询
    • 我是车主
    •  

    师傅在刷防火涂料





    • 来自 江苏省
    • 精华 56
    • 注册 2007-10-4
    • 行业 信息咨询
    • 我是车主
    •  

    窗户进场了 期待我们家的大落地玻璃窗的成品模样




    • 来自 江苏省
    • 精华 56
    • 注册 2007-10-4
    • 行业 信息咨询
    • 我是车主
    •  

    周末带着“业主”一起去选了瓷砖,在地板砖和地板之间纠结了
    实体店里的瓷砖基本都大差不差,现在基本都是灰色系当道,但是还是没有选灰色,虽然不显脏,但是后期家具搭配总觉得很考验审美,而且蛋花妹妹还小,总希望家里的颜色明亮一些,丰富一些,感觉会有利于她的身心发展白色和她以后的一些五彩斑斓的玩具也更好搭一些




    • 来自 江苏省
    • 精华 56
    • 注册 2007-10-4
    • 行业 信息咨询
    • 我是车主
    •  


    QUOTE:
    原帖由 镇江风尚大宅 于 2021-8-5 14:55 发表
    我们家楼下是你们家装的 主卧的设计蛮有想法的




    • 来自 江苏省
    • 精华 56
    • 注册 2007-10-4
    • 行业 信息咨询
    • 我是车主
    •  

    真的是一天一变了,地暖铺好 找平 大玻璃安好 真的贼棒虽然麻麻说走到窗边有点杵 但是风景是真的好




    • 来自 江苏省
    • 精华 56
    • 注册 2007-10-4
    • 行业 信息咨询
    • 我是车主
    •  

    卫生间瓷砖开始施工了 今天去的时候和师傅闲聊,师傅说现在选白色的人家很少了,全都是灰色系现场还看到了很多花砖被用作了杂砖,师傅说花砖以前很流行。果然潮流这种事儿,谁也说不准。选定离手,自己喜欢的就是最流行的




    • 来自 江苏省
    • 精华 0
    • 注册 2016-3-11
    •  

    选定离手,真的是,流行这个东西和喜好这种东西,说变就变。




    • 来自 江苏省
    • 精华 0
    • 注册 2019-11-21
    • 行业 基础设施
    •  

    个人喜欢是最好




    • 来自 江苏省
    • 精华 56
    • 注册 2007-10-4
    • 行业 信息咨询
    • 我是车主
    •  

    地砖开始铺贴了,然后发现一件郁闷的事情,装修公司发现入户门是斜的,这个真的麻烦死了,物业说要等厂家,但是因为疫情啥时候来也不确定,这个不调整好,过门石就铺不起来




    • 来自 江苏省
    • 精华 56
    • 注册 2007-10-4
    • 行业 信息咨询
    • 我是车主
    •  

    一眨眼 瓷砖 地板砖都铺好了
    网上说的翻车 或者扔房子系列是不是要开始了
    感觉地砖 瓷砖没有翻车 希望后面墙漆 柜子 也都不要翻车呢




    • 来自 江苏省
    • 精华 56
    • 注册 2007-10-4
    • 行业 信息咨询
    • 我是车主
    •  

    有一阵子没来更新了,先把美缝的效果图发上,这个是地板砖的效果,十分满意
    地砖因为美缝师傅已经把收尾的保护膜铺上了,所以看不到最终效果,但我感觉大概率也应该不会翻车了
    美缝师傅说后期马桶 橱柜还可以来帮我们处理一下,感觉还是挺不错的




    • 来自 江苏省
    • 精华 56
    • 注册 2007-10-4
    • 行业 信息咨询
    • 我是车主
    •  

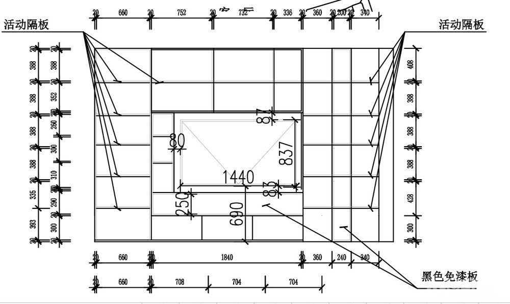
    至于很长很长一段时间没更新,是因为一直在纠结全屋的柜子从布局到颜色,都十分的纠结。
    这里被啪啪啪打脸装修才开始的,因为设计师跟我说效果图上的效果可以不是最终的定稿,只要没做就都能改,我还贼郁闷的想着设计费真好赚。
    到定柜子样式的时候就郁闷了,尤其是效果图原本会出效果的鞋柜和电视柜,全凭脑海想象,真的是一个头两个大。
    先来说说鞋柜,效果图的设计是中规中矩,任何人家都适用的不会犯错款,但是屋子是自己住,还是前面那句话:买定离手,自己开心最好。
    我们家鞋柜款只有一米,但是我们的需求点是要有换鞋凳,我跟我老公的鞋并不多。
    最终的定稿,还是选择了有换鞋凳格局(图一)
    这里最大的bug就是电工的电箱放的线,并没有留有可改动的空间,好在有补救方式,为了需求,妥协
    至于电视柜也是难产的一个地方。
    有宝宝的妈妈都知道,孩子的东西真的是又杂乱又多。所以思前想后还是把客厅的空间给利用起来。一整面的收纳空间,杂物、玩具甚至电器都能全都放下。图二是我们的最终定稿,开始的效果图是好看第一位的大理石地台,但真的是中看不中用。可没了效果图看效果,我真的只能祈祷它千万不要翻车
    最后说说颜色
    全包图省事儿,这些时候也不能省
    我们之前被设计师催的心里急躁,差一点就按照他的推荐给定了(里面浅原木+开放格黑色),错肯定不是错,一定不会翻车,但总觉得有点怪怪的。
    赶紧叫停了线上沟通,坚持等到周末现场沟通。然后就发现了很多从来没有发给过我们的颜色,最终的颜色确定为了全部板子都用意式鸡翅灰,一顺色,治愈强迫症,搭配白色柜门,脑补的很漂亮,希望不要翻车
    划重点:千万别被装修公司的赶进度绑架,自己的房子即便迟一点,但住的舒心最重要




    • 来自 江苏省
    • 精华 56
    • 注册 2007-10-4
    • 行业 信息咨询
    • 我是车主
    •  

    第一个翻车来的猝不及防 鞋柜的尺寸有问题,左侧的距离千叮万嘱要大一些能放下两双鞋,最后还是内径只有36,尴尬的尺寸。
    好在还能改,坚持让师傅把左侧内径放到了45!


    [ 本帖最后由 爱JJ的所有sy 于 2021-9-13 11:02 编辑 ]




    • 来自 江苏省
    • 精华 94
    • 注册 2007-1-29
    • 行业 广告媒体
    • 烘焙达人 我们爱旅行
    •  






    • 来自 江苏省
    • 精华 56
    • 注册 2007-10-4
    • 行业 信息咨询
    • 我是车主
    •  

    电视柜好了 是我想要的那种样子 然后插座位置又要移 因为柜子的样式变过了
    在提醒一下 真的 前面得什么都决定好 不过好在能改 都不是大事儿 但是工期就是这么一天天的被消耗的



    [ 本帖最后由 爱JJ的所有sy 于 2021-9-22 10:39 编辑 ]




    • 来自 江苏省
    • 精华 56
    • 注册 2007-10-4
    • 行业 信息咨询
    • 我是车主
    •  

    紧恰恰的工期里面还是出了岔子  这一堆屋子的杂物是油漆师傅弄的 地上没有铺保护膜就这么堆上去了 心疼我们家的瓷砖,老公当时就要求换师傅,装修公司给的答复是 这位师傅手艺很好 如果换 因为没有师傅,要等20天


    [ 本帖最后由 爱JJ的所有sy 于 2021-9-22 10:52 编辑 ]




    • 来自 江苏省
    • 精华 0
    • 注册 2018-4-27
    • 行业 基础设施
    •  
    • 来自 江苏省
    • 精华 56
    • 注册 2007-10-4
    • 行业 信息咨询
    • 我是车主
    •  

    9.27油漆师傅进场 然后做了两天的等工作就到了国庆 八号去现场看 没有一点变化 马上下班去看下





    • 来自 江苏省
    • 精华 56
    • 注册 2007-10-4
    • 行业 信息咨询
    • 我是车主
    •  

    大白墙一出 好像就有了家的感觉了 然后翻车也开始慢慢来了
    门的线条比预想的要矮了不少,上半部分留空太多,好在后期用个文艺小门牌可以修饰不少
    完全不记得淋浴门装修公司有没有问过我们要透明的还是磨砂的,然后透明的移门,也是看的脑壳疼。只能寄希望于老公的细嘛和万能的淘宝了
    橱柜还没有到,心中又是抖抖嗖嗖的




    • 来自 江苏省
    • 精华 56
    • 注册 2007-10-4
    • 行业 信息咨询
    • 我是车主
    •  

    讨厌不守时的人 假白请了 等师傅的这个时间就来更新一下帖子吧
    从大白墙开始 好像才找到了装修的感觉 各种看软装 毕竟装修小白 硬装就只能看看热闹 祈祷装修公司靠谱了
    厨房这个柜门 隔着保护膜看 好像还不错的样子
    可以有些边边角落多出来的一些逢 强迫症就真的觉得好难受




    • 来自 江苏省
    • 精华 56
    • 注册 2007-10-4
    • 行业 信息咨询
    • 我是车主
    •  

    卫生间的吊顶也上去了 现在就开始纠结 浴霸是装在淋浴区里面还是外面呢




    • 来自 江苏省
    • 精华 56
    • 注册 2007-10-4
    • 行业 信息咨询
    • 我是车主
    •  

    蛋花妹妹的房间第一时间想到的是高低床,但是很多人说上面会闲置 还不如打个柜子+正常床,我妥协了,打了柜子。然后参观了同小区同户型的房子,后悔的一米,打了柜子+1.5的常规床,房间就小的可怜蛋花妹妹还小,房间还是需要充足的玩耍区域的,超级后悔了之前的妥协,小朋友的房间还是不能按成人化的去给她配置现在只能寄希望于万能的马爸爸 看看有没有补救的空间了




    • 来自 江苏省
    • 精华 0
    • 注册 2005-6-10
    •  


    QUOTE:
    原帖由 爱JJ的所有sy 于 2021-11-29 17:33 发表
    卫生间的吊顶也上去了 现在就开始纠结 浴霸是装在淋浴区里面还是外面呢
    如果是暖风机建议放在干区,否则洗完澡身上有水,风一吹会冷!
    如果是灯的浴霸建议放淋浴区!




    • 来自 江苏省
    • 精华 0
    • 注册 2021-8-7
    •  

    就问一个,30W,还剩多少了




    • 来自 江苏省
    • 精华 56
    • 注册 2007-10-4
    • 行业 信息咨询
    • 我是车主
    •  


    QUOTE:
    原帖由 XPLWJ 于 21-11-29 19:19 发表
    如果是暖风机建议放在干区,否则洗完澡身上有水,风一吹会冷!
    如果是灯的浴霸建议放淋浴区!
    收到~~感谢经验分享




    • 来自 江苏省
    • 精华 56
    • 注册 2007-10-4
    • 行业 信息咨询
    • 我是车主
    •  


    QUOTE:
    原帖由 火云斜神 于 21-11-29 22:21 发表
    就问一个,30W,还剩多少了
    我马上来算一算




    • 来自 江苏省
    • 精华 56
    • 注册 2007-10-4
    • 行业 信息咨询
    • 我是车主
    •  

    再来请教一个问题~橱柜是先做台面再装集成灶还是先装集成灶再做台面呢?感觉装修公司和商家在群里各说各有理,最后以商家:后做台面要加收二次安装费,结束争论




    • 来自 江苏省
    • 精华 0
    • 注册 2018-4-27
    • 行业 基础设施
    •  
    • 来自 江苏省
    • 精华 56
    • 注册 2007-10-4
    • 行业 信息咨询
    • 我是车主
    •  

    一直在纠结阳台晾衣服的问题~自己想了几种方案,同样在纠结的也可以参考参考~若不对 轻拍
    1.老式固定晾衣架
    优势:①价格低 ②比较薄 隐形
    劣势:晾晒不方便
    2.落地折叠衣架
    优势:①价格不高 ②可以折叠 阳台空间会比较清爽 ③晾晒容量 从衣服到鞋子到被子 枕头都能晒
    劣势:①收纳不方便
    3.嵌入式电动衣架
    优势:①隐形 美观
    劣势:需要前期做好功课
    4.电动晾衣架
    优势:①晾晒方便 ②
    劣势:①不够隐形 美观
    本来想着落地折叠的应该最适合我,但是考虑到长辈们使用的便捷性 还是电动的会好一些 晒衣服的时候也不用举手撑杆子
    对于电动晾衣架我的要求就是1要满足夜晚照明 2要薄 隐形美观 3不需要烘干 消毒这些功能 价格贵 买过的朋友也说基本不会用
    因为一开始没有考虑好~嵌入式的最佳隐形方案,我是没办法了~看了一些衣架品牌,第一时间想到的是好太太 但是有点厚
    然后今天在社群里看到了盼盼的有秒杀 649如图片基础款 挺薄的
    可以免费囤货至2022年3月份 如果到期还没有通知发货,会自动退款
    感觉是不是可以入一个了~






    查看积分策略说明快速回复主题
    您目前还是游客,请 登录注册
    您目前是游客,本帖已被系统设置了自动关闭,不可回复!

    0/5000字

     
    < >
     

    Powered by Discuz! X 2 0.060619 s 清除 Cookies - 镇江网友之家 - 手机版
    论坛导航 关闭