【工地名称】:中建大观
【建筑面积】:300㎡
【建筑类型】:别墅
【设计风格】:现代风格
【设计师】 :夏雨
设计说明:
以有形空间,造无形时间,场景塑造到细节推敲,人,自然和空间的共生共息,以特定细节的诉说,放弃形式化的设计符号,从情感深处意象,减少多余的色彩。
客厅






餐厅

书房

主卧


卫生间

地下室原件

一楼原件

二楼原件

三楼原件

四楼原件

地下室平面

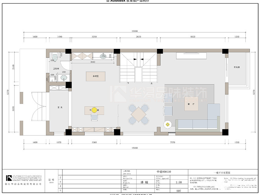
一楼平面

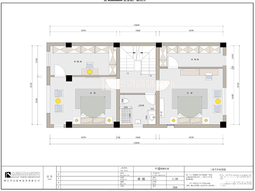
二楼平面

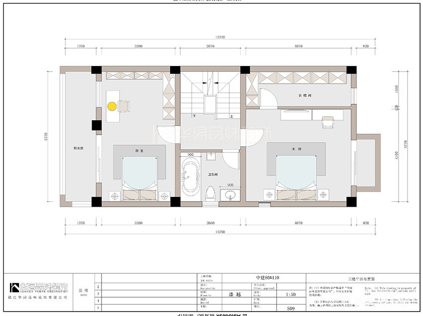
三楼平面

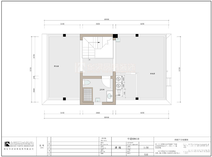
四楼平面

如果你也想拥有这样一套品位与品质共存的案例
请联系我们
咨询热线:88881389/88881379
公司地址:丁卯桥路168号江南世家11-13
更多华浔品味装饰案例请点击:
[ 本帖最后由 my0511唐老鸭 于 2021-11-5 14:53 编辑 ]









