| 标题
快捷导航

精彩推荐:MY0511客户端下载

    • 中信银行镇江分行

    • 公益体彩 乐善人生

    • 鹏龙鸿蒙

    • 天然石材·人造石

    » 梦溪论坛 » 家庭装修 » 220平三室大平层,人文气质通透大宅,细节控设计。
    家庭装修  >  [完工毕业照] 220平三室大平层,人文气质通透大宅,细节控设计。     
    查看: 36696  回复: 14
    [完工毕业照] 220平三室大平层,人文气质通透大宅,细节控设计。      查看: 36696  回复: 14
    • 来自 江苏省
    • 精华 3
    • 注册 2013-8-6
    • 行业 IT 通信
    •  
    220平三室大平层,人文气质通透大宅,细节控设计。

    ◆ 项目地址:协信太古城

    ◆ 项目面积:220㎡

    ◆ 设  计  师:金奂

    ◆ 设计机构:造物空间

    ◆ 施工单位:造物施工


    说在前面

    这是一套220平大平层。 本案屋主喜欢沉稳大气的装修风格,对生活品质有一定的追求。

    作为婚房的用途,我们并没有规划更多的卧室,而是把空间最大化融入公共区域。

    把不合理的空间重新规划,满足更加实用,把细节之处做到极致。 营造功能实用和生活美学兼备的居家氛围。


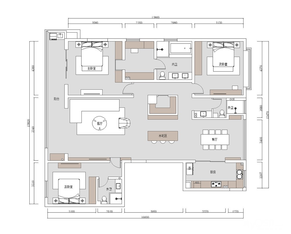
    户型图

    第一、原户型室外自然条件优越,设计中用落地窗最大化采景和采光,并保留最佳通风位置。

    第二、将生活动线设计为“回”字形,不仅动线更自由,同时体现空间的大气。

    第三、在了解业主需求后,围绕水吧区设计作为家庭互动。


    客厅

    原电梯厅可以设置鞋帽区,入户我们取消了原户型玄关设计,做到大平层一目了然的既视感。

    房间门设计为隐形门,我们在表面刷上了改色进口涂料(可以擦洗),体现整体性。

    客厅通过改造把阳台融入到客厅部分,增加空间感和通透性,将自然光和风包括室外的景观最大化融入室内,提升空间的层次和质感。

    客厅采用无主灯设计,选用可组合式磁吸轨道灯,根据不同生活场景切换不同的照明模式,营造更为温馨、舒适的家庭氛围。

    客厅取消了踢脚线设计,体现细节之处的极简。

    用烟熏橡木和暖色涂料营造空间高级感,同时沙发背景我们选用进口岩板,凸显大宅气质。

    软装搭配沉稳色系,大气不失细节,4米1的加长沙发搭配单人位,让空间动线更加宽裕。


    酒吧区

    水吧区满足屋主生活需求,同时作为家庭的互动空间,增添了生活的乐趣。吧台设置了净水槽,提供了生活的便利性。

    顶部格栅做到区域的围合感,同时巧妙隐藏了两个空调回风口,让顶面设计看上去更加简洁,这里的木格栅安装我们加固了吊筋,更加安全。


    餐厅

    将北阳台扩入到餐厅,放置一张2.4米的8人长桌,天然石材的质感和自然纹理尽显档次和大气。

    厨房的移门套和入户门套用钢木设计为一体,增强块面的整体性,用几何比例表现现代简约的美感。

    餐厅区域的木饰面暗藏了收纳柜,在做到简洁的同时增加收纳。


    厨房

    厨房体现操作性和实用性,选择墙地砖和操作台的同灰色和橱柜的白对比,营造素雅温馨的烹饪氛围。


    卧室

    主卧室用艺术漆和窗帘同色,和床品的色彩形成对比提亮空间。

    主卧室衣柜采用玻璃柜门让空间视觉延伸,同时屋主更加热爱生活,摆放更有序。隐形门的设计和加长的空调风口提升空间质感。


    书房

    主卧隐形门进入的第二空间是书房兼收纳的空间,书房可以满足屋主偶尔在家办公学习。


    卫生间

    主卧隐形门进入的第三空间是一个四件套卫生间,顶面我们采用防水石膏板体现档次,色系选择了深灰色有纹理变化的墙地砖来衬托白色的洁具。


    效果图

    前期效果图和完工实景实现了1 :1的还原效果。

    设计细节

    1、涂料隐形门 2、冷暖光 3、壁龛 4、暗藏风口 5、木质隐形门 6、排水落差 7、小夜灯9、钢木结合







                      
    • 来自 江苏省
    • 精华 20
    • 注册 2015-3-17
    • 行业 其它
    •  






    • 来自 江苏省
    • 精华 0
    • 注册 2022-2-8
    • 行业 房产建筑
    •  






    • 来自 江苏省
    • 精华 0
    • 注册 2019-11-21
    • 行业 基础设施
    •  
    • 来自 江苏省
    • 精华 0
    • 注册 2015-11-23
    • 行业 商业贸易
    •  

    普丽尼家居完美




    • 来自 江苏省
    • 精华 0
    • 注册 2014-10-9
    • 行业 房产建筑
    •  

    伊派爱马仕瓷砖+卡布奇诺瓷砖完美结合 冷翡翠岩板背景更是令整体空间眼前一亮,好房,好设计,好作品




    • 来自 江苏省
    • 精华 87
    • 注册 2017-9-7
    •  






    • 来自 江苏省
    • 精华 6
    • 注册 2009-7-29
    • 行业 商业贸易
    •  

    大片




    • 来自 江苏省
    • 精华 0
    • 注册 2015-6-22
    • 行业 房产建筑
    •  






    • 来自 江苏省
    • 精华 0
    • 注册 2016-5-11
    •  

    大理石背景墙上有一张破碎的人脸,真恐怖。怎么想到这样布图的?




    • 来自 江苏省
    • 精华 0
    • 注册 2008-1-25
    • 行业 教育科研
    •  


    QUOTE:
    原帖由 一亩梦田 于 2022-6-10 15:01 发表
    而且正好在正中。越看越邪气。
    手上貌似还拿个东西




    • 来自 江苏省
    • 精华 4
    • 注册 2004-6-8
    • 行业 其它
    •  

    客厅极窄门框什么材质?哪做的?




    • 来自 江苏省
    • 精华 0
    • 注册 2018-12-6
    •  


    QUOTE:
    原帖由 一亩梦田 于 2022-6-10 15:01 发表
    大理石背景墙上有一张破碎的人脸,真恐怖。怎么想到这样布图的?
    不说都没注意,确定是




    • 来自 山东省
    • 精华 0
    • 注册 2021-9-7
    •  

    全包150万不够吗?




    • 来自 江苏省
    • 精华 0
    • 注册 2010-3-20
    • 行业 商业贸易
    •  

    喜欢烟熏橡木的人,品味都不会太差!

    卫生间的产品都是科勒的嘛!




    查看积分策略说明快速回复主题
    您目前还是游客,请 登录注册
    您目前是游客,本帖已被系统设置了自动关闭,不可回复!

    0/5000字

     
    < >
     

    Powered by Discuz! X 2 0.043273 s 清除 Cookies - 镇江网友之家 - 手机版
    论坛导航 关闭