| 标题
快捷导航

精彩推荐:MY0511客户端下载

    • 中信银行镇江分行

    • 公益体彩 乐善人生

    • 鹏龙鸿蒙

    • 天然石材·人造石

    » 梦溪论坛 » 家庭装修 » 华姗豪庭-现代简约装修记录
    家庭装修  >  [装修日记] 华姗豪庭-现代简约装修记录     
    查看: 22846  回复: 43
    [装修日记] 华姗豪庭-现代简约装修记录      查看: 22846  回复: 43
    • 来自 江苏省
    • 精华 0
    • 注册 2022-5-1
    •  
    华姗豪庭-现代简约装修记录

    装修有一段时间了,目前已经装到一半了。不过还好有我的设计师和项目经理每个施工阶段都有照片拍到施工群里,我才这么多素材准备来写装修日记,记录一下自己装修的一些过程还有细节,说实话一开始看装修确实看了好久,想要找到自己最想要的装修感觉。




    小区名称】:华姗豪庭


    工程面积】:167方


    【装修风格】:现代简约


    【包工方式】:全包


    【装修公司】:圣都家装


    【装修设计】:张经理(13405580375)


    【项目经理】:王经理


    【房屋结构】:四室两厅三卫双阳台



    装修效果图:


    原始户型图:




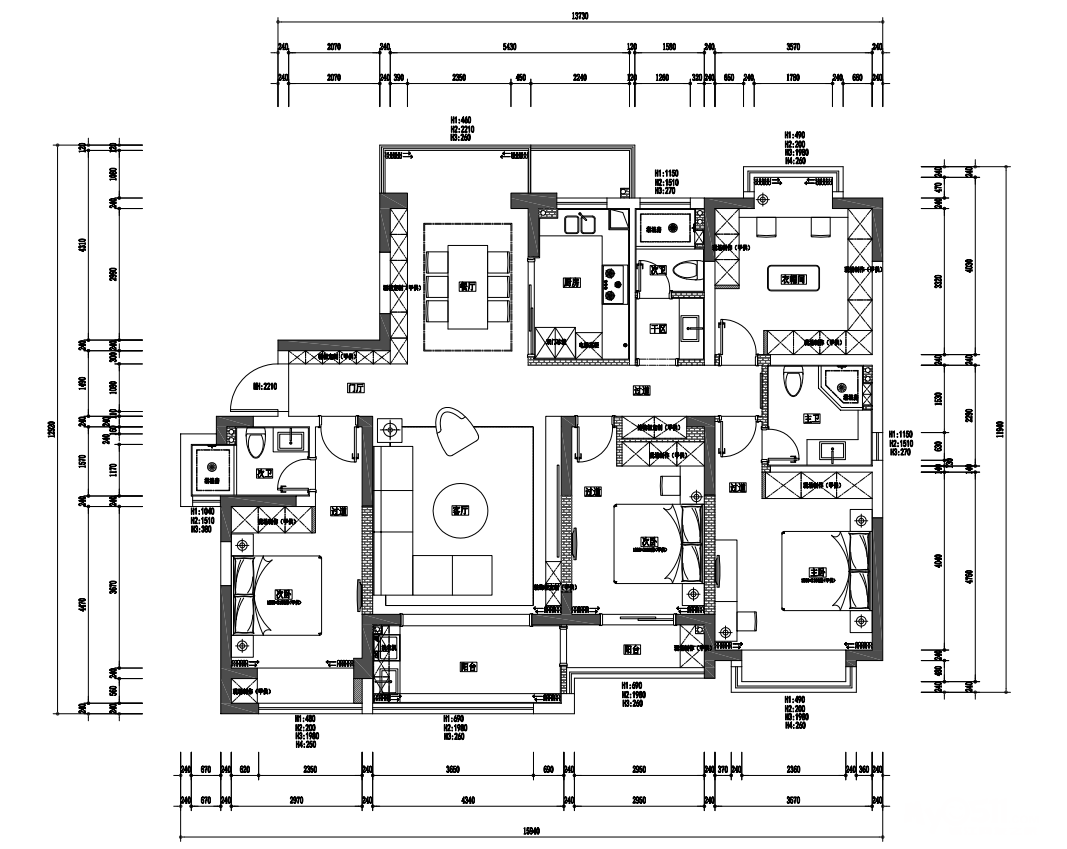
    平面设计图:













    [ 本帖最后由 boono 于 2022-6-18 16:31 编辑 ]





                      
    • 来自 江苏省
    • 精华 0
    • 注册 2022-5-1
    •  

    开始记录装修的第一步:开工仪式,之前实在是太忙,没有时间写日记,现在终于可以记录一下装修的过程了,目前装到一半效果还不错,之前刚开始看装修也看了很长一段时间,一直没有找到自己想要的装修感觉,并且因为工作忙没时间跑工地,所以一直有许多的顾虑在心里,就迟迟没有定装修,直到来到圣都装饰,遇到了设计师张展(张经理),前期先给我们介绍了一下他们的施工工艺还有材料介绍,整体还是不错的,做了很多施工细节,材料什么的都还不错,我还是很放心的,最重要的是全包会更让我们省心一些,平时确实没有时间去买材料什么的,而且也怕自己买不好材料买贵,全包的材料都是直接去他们三楼选,三楼一层都是材料区,四楼现在好像也开始做电器和定制柜子什么的,之前也听朋友说过圣都,确实各方面还不错。




    • 来自 江苏省
    • 精华 0
    • 注册 2011-7-6
    • 行业 工业制造
    •  

    0511有没有装修公司先装修后付款的公司。能这样的公司都是能力强的公司,应该不要广告。




    • 来自 江苏省
    • 精华 0
    • 注册 2022-4-24
    •  


    QUOTE:
    原帖由 boono 于 2022-5-1 11:22 发表
    开始记录装修的第一步:开工仪式,之前实在是太忙,没有时间写日记,现在终于可以记录一下装修的过程了,目前装到一半效果还不错,之前刚开始看装修也看了很长一段时间,一直没有找到自己想要的装修感觉,并且因为 ...
    感谢认可




    • 来自 江苏省
    • 精华 0
    • 注册 2022-5-1
    •  

    后面定方案的时候,因为方案和风格是我最最关注的,所以我会提前把想法跟他说,他会在我的想法之后再给更好的建议,会告诉我很多细节,让我不踩坑,当时谈完之后感觉很棒,后来方案确定之后出效果图,也确实把我描述的感觉,我喜欢的风格做出来了,给了我眼前一亮的感觉,所以从前面很慢的看装修过程,变成了很快的装修过程,所以设计师给我们主导建议确实是重要的。




    • 来自 江苏省
    • 精华 0
    • 注册 2022-5-1
    •  

    开工的第一天,仪式感还是比较奈斯的,门口的墙地面和大门也有做保护!

    [ 本帖最后由 boono 于 2022-5-1 13:47 编辑 ]








    • 来自 江苏省
    • 精华 0
    • 注册 2014-10-16
    •  






    • 来自 北京
    • 精华 0
    • 注册 2014-5-17
    • 行业 商业贸易
    •  

    开工大吉




    • 来自 江苏省
    • 精华 0
    • 注册 2022-5-1
    •  

    拆墙完工照片记录

    [ 本帖最后由 boono 于 2022-5-1 18:07 编辑 ]








    • 来自 江苏省
    • 精华 0
    • 注册 2020-8-13
    •  






    • 来自 江苏省
    • 精华 0
    • 注册 2017-3-27
    •  

    开发商这个天然气管道的布置不太好




    • 来自 江苏省
    • 精华 0
    • 注册 2021-1-24
    • 行业 房产建筑
    •  






    • 来自 江苏省
    • 精华 0
    • 注册 2022-5-1
    •  



    砌墙工艺加细节,当时圣都展厅展示给我们介绍的确实有这么去做,而且还拍照到施工群里给我们直接看到,这一点也是我非常喜欢的装修过程之一,不用去工地看也可以看到里面怎么做的

    [ 本帖最后由 boono 于 2022-5-3 11:15 编辑 ]




    • 来自 江苏省
    • 精华 0
    • 注册 2022-5-1
    •  


    砌墙完毕,底下这个好像叫防水梁,有水的地方都做的,照片不太清楚,因为施工群里面存太久了,但是也能看出来,墙面很规整哈

    [ 本帖最后由 boono 于 2022-5-4 17:21 编辑 ]




    • 来自 江苏省
    • 精华 0
    • 注册 2022-5-1
    •  


    现场把家具的尺寸都有画出来,去看的时候真的有很直观,到时候买家具更方便啦




    • 来自 江苏省
    • 精华 0
    • 注册 2019-11-21
    • 行业 基础设施
    •  

    工地很整洁




    • 来自 江苏省
    • 精华 0
    • 注册 2018-5-4
    •  

    工地真的很整洁啊 没有任何垃圾

           






    • 来自 江苏省
    • 精华 0
    • 注册 2022-5-1
    •  





    水电施工地面开槽,规规整整!

    [ 本帖最后由 boono 于 2022-5-8 17:26 编辑 ]








    • 来自 江苏省
    • 精华 0
    • 注册 2022-5-1
    •  



    水电施工阶段

    [ 本帖最后由 boono 于 2022-5-11 17:38 编辑 ]




    • 来自 江苏省
    • 精华 0
    • 注册 2018-1-6
    •  

    水电做的很漂亮,工地也很整洁呀。




    • 来自 江苏省
    • 精华 0
    • 注册 2016-11-9
    •  

    施工规范,质量蛮好的。




    • 来自 江苏省
    • 精华 0
    • 注册 2021-1-24
    • 行业 房产建筑
    •  

    欢迎大家来公司考察,地址:镇江润州区天桥路8号,(月星家居西30米),13812461621,




    • 来自 江苏省
    • 精华 0
    • 注册 2022-5-1
    •  







    地面地砖排版,让地面更美观整体,圣都的
    墙地防水工艺确实做的不错,闭水测试有没有渗水的情况,
    每做一边防水和测试都会发到群里给我们看到

    [ 本帖最后由 boono 于 2022-5-24 13:30 编辑 ]








    • 来自 江苏省
    • 精华 0
    • 注册 2022-5-1
    •  



    选圣都全包真的有很省心,设计师会帮我把美缝颜色选好,然后美缝师傅和项目经理会拍照给我搭配效果,
    每个细节都有很多人在为我们家的装修在考虑,装修的过程中真的有很棒的体验感,不得不夸奖一下设计师

    [ 本帖最后由 boono 于 2022-5-19 16:29 编辑 ]








    • 来自 江苏省
    • 精华 0
    • 注册 2014-5-22
    •  

    想问问买了多钱啊?




    • 来自 江苏省
    • 精华 0
    • 注册 2022-5-1
    •  


    工地上什么时间做什么工程都会实时播报出来,这样施工进度会比较让人放心,后面就不会延期了




    • 来自 北京
    • 精华 0
    • 注册 2014-5-22
    •  

    买的价格如何啊?




    • 来自 江苏省
    • 精华 0
    • 注册 2021-1-24
    • 行业 房产建筑
    •  


    QUOTE:
    原帖由 daidaizhitu 于 2022-5-29 20:24 发表
    买的价格如何啊?
    貌似这套房子价格在150W左右

    [ 本帖最后由 陈启华 于 2022-5-31 13:11 编辑 ]




    • 来自 江苏省
    • 精华 0
    • 注册 2021-1-24
    • 行业 房产建筑
    •  


    QUOTE:
    原帖由 daidaizhitu 于 2022-5-29 20:24 发表
    买的价格如何啊?
    装修的话在21W




    • 来自 江苏省
    • 精华 0
    • 注册 2022-5-1
    •  







    油漆阶段啦|||||其实还是很快的,就是墙面也是个大工程,圣都的墙面工艺做的三遍腻子,一遍底漆二遍面漆,是一个特别细的过程,对于平整度要求很高,但是没有刺鼻的味道,这点我特别喜欢\

    [ 本帖最后由 boono 于 2022-5-31 13:33 编辑 ]




    • 来自 江苏省
    • 精华 0
    • 注册 2022-5-1
    •  

    油漆阶段是我目前最喜欢的一个过程了,除了水电之外,因为油漆刷上之后整个家里的设计造型的效果就出来了,感觉离自己家的落地越来越快了,整体来说对于目前我还是比较满意的,




    • 来自 江苏省
    • 精华 0
    • 注册 2022-5-1
    •  


    油漆完毕,后期还要修补,成品安装,快要成型啦、、、、、




    • 来自 江苏省
    • 精华 0
    • 注册 2011-5-26
    • 行业 工业制造
    •  






    • 来自 江苏省
    • 精华 0
    • 注册 2011-5-26
    • 行业 工业制造
    •  


    QUOTE:
    原帖由 陈启华 于 2022-5-30 10:31 发表
    貌似这套房子价格在150W左右
    这是一期的,二期的贵一点




    • 来自 江苏省
    • 精华 0
    • 注册 2022-5-1
    •  

    最近正在安装阶段,所以去看的比较少,但是进度还是可以的,卫生最近也在弄




    • 来自 江苏省
    • 精华 0
    • 注册 2022-5-1
    •  

    上次图片拍的不太清楚,因为还在成品安装的阶段,所以我就没有去看了,放心交给设计师和项目经理了,最近工作也比较忙,也没什么时间写了,下次等我有空再去拍清楚一些,等卫生全部弄好吧,我还要开始看看软装了,设计师说可以帮我搭配,让我先根据效果图挑一些,要花点时间看看了,毕竟软装要花时间散味道的,




    • 来自 江苏省
    • 精华 0
    • 注册 2022-5-1
    •  

    再给大家分享一下我们家用的全包材料吧!



    电线:(中大元通)

    水管:(芬驰)

    空开漏保:(西门子)

    防水涂料:(法国派丽)

    乳胶漆:(三棵树)

    瓷砖:(欧神诺、孔雀)

    地板:(世友)

    门:(TATA木门)

    开关插座:(西门子)

    铝扣板:(名族)

    座便器:(法恩莎、恒洁)

    五金挂件:(萨尔克)

    浴室柜:(巴纳拉斯)

    [ 本帖最后由 boono 于 2022-6-18 16:47 编辑 ]




    • 来自 江苏省
    • 精华 0
    • 注册 2022-5-1
    •  

    准备装修的朋友们,在选择半包与全包的同时,不用担心全包的材料,像圣都的材料都是直接展示出来给我们看的到的,也可以去网上查品牌和型号,所以不用担心材料问题,发货到施工现场家里的时候也是一样的有材料二维码可以扫,现场到货了,项目经理和设计师也会拍照给我们看,然后让我们去检查,我认为既然这个公司可以在现场安装摄像头让我们看到,对自己的工程质量应该是比较自信的,




    • 来自 江苏省
    • 精华 0
    • 注册 2011-5-26
    • 行业 工业制造
    •  


    QUOTE:
    原帖由 陈启华 于 2022-5-30 10:32 发表
    装修的话在21W
    21万包括全屋橱柜衣柜餐边柜吗




    • 来自 江苏省
    • 精华 0
    • 注册 2020-8-13
    •  

    速度挺快 的




    • 来自 江苏省
    • 精华 0
    • 注册 2010-5-8
    • 行业 其它
    •  






    • 来自 江苏省
    • 精华 0
    • 注册 2021-1-24
    • 行业 房产建筑
    •  


    QUOTE:
    原帖由 萍水相逢冰之焰 于 2022-6-18 17:02 发表
    21万包括全屋橱柜衣柜餐边柜吗
    含橱柜,其他另外订哦




    查看积分策略说明快速回复主题
    您目前还是游客,请 登录注册
    您目前是游客,本帖已被系统设置了自动关闭,不可回复!

    0/5000字

     
    < >
     

    Powered by Discuz! X 2 0.086089 s 清除 Cookies - 镇江网友之家 - 手机版
    论坛导航 关闭