收藏本站
客户端
扫码下载客户端
官方微信
打开微信扫一扫
登录
|
注册
|
标题
标题
用户
全站首页
|
论坛导航
|
网络问政
|
招聘求职
|
买房租房
|
装修频道
|
生活服务
|
教育
|
相亲
|
亲子
|
美食
|
婚嫁
|
手机客户端
家有学子
|
母婴乐园
快捷导航
精彩推荐:
MY0511客户端下载
中信银行镇江分行
公益体彩 乐善人生
鹏龙鸿蒙
天然石材·人造石
»
梦溪论坛
»
家庭装修
» 迟来的装修日记
家庭装修
>
[装修日记]
迟来的装修日记
查看: 25644 回复: 13
快速回复
返回家庭装修
[装修日记]
迟来的装修日记
查看: 25644 回复: 13
上一主题
|
下一主题
A俊刺青天桥路店
来自 江苏省
精华 0
注册 2019-5-8
迟来的装修日记
【小区名称】:官塘绿苑
【建筑面积】:102
【装修风格】:简约现代
【包工方式】:半包
【装修公司】:东墨
【装修设计】:朱总
---发自vivo---
已有
0
人打赏
2022-6-6 13:00
1楼
买房、卖房、租房上镇江房产网!
只看该作者
分享本楼
A俊刺青天桥路店
来自 江苏省
精华 0
注册 2019-5-8
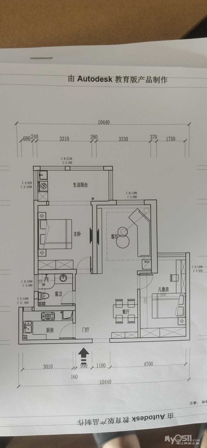
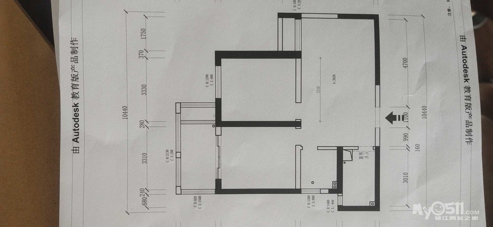
原来的户型图,朱总给的设计方案,一拍即合,装修公司也看了三四家,最终选定的是东墨。
---发自vivo---
2022-6-6 13:03
2楼
MY0511相亲,一分钟注册,享一辈子幸福!
只看该作者
分享本楼
A俊刺青天桥路店
来自 江苏省
精华 0
注册 2019-5-8
选定日子,5月24日开工
---发自vivo---
2022-6-7 10:33
3楼
找工作,就上MY0511!
只看该作者
分享本楼
A俊刺青天桥路店
来自 江苏省
精华 0
注册 2019-5-8
全屋墙皮是自己铲的,能省则省一点
就是有点累人...下一套房子装修估计不会自己再铲了,朱总看了一下说,铲的还挺干净...总花费铲刀20元,2组刀片10元,共计30
---发自vivo---
2022-6-7 10:36
4楼
买房、卖房、租房上镇江房产网!
只看该作者
分享本楼
镇江风尚大宅
来自 江苏省
精华
87
注册 2017-9-7
开工大吉
---发自iPhone 6---
2022-6-7 14:05
5楼
[联宇电脑] 电脑组装\维修\升级\企业单位电脑维护!
只看该作者
分享本楼
东墨装饰设计
专版版主
来自 江苏省
精华
95
注册 2021-4-14
马上水电
---发自vivo---
2022-6-8 20:40
6楼
MY0511相亲,一分钟注册,享一辈子幸福!
只看该作者
分享本楼
A俊刺青天桥路店
来自 江苏省
精华 0
注册 2019-5-8
由于户型有变动,原来卧室变成客厅,需要敲墙。开工第二天师傅们就来敲墙了
---发自vivo---
2022-6-9 18:30
7楼
0511家装频道:本地家居服务平台,数万业主共同选择
只看该作者
分享本楼
A俊刺青天桥路店
来自 江苏省
精华 0
注册 2019-5-8
今日师傅墙面开槽,马上水电进场咯,之前已经刷过地固和墙固
---发自vivo---
2022-6-13 16:41
8楼
[联宇电脑] 电脑组装\维修\升级\企业单位电脑维护!
只看该作者
分享本楼
猫猫瑟瑟发抖
来自 江苏省
精华 0
注册 2019-6-9
同一家装修公司
---发自iPhone 11---
2022-6-13 19:57
9楼
[联宇电脑] 电脑组装\维修\升级\企业单位电脑维护!
只看该作者
分享本楼
A俊刺青天桥路店
来自 江苏省
精华 0
注册 2019-5-8
QUOTE:
原帖由
猫猫瑟瑟发抖
于 2022-6-13 19:57 发表
同一家装修公司
你家装修好了吗
---发自iPhone 12---
2022-6-14 13:29
10楼
[联宇电脑] 电脑组装\维修\升级\企业单位电脑维护!
只看该作者
分享本楼
星月神防盗门A
来自 江苏省
精华 0
注册 2019-11-21
行业 基础设施
恭喜楼主新房装修
---发自iPhone XS Max---
2022-6-14 15:49
11楼
MY0511相亲,一分钟注册,享一辈子幸福!
只看该作者
分享本楼
镇江德国都芳漆
来自 江苏省
精华 0
注册 2014-5-17
行业 商业贸易
恭喜开工大吉
---发自华为---
2022-6-22 22:09
12楼
MY0511相亲,一分钟注册,享一辈子幸福!
只看该作者
分享本楼
东墨装饰设计
专版版主
来自 江苏省
精华
95
注册 2021-4-14
后续准备安装风管机空调
---发自vivo---
2022-6-28 07:56
13楼
MY0511相亲,一分钟注册,享一辈子幸福!
只看该作者
分享本楼
A俊刺青天桥路店
来自 江苏省
精华 0
注册 2019-5-8
水电已经全部完工啦,因为有考虑到管线机,和投影仪,沟通过后,预留了2分线管,和高清电源线
---发自iPhone 12---
2022-6-29 09:56
14楼
买房、卖房、租房上镇江房产网!
只看该作者
分享本楼
返回家庭装修
快速回复主题
游客
您目前还是游客,请
登录
或
注册
您目前是游客,本帖已被系统设置了自动关闭,不可回复!
文明交流,理性发言
0/5000字
<
>
请在打开的新窗口中支付完成打赏
我已完成支付打赏
支付失败重新支付
其他金额
打赏金额:
元
确定
支付打赏
提 现
打赏人
打赏金额(元)
打赏时间
Powered by
Discuz! X 2
0.020019 s
清除 Cookies
-
镇江网友之家
-
手机版
论坛导航
关闭
吃喝玩乐
饮食男女
镇江钓友之家
菜菜鸟户外
镇江单车俱乐部
镜头里的镇江
畅游天下
猫狗总动员
视觉Coffeeshop摄影部落
花鸟鱼虫
婚姻.亲子.家庭
家有学子
谈婚论嫁
女性天地
母婴乐园
婚姻生活
梦溪佳缘
装修
家庭装修
装修招标
镇江室内设计师交流
装修商家直通车
你好,镇江!
百姓话题
我要买房
0511爱心家园
市场监管•12315热线
分类信息
生活服务
闲置转让
镇江二手房/镇江租房
镇江招聘求职
教育培训
镇江二手车
商铺厂房写字楼租售
宠物市场
运动健身
卡券交易
电脑维修升级
杂货铺
其他分类信息区
兴趣爱好
HiFi音响江城沙龙
镇江市美术家协会
我爱模型
车友俱乐部
车迷之家
汽车驾培中心
运动俱乐部
镇江市冬泳、铁人三项协会
聚焦足球
镇江羽毛球
镇江乒乓球协会
镇江网球协会
镇江市自行车运动协会
热爱篮球
动力机车
合作栏目
维权热线
天翼时代
色觉影像摄影工作室
站务区
疑问与建议
网络问政
市政府工作部门
垂直管理部门
党群工作部门
其他重点单位
辖市(区)