收藏本站
客户端
扫码下载客户端
官方微信
打开微信扫一扫
登录
|
注册
|
标题
标题
用户
全站首页
|
论坛导航
|
网络问政
|
招聘求职
|
买房租房
|
装修频道
|
生活服务
|
教育
|
相亲
|
亲子
|
美食
|
婚嫁
|
手机客户端
家有学子
|
母婴乐园
快捷导航
精彩推荐:
MY0511客户端下载
中信银行镇江分行
公益体彩 乐善人生
鹏龙鸿蒙
天然石材·人造石
»
梦溪论坛
»
家庭装修
» 上悦诗苑装修进行中——让小家慢慢变成自己喜欢的样子
家庭装修
>
[装修日记]
上悦诗苑装修进行中——让小家慢慢变成自己喜欢的样子
查看: 80016 回复: 58
快速回复
返回家庭装修
59
1/2
1
2
>
[装修日记]
上悦诗苑装修进行中——让小家慢慢变成自己喜欢的样子
查看: 80016 回复: 58
上一主题
|
下一主题
小布xsy
来自 江苏省
精华 0
注册 2013-1-26
行业 其它
上悦诗苑装修进行中——让小家慢慢变成自己喜欢的样子
【小区名称】:上悦诗苑
【所在楼层】:4层
【建筑面积】:125平
【装修风格】:简单一点就好
【包工方式】:半包
【装修公司】:老友记
【 设计师 】:孙美女
【开工日期】:2022年9月
【装修预算】:极力控制!控制~~~
关于装修这件事,我们也跟很多准备装修的业主一样,也没什么好说的,选择老友记主要是因为老友记再我们小区做了好多户大家对他家的评价都很不错,小黄总人也非常实在,美女设计师很专业很细心,相信在后期的合作中也会非常愉快
已有
0
人打赏
2022-10-22 18:13
1楼
[联宇电脑] 电脑组装\维修\升级\企业单位电脑维护!
只看该作者
分享本楼
小布xsy
来自 江苏省
精华 0
注册 2013-1-26
行业 其它
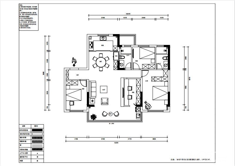
来张我家的户型图
2022-10-22 18:15
2楼
MY0511相亲,一分钟注册,享一辈子幸福!
只看该作者
分享本楼
儿子ai
来自 江苏省
精华 0
注册 2016-9-2
老友记怎么样,我们也打算找他们家装
---发自vivo---
2022-10-23 06:49
3楼
MY0511相亲,一分钟注册,享一辈子幸福!
只看该作者
分享本楼
XPLWJ
来自 江苏省
精华 0
注册 2005-6-10
恭喜开工,装友加油!
---发自vivo---
2022-10-23 07:44
4楼
找工作,就上MY0511!
只看该作者
分享本楼
小布xsy
来自 江苏省
精华 0
注册 2013-1-26
行业 其它
QUOTE:
原帖由
儿子ai
于 2022-10-23 06:49 发表
老友记怎么样,我们也打算找他们家装
到目前为止还是很满意的,不管是工地卫生,施工进度,施工标准,还是还跟设计师,项目经理的的沟通都非常的满意,我们小区有好多他家在施工中的工地,你也可以去现场参观对比一下
2022-10-23 17:07
5楼
[联宇电脑] 电脑组装\维修\升级\企业单位电脑维护!
只看该作者
分享本楼
沃斯卡门窗
来自 江苏省
精华 0
注册 2021-12-5
开工大吉
2022-10-24 16:35
6楼
0511家装频道:本地家居服务平台,数万业主共同选择
只看该作者
分享本楼
小布xsy
来自 江苏省
精华 0
注册 2013-1-26
行业 其它
没事过来上两张效果图
2022-10-25 17:31
7楼
0511家装频道:本地家居服务平台,数万业主共同选择
只看该作者
分享本楼
meghu0511
来自 江苏省
精华
2
注册 2011-6-27
行业 其它
设计上感觉定制满屋
---发自vivo---
2022-10-25 21:11
8楼
MY0511相亲,一分钟注册,享一辈子幸福!
只看该作者
分享本楼
嫦娥姐姐
来自 江苏省
精华
4
注册 2004-6-8
行业 其它
中南几个盘的户型都比较像。
2022-10-25 23:31
9楼
0511家装频道:本地家居服务平台,数万业主共同选择
只看该作者
分享本楼
18860405585
来自 江苏省
精华 0
注册 2022-5-24
QUOTE:
原帖由
儿子ai
于 2022-10-23 06:49 发表
老友记怎么样,我们也打算找他们家装
我家刚完工,也是老友记装的,装修中还是有点小问题,但是项目经理反应比较快很快就解决了
我担心的增项问题,在老友记还是不用担心的,我家一共增加了1200元,也在我的预算内
---发自梦溪论坛手机客户端---
2022-10-28 20:59
10楼
找工作,就上MY0511!
只看该作者
分享本楼
老友记装饰客服
专版版主
来自 江苏省
精华
71
注册 2012-8-13
行业 其它
老友记最新活动点击进入
→→
:
https://bbs.my0511.com/f1155b-t7216946z-1
您家帖子已经收藏到公司的主页中 每天关注
http://bbs.my0511.com/f250b-t4032754z
或进入公司专版
http://bbs.my0511.com/f1155b#lid9dbkystke0fj1f1
2022-10-29 15:35
11楼
0511家装频道:本地家居服务平台,数万业主共同选择
只看该作者
分享本楼
关亨木门
来自 江苏省
精华 0
注册 2010-5-8
行业 其它
2022-10-30 12:13
12楼
[联宇电脑] 电脑组装\维修\升级\企业单位电脑维护!
只看该作者
分享本楼
南山蔡菊翁a
来自 江苏省
精华 0
注册 2022-7-19
恭喜开工,在老友记装修还是挺放心的
---发自梦溪论坛手机客户端---
2022-11-3 11:21
13楼
[联宇电脑] 电脑组装\维修\升级\企业单位电脑维护!
只看该作者
分享本楼
小布xsy
来自 江苏省
精华 0
注册 2013-1-26
行业 其它
QUOTE:
原帖由
南山蔡菊翁a
于 2022-11-3 11:21 发表
恭喜开工,在老友记装修还是挺放心的
谢谢,我就是看我们小区好多都是老友记装修的,感觉做的效果挺好的
---发自梦溪论坛手机客户端---
2022-11-4 22:58
14楼
MY0511相亲,一分钟注册,享一辈子幸福!
只看该作者
分享本楼
笨小熊
来自 江苏省
精华 0
注册 2014-1-2
QUOTE:
原帖由
儿子ai
于 2022-10-23 06:49 发表
老友记怎么样,我们也打算找他们家装
老友记还是不错的,服务挺好
---发自梦溪论坛手机客户端---
2022-11-7 06:47
15楼
买房、卖房、租房上镇江房产网!
只看该作者
分享本楼
南山蔡菊翁a
来自 江苏省
精华 0
注册 2022-7-19
楼主你家窗户定的哪家的
---发自梦溪论坛手机客户端---
2022-11-11 15:23
16楼
买房、卖房、租房上镇江房产网!
只看该作者
分享本楼
小布xsy
来自 江苏省
精华 0
注册 2013-1-26
行业 其它
QUOTE:
原帖由
南山蔡菊翁a
于 2022-11-11 15:23 发表
楼主你家窗户定的哪家的
在月新这边订的
---发自梦溪论坛手机客户端---
2022-11-14 16:43
17楼
0511家装频道:本地家居服务平台,数万业主共同选择
只看该作者
分享本楼
小布xsy
来自 江苏省
精华 0
注册 2013-1-26
行业 其它
上点水电施工的照片
---发自梦溪论坛手机客户端---
2022-11-14 16:47
18楼
MY0511相亲,一分钟注册,享一辈子幸福!
只看该作者
分享本楼
虚行客823294
来自 江苏省
精华 0
注册 2011-8-21
行业 其它
QUOTE:
原帖由
小布xsy
于 2022-11-14 16:47 发表
上点水电施工的照片
期待效果
---发自梦溪论坛手机客户端---
2022-11-20 21:32
19楼
0511家装频道:本地家居服务平台,数万业主共同选择
只看该作者
分享本楼
关亨木门
来自 江苏省
精华 0
注册 2010-5-8
行业 其它
2022-11-21 10:29
20楼
[联宇电脑] 电脑组装\维修\升级\企业单位电脑维护!
只看该作者
分享本楼
小布xsy
来自 江苏省
精华 0
注册 2013-1-26
行业 其它
QUOTE:
原帖由
虚行客823294
于 2022-11-20 21:32 发表
期待效果
谢谢支持
---发自梦溪论坛手机客户端---
2022-11-26 18:39
21楼
MY0511相亲,一分钟注册,享一辈子幸福!
只看该作者
分享本楼
小布xsy
来自 江苏省
精华 0
注册 2013-1-26
行业 其它
瓦工黄师傅进场了,我也没有时间去现场看,就把瓷砖给了项目经理,其他就每天在群里看看每天进度
,几个同事家都是老友记做的,还是挺放心的,
盗用几张群里的照片
---发自梦溪论坛手机客户端---
2022-11-26 18:46
22楼
0511家装频道:本地家居服务平台,数万业主共同选择
只看该作者
分享本楼
小布xsy
来自 江苏省
精华 0
注册 2013-1-26
行业 其它
瓦工也快了
---发自梦溪论坛手机客户端---
2022-11-30 00:05
23楼
0511家装频道:本地家居服务平台,数万业主共同选择
只看该作者
分享本楼
老友记装饰客服
专版版主
来自 江苏省
精华
71
注册 2012-8-13
行业 其它
QUOTE:
原帖由
小布xsy
于 2022-11-30 00:05 发表
瓦工也快了
瓦工结束,下面木工速度很快的
2022-12-2 17:32
24楼
找工作,就上MY0511!
只看该作者
分享本楼
理想布艺大西路
来自 江苏省
精华 0
注册 2022-11-28
2022-12-2 18:31
25楼
0511家装频道:本地家居服务平台,数万业主共同选择
只看该作者
分享本楼
小布xsy
来自 江苏省
精华 0
注册 2013-1-26
行业 其它
QUOTE:
原帖由
老友记装饰客服
于 2022-12-2 17:32 发表
瓦工结束,下面木工速度很快的
慢慢来吧
也不急
---发自梦溪论坛手机客户端---
2022-12-5 22:23
26楼
MY0511相亲,一分钟注册,享一辈子幸福!
只看该作者
分享本楼
小布xsy
来自 江苏省
精华 0
注册 2013-1-26
行业 其它
黄师傅继续贴砖,水平确实不错,听说小黄总他家装修也是黄师傅做的,他们夫妻两个也挺和气的,特别好沟通
---发自梦溪论坛手机客户端---
2022-12-5 22:26
27楼
找工作,就上MY0511!
只看该作者
分享本楼
火云斜神
来自 江苏省
精华 0
注册 2021-8-7
窗边砖,师傅手工倒角?这个也是细活,一不小心就崩瓷了
---发自iPhone 8---
2022-12-6 02:44
28楼
0511家装频道:本地家居服务平台,数万业主共同选择
只看该作者
分享本楼
虚行客823294
来自 江苏省
精华 0
注册 2011-8-21
行业 其它
QUOTE:
原帖由
小布xsy
于 2022-12-5 22:26 发表
黄师傅继续贴砖,水平确实不错,听说小黄总他家装修也是黄师傅做的,他们夫妻两个也挺和气的,特别好沟通
这个瓦工水平很高啊
---发自梦溪论坛手机客户端---
2022-12-10 00:18
29楼
找工作,就上MY0511!
只看该作者
分享本楼
小布xsy
来自 江苏省
精华 0
注册 2013-1-26
行业 其它
QUOTE:
原帖由
虚行客823294
于 2022-12-10 00:18 发表
这个瓦工水平很高啊
确实很不错
---发自梦溪论坛手机客户端---
2022-12-18 22:31
30楼
MY0511相亲,一分钟注册,享一辈子幸福!
只看该作者
分享本楼
@姜睿妈
来自 江苏省
精华 0
注册 2022-5-12
黄师傅手艺不错的,人家很和善
2022-12-19 17:05
31楼
买房、卖房、租房上镇江房产网!
只看该作者
分享本楼
凡哥哥
来自 江苏省
精华 0
注册 2022-8-2
QUOTE:
原帖由
小布xsy
于 2022-12-18 22:31 发表
确实很不错
你家600*1200的人工费是多少一个平方的
---发自梦溪论坛手机客户端---
2022-12-25 00:56
32楼
MY0511相亲,一分钟注册,享一辈子幸福!
只看该作者
分享本楼
老友记装饰客服
专版版主
来自 江苏省
精华
71
注册 2012-8-13
行业 其它
QUOTE:
原帖由
凡哥哥
于 2022-12-25 00:56 发表
你家600*1200的人工费是多少一个平方的
人工费基本上都是市场统一的
---发自梦溪论坛手机客户端---
2022-12-28 23:35
33楼
MY0511相亲,一分钟注册,享一辈子幸福!
只看该作者
分享本楼
虚行客823294
来自 江苏省
精华 0
注册 2011-8-21
行业 其它
QUOTE:
原帖由
小布xsy
于 2022-12-18 22:31 发表
确实很不错
你家卫生间也装暖气片
---发自梦溪论坛手机客户端---
2023-1-3 00:37
34楼
MY0511相亲,一分钟注册,享一辈子幸福!
只看该作者
分享本楼
南山蔡菊翁a
来自 江苏省
精华 0
注册 2022-7-19
QUOTE:
原帖由
小布xsy
于 2022-12-18 22:31 发表
确实很不错
卫生间做墙暖是不是太拥挤了
---发自梦溪论坛手机客户端---
2023-1-10 23:47
35楼
买房、卖房、租房上镇江房产网!
只看该作者
分享本楼
小布xsy
来自 江苏省
精华 0
注册 2013-1-26
行业 其它
现在开始做漆工了,漆工师傅很好沟通,师傅说已经在老友记做了好多年了,在老友做的都是固定的老师傅,我更放心了
---发自梦溪论坛手机客户端---
2023-1-14 23:56
36楼
[联宇电脑] 电脑组装\维修\升级\企业单位电脑维护!
只看该作者
分享本楼
虚行客823294
来自 江苏省
精华 0
注册 2011-8-21
行业 其它
QUOTE:
原帖由
小布xsy
于 2023-1-14 23:56 发表
现在开始做漆工了,漆工师傅很好沟通,师傅说已经在老友记做了好多年了,在老友做的都是固定的老师傅,我更放心了
你家做加长风口了吗
---发自梦溪论坛手机客户端---
2023-1-31 21:24
37楼
买房、卖房、租房上镇江房产网!
只看该作者
分享本楼
小布xsy
来自 江苏省
精华 0
注册 2013-1-26
行业 其它
QUOTE:
原帖由
虚行客823294
于 2023-1-31 21:24 发表
你家做加长风口了吗
局部做了加长出风口
---发自梦溪论坛手机客户端---
2023-2-2 15:12
38楼
[联宇电脑] 电脑组装\维修\升级\企业单位电脑维护!
只看该作者
分享本楼
富兴国际
来自 江苏省
精华 0
注册 2022-8-30
QUOTE:
原帖由
小布xsy
于 2023-2-2 15:12 发表
局部做了加长出风口
加长风口效果还是要比短的好,就是后期清理比较烦
---发自梦溪论坛手机客户端---
2023-2-5 00:03
39楼
买房、卖房、租房上镇江房产网!
只看该作者
分享本楼
哇呜阿娴
来自 江苏省
精华 0
注册 2015-4-21
QUOTE:
原帖由
富兴国际
于 2023-2-5 00:03 发表
加长风口效果还是要比短的好,就是后期清理比较烦
有利也有弊啊
2023-2-10 13:50
40楼
[联宇电脑] 电脑组装\维修\升级\企业单位电脑维护!
只看该作者
分享本楼
18261975617
来自 江苏省
精华 0
注册 2023-2-6
加长的好看,我们家也准备做加长风口
2023-2-12 17:01
41楼
MY0511相亲,一分钟注册,享一辈子幸福!
只看该作者
分享本楼
水儿鱼儿
来自 江苏省
精华 0
注册 2006-11-11
行业 工业制造
QUOTE:
原帖由
小布xsy
于 2023-1-14 23:56 发表
现在开始做漆工了,漆工师傅很好沟通,师傅说已经在老友记做了好多年了,在老友做的都是固定的老师傅,我更放心了
期待更多pp
---发自梦溪论坛手机客户端---
2023-2-19 00:45
42楼
[联宇电脑] 电脑组装\维修\升级\企业单位电脑维护!
只看该作者
分享本楼
陌沫不墨
来自 江苏省
精华 0
注册 2023-2-18
2023-2-21 16:05
43楼
0511家装频道:本地家居服务平台,数万业主共同选择
只看该作者
分享本楼
jungoo
来自 江苏省
精华
1
注册 2010-3-3
行业 学生
QUOTE:
原帖由
小布xsy
于 2022-12-18 22:31 发表
确实很不错
卫生间也做暖气的吗?
2023-2-22 14:36
44楼
MY0511相亲,一分钟注册,享一辈子幸福!
只看该作者
分享本楼
@chen
来自 江苏省
精华 0
注册 2022-12-5
QUOTE:
原帖由
儿子ai
于 2022-10-23 06:49 发表
老友记怎么样,我们也打算找他们家装
老友记还是很靠谱的
---发自梦溪论坛手机客户端---
2023-2-23 00:25
45楼
找工作,就上MY0511!
只看该作者
分享本楼
水儿鱼儿
来自 江苏省
精华 0
注册 2006-11-11
行业 工业制造
QUOTE:
原帖由
儿子ai
于 2022-10-23 06:49 发表
老友记怎么样,我们也打算找他们家装
老友记生意兴隆
---发自梦溪论坛手机客户端---
2023-3-5 22:45
46楼
[联宇电脑] 电脑组装\维修\升级\企业单位电脑维护!
只看该作者
分享本楼
小布xsy
来自 江苏省
精华 0
注册 2013-1-26
行业 其它
QUOTE:
原帖由
儿子ai
于 2022-10-23 06:49 发表
老友记怎么样,我们也打算找他们家装
感觉还是不错的
---发自梦溪论坛手机客户端---
2023-3-9 23:45
47楼
[联宇电脑] 电脑组装\维修\升级\企业单位电脑维护!
只看该作者
分享本楼
老友记装饰客服
专版版主
来自 江苏省
精华
71
注册 2012-8-13
行业 其它
谢谢对我们公司的肯定
2023-3-14 17:35
48楼
找工作,就上MY0511!
只看该作者
分享本楼
18261975617
来自 江苏省
精华 0
注册 2023-2-6
蹲个楼等待楼主更新
2023-3-19 17:02
49楼
买房、卖房、租房上镇江房产网!
只看该作者
分享本楼
哇呜阿娴
来自 江苏省
精华 0
注册 2015-4-21
+1
2023-3-22 16:39
50楼
买房、卖房、租房上镇江房产网!
只看该作者
分享本楼
返回家庭装修
59
1/2
1
2
>
快速回复主题
游客
您目前还是游客,请
登录
或
注册
您目前是游客,本帖已被系统设置了自动关闭,不可回复!
文明交流,理性发言
0/5000字
<
>
请在打开的新窗口中支付完成打赏
我已完成支付打赏
支付失败重新支付
其他金额
打赏金额:
元
确定
支付打赏
提 现
打赏人
打赏金额(元)
打赏时间
Powered by
Discuz! X 2
0.101741 s
清除 Cookies
-
镇江网友之家
-
手机版
论坛导航
关闭
吃喝玩乐
饮食男女
镇江钓友之家
菜菜鸟户外
镇江单车俱乐部
镜头里的镇江
畅游天下
猫狗总动员
视觉Coffeeshop摄影部落
花鸟鱼虫
婚姻.亲子.家庭
家有学子
谈婚论嫁
女性天地
母婴乐园
婚姻生活
梦溪佳缘
装修
家庭装修
装修招标
镇江室内设计师交流
装修商家直通车
你好,镇江!
百姓话题
我要买房
0511爱心家园
市场监管•12315热线
分类信息
生活服务
闲置转让
镇江二手房/镇江租房
镇江招聘求职
教育培训
镇江二手车
商铺厂房写字楼租售
宠物市场
运动健身
卡券交易
电脑维修升级
杂货铺
其他分类信息区
兴趣爱好
HiFi音响江城沙龙
镇江市美术家协会
我爱模型
车友俱乐部
车迷之家
汽车驾培中心
运动俱乐部
镇江市冬泳、铁人三项协会
聚焦足球
镇江羽毛球
镇江乒乓球协会
镇江网球协会
镇江市自行车运动协会
热爱篮球
动力机车
合作栏目
维权热线
天翼时代
色觉影像摄影工作室
站务区
疑问与建议
网络问政
市政府工作部门
垂直管理部门
党群工作部门
其他重点单位
辖市(区)