
人可以一直漂泊,
但回家的时候它应当永远在那里。
无须浓墨重彩,深浅之间,优雅自现。
设计理念:
本项目整个房屋原有的结构面宽都不是很理想,需要优化结构柱点和梁的位置,通过改造扩大南向面宽。在设计师的妙手下,超大的会客厅和中西厨,完美的处理原来的方形结构柱,使用新型材料将整根柱体包裹,让突兀的版块反而变成吸睛的设计点。顶楼一整层套房设置,完美私享主人生活,闹市中心,开辟静雅之地。
客厅


客厅的整个色调都是中性色彩,在深一度与浅一度的灰中寻找到平衡点。轻松明快的顶灯在视觉上增加空间的灵动,柔和的光源提升了空间的温柔气息,淡淡的家具布局把原有的空间净化。


大理石背景墙增加了极简的魅力,地毯与折角沙发的组合又描述了舒缓的意味。

在这里,金属元素与几何线条不仅是空间艺术的组成部分,也成为了设计语言和情感的表达媒介。
餐厅


射灯、创意吊灯、线性灯带综合作用,将温馨的灯光洒落至餐厅各个角落中。此时,熠熠发光的仪式只属于这个家,映衬出一家四口和谐愉悦的用餐场景。



直线的吧台与曲面的镜子形成风格的对撞,这一片角落也因此有了艺术的气息,延伸出深邃的空间感,方便居者于其间慢品生活的旖丽。
主卧


卧室,是与现实最远的地方,在梦里你可以去到任何地方,舒适的床品与温润的地板一起打造了自然、安稳的睡眠环境,让人更加容易放松心情,轻松入睡。


布艺沙发把原有的空间柔化,为辛劳的主人营造出独立的起居空间,洁白的墙面,搭配由窗外引入的自然采光和新鲜绿植。看似不经意,却让整个空间呈现出一种带有生命力的呼吸感。

衣帽间一角,一把覆盖着白色毛皮的金属座椅,一张黑白摄影作品,理想的乌托邦在这里得到了艺术的表达,艺术来自生活,生活也成为艺术!



男孩房

这是儿子的房间,白、米灰、深灰、炭黑;皮革、木质、绒布……深深浅浅的颜色与各种不同的材质在卧室汇集,设计师通过色彩的深浅对比,拉伸了空间的层次,也使整体空间更加生动、活泼,更符合小业主的年龄特点。


温馨的落地灯、细腻的单椅,简单的搭配提升了卧室的活跃感与层次感。静穆的艺术气质与细腻的感情于其中悄然生发,点亮居住者的精神世界。
女孩房

女儿的卧室以身体的舒适作为设计的衡量尺度。淡淡的家具布局把原有的空间净化,搭配造型独特的摆件,绘出一幅奔放热情又沉静害羞的抽象画。


考虑睡眠和学习的双重功能,设计师设计了多重光源,在光影变化中实现状态的切换。个性的灯饰设计,独立而静谧。
长辈房

老人的卧室呈现出舒缓、惬意的状态,高级灰是优雅,更是冷静与平和,搭配木色地板,细腻的光源穿插在安静的中性色当中。

用高级的灰色涂抹空间,留下的空,由艺术与生活来填满。为了满足老人的阅读爱好,设计师专门设计了五层书架,渊博的知识和温暖的情谊的被空间满满乘载。
家宅不存在标准模样,
把家人所需所想融入空间,便最为适合,
在深深的情意和浅浅的灰度间,打磨出房子的肌理与质感,
让生活的细节在岁月静好中散发恰到好处的温度。
项目户型:
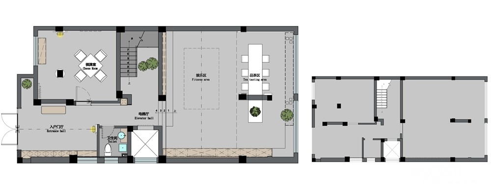
一层

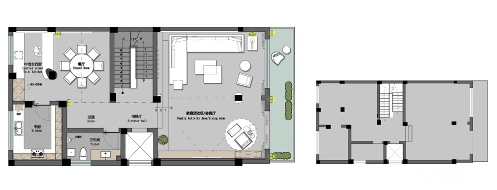
二层

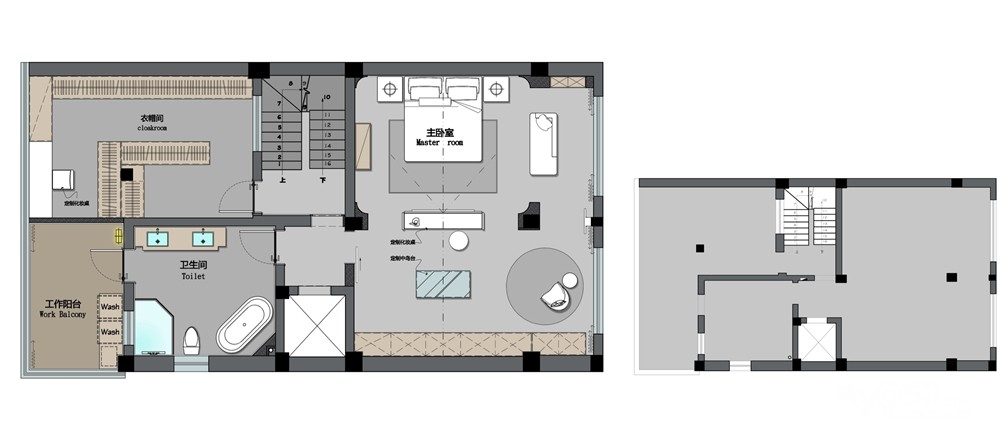
三层

四层

施工现场:


△ 原始结构


△ 木工阶段图片


△ 安装阶段



△ 拍摄花絮
INFO
项目名称 project name: 臻岳君庭
设计主创 Design chief creator:杨涛 冷倩蕊
设计执行 Design executive:姚思洁 鲁博文
效果表现 Renderer : 严飞
-企屋设计-
KEEWOE DESIGN

更多企屋设计案例请点击:
















