| 标题
快捷导航

精彩推荐:MY0511客户端下载

    • 中信银行镇江分行

    • 公益体彩 乐善人生

    • 鹏龙鸿蒙

    • 天然石材·人造石

    » 梦溪论坛 » 家庭装修 » [2023万家基和杯美家养成记]时隔六年,再次开启清包之旅
    家庭装修  >  [装修日记] [2023万家基和杯美家养成记]时隔六年,再次开启清包之旅     
    查看: 21010  回复: 30
    [装修日记] [2023万家基和杯美家养成记]时隔六年,再次开启清包之旅      查看: 21010  回复: 30
      本主题由 System 于 2023-12-31 16:00 解除限时高亮  
    • 来自 北京
    • 精华 0
    • 注册 2019-4-5
    •  
    [2023万家基和杯美家养成记]时隔六年,再次开启清包之旅

    六年前装修了第一套房子,还写了装修日记,可惜账号密码忘记了,找不到了,年初为了小孩上学,买了第二套房子,本打算半包,奈何付了首付以后囊中羞涩,商量以后,决定再次清包,六月拿房,先做功课,


    [ 本帖最后由 my0511小妖 于 2023-5-22 15:39 编辑 ]





                      
    • 来自 北京
    • 精华 0
    • 注册 2019-4-5
    •  

    开工之前需要买什么?
    临时马桶、密码锁、中央空调、地暖
    水电施工前需要买什么?
    油烟灶具,全屋定制,地漏、马桶、浴室柜、热水器、止逆阀、浴霸
    瓦工施工前需要买什么?
    瓷砖、地面、木门、橱柜、美缝剂、地面保护膜
    木工施工前需要买什么?
    筒灯、射灯、主灯、石膏线
    油漆施工前需要买什么?
    乳胶漆、腻子粉、美容胶、墙布
    装修结束需要买什么?
    家具、家电、窗帘、软装




    • 来自 北京
    • 精华 0
    • 注册 2019-4-5
    •  

    把能想到的还有做的功课先记上
        1.垃圾处理器?
        2.墙排下水
        3.预留客厅电动窗帘
        4.预留客厅投影
        5.预留扫拖机器人下水
        6.智能开关,控制灯开关
        7.全屋wife
        8.安装前置过滤器装在入户进门的水井里,装阀门
        9.厨房安装净水器,洗碗机
        10.主卧卫生间安装小厨宝
        11.阳台预留拖把池
        12.水电标识贴,瓦工结束贴起来
        13.提前定中央空调,中央空调出风口要定长的极简出风口
        14.提前买个装修马桶
        15.门口预留监控插座
        16.进门口预留插座,智能控制
        17.冰箱嵌入式冰箱
        18.微波炉嵌入式
        19.房门一门通顶门,
        20.客厅窗户下面贴瓷砖和地砖对缝
        21.卫生间马桶预留六孔插座,一个留给智能马桶,一个留给电热毛巾架
        22.马桶马兰圈要自己买蓝色的,不要用马桶配的黑色的马兰圈
        23.马桶底面的三个洞要堵死,
        24.客厅装隐形投影,吊顶时安装
        25.洗衣机烘干机抬高摆放不弯腰,下面弄个抽卡平台
        26.阳台预留拖把池,洗菜池子,洗鞋机




    • 来自 北京
    • 精华 0
    • 注册 2019-4-5
    •  

    网上找了个设计团队,我家面积说是2899,感觉还行啊
    服务内容和流程:
    (1)建服务群(设计师+客服+售后管家)
    (2)客户填写需求问卷(电子问卷)
    (3)远程量房(0基础,一把卷尺一个手机)
    (4)确认平面布局方案(在线视频沟通:设计师分享电脑桌面,客户只需用手机视频电话)
    (5)确认720全景效果图(在线视频沟通:设计师分享电脑桌面,客户只需用手机视频电话)
    (6)确认全案施工图(在线视频沟通:设计师分享电脑桌面,客户只需用手机视频电话)
    (7)正式交付:720全屋全景动态效果图链接+pdf图纸(不含柜体结构图)+cad源文件(不含柜体结构图)+主材算量清单
    (8)施工过程全程在线跟进服务(设计师图纸对接施工指导服务+监理咨询服务+项目经理咨询服务)




    • 来自 北京
    • 精华 0
    • 注册 2019-4-5
    •  

    封阳台,网上也找了一家,可以做外地,108型材1.8壁厚说是750,就等着拿房测量了




    • 来自 江苏省
    • 精华 0
    • 注册 2012-1-31
    • 行业 房产建筑
    •  
    • 来自 江苏省
    • 精华 0
    • 注册 2009-10-12
    • 行业 基础设施
    •  

    设计团队在哪个平台找的啊?




    • 来自 江苏省
    • 精华 0
    • 注册 2009-10-12
    • 行业 基础设施
    •  

    有平面图参考一下吗?




    • 来自 江苏省
    • 精华 0
    • 注册 2015-10-9
    •  

    楼主这个装修理念好新啊,如果成功的话会有效仿作用




    • 来自 北京
    • 精华 0
    • 注册 2014-10-16
    •  
    • 来自 北京
    • 精华 0
    • 注册 2019-4-5
    •  

    地暖打算舍弃,镇江难得开一下,就准备弄个中央空调吧,




    • 来自 北京
    • 精华 0
    • 注册 2019-4-5
    •  


    QUOTE:
    原帖由 mytatu 于 2023-2-20 07:16 发表
    有平面图参考一下吗?
    我还没拿房呢,先做功课,毕竟现在好多东西都不一样了




    • 来自 江苏省
    • 精华 0
    • 注册 2017-2-6
    •  

    这个户型很好唉,喜欢 期待装好的效果




    • 来自 北京
    • 精华 0
    • 注册 2021-7-3
    •  
    • 来自 北京
    • 精华 0
    • 注册 2019-4-5
    •  


    QUOTE:
    原帖由 mytatu 于 2023-2-20 07:16 发表
    设计团队在哪个平台找的啊?
    小红书




    • 来自 北京
    • 精华 0
    • 注册 2019-4-5
    •  

    准备搞个下沉式淋浴间




    • 来自 北京
    • 精华 0
    • 注册 2019-4-5
    •  

    住宾馆发现下沉式淋浴房真的挺好的,中间可以拉条处理,还防滑,




    • 来自 北京
    • 精华 0
    • 注册 2019-4-5
    •  

    橱柜想砖砌橱柜,后来发现网上竟然有专门做瓷砖橱柜的,正在研究中




    • 来自 江苏省
    • 精华 0
    • 注册 2019-4-5
    •  

    到底要不要装地暖呢,我是想装,不用冬天准备那么多被子,但是装了预算更不够了




    • 来自 江苏省
    • 精华 0
    • 注册 2019-4-5
    •  

    地暖,新风,中央空调




    • 来自 江苏省
    • 精华 0
    • 注册 2019-4-5
    •  

    趁着还能溜进去,溜进去量了个房




    • 来自 江苏省
    • 精华 0
    • 注册 2019-4-5
    •  

    第一次装修是请朋友设计,自己找的工人,这次不好意思再麻烦朋友了,在网上找了一家设计团队,感觉还挺不错的,视频量房,告诉我我量哪里我报给他,哈哈哈,到底之前当过一次下手,负责量房的量房师直夸专业




    • 来自 江苏省
    • 精华 0
    • 注册 2019-4-5
    •  

    纯设计整体交付内容:
    一、设计交付内容
    1、平面方案功能布局图
    2、全屋720全景动态效果图
    3、每个空间的静态效果图
    4、全屋施工图
    (不含柜体结构图设计)
    (1)封面
    (2)图纸目录
    (3)设计施工说明
    (4)原始平面图
    (5)墙体拆除平面图
    (6)墙体新建平面图
    (7)平面布置图
    (8)家具尺寸图
    (9)天花布置图
    (10)灯具定位图
    (11)灯具连线图
    (12)地面铺装图
    (13)插座点位图
    (14)给排水点位图
    (15)客餐厅背景立面图
    (16)主卧背景立面图
    二、主材购买数量清单(PDF格式)
          主材购买品牌数量价格(深圳)参考清单
    三、家装顾问
    多次的沟通交流,装修施工过程中,我们会提供对图纸对接施工细节的答疑,设计做完您确认收货以后,后期您去购买材料家具软装的时候,我们会赠送监理工程咨询和项目经理咨询服务,更加方便您对接好后期的施工与选材,以专业家装顾问的角色帮助您完成整个家装过程。




    • 来自 江苏省
    • 精华 0
    • 注册 2019-4-5
    •  

    设计团队还是很负责的




    • 来自 江苏省
    • 精华 0
    • 注册 2019-4-5
    •  

    写日记为了记录一下自己的辛苦付出,这把不能再把账号弄丢了




    • 来自 江苏省
    • 精华 0
    • 注册 2019-4-5
    •  

    去参观了一下邻居家工地,这个是新风系统吗?地暖,新风,中央空调,一起上吧,开发商的窗户不想换,不知道中间的百叶帘能拿出来吧




    • 来自 江苏省
    • 精华 0
    • 注册 2019-4-5
    •  

    这梁上打的孔也不知道要紧吧




    • 来自 江苏省
    • 精华 0
    • 注册 2019-4-5
    •  


    QUOTE:
    原帖由 小石子倾听者 于 2023-2-20 04:51 发表
    开工之前需要买什么?
    临时马桶、密码锁、中央空调、地暖
    水电施工前需要买什么?
    油烟灶具,全屋定制,地漏、马桶、浴室柜、热水器、止逆阀、浴霸
    瓦工施工前需要买什么?
    瓷砖、地面、木门、橱柜、美缝剂、地面 ...
    话说日记里链接都怎么弄的啊,我上次写也是就按顺序写的




    • 来自 江苏省
    • 精华 0
    • 注册 2019-4-5
    •  

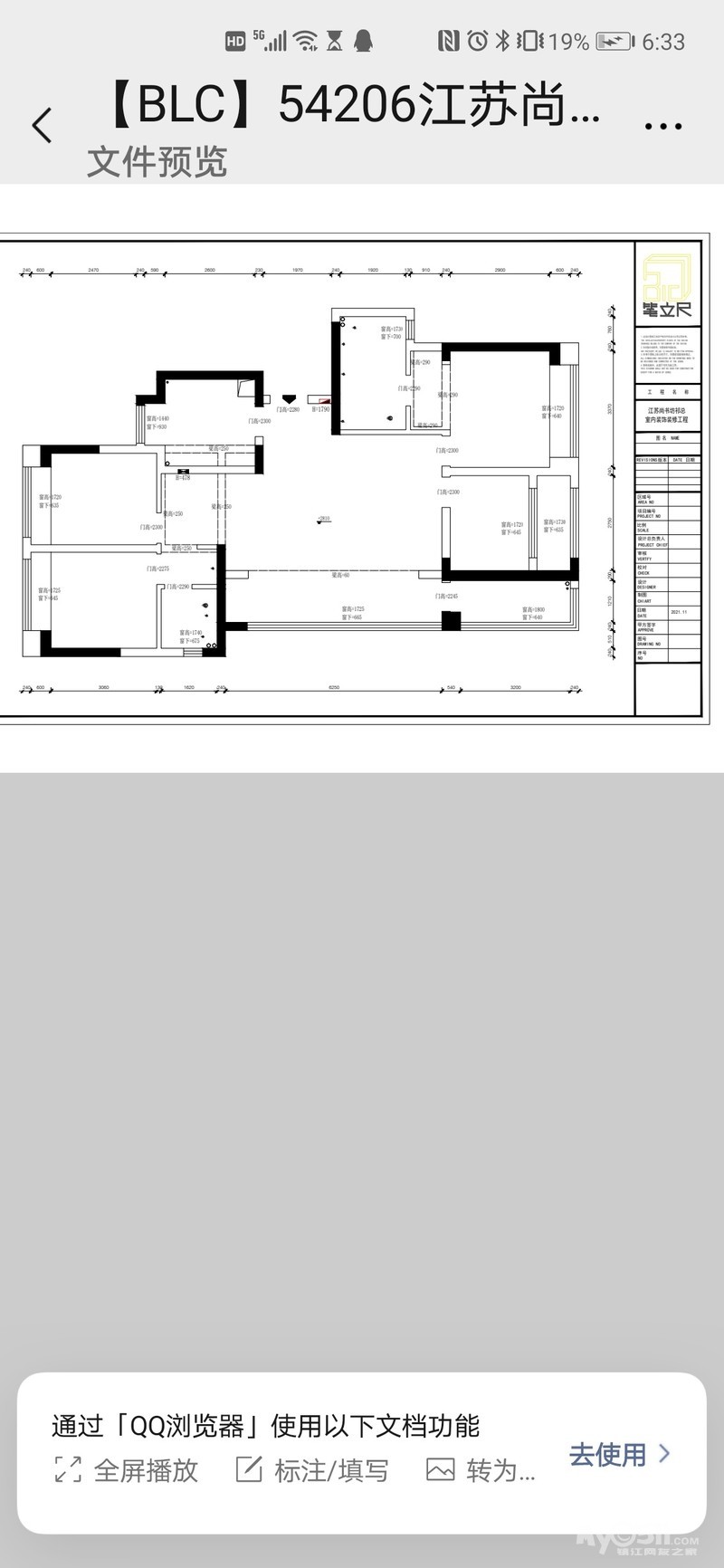
    原始尺寸图出来了感觉还挺专业吧




    • 来自 江苏省
    • 精华 0
    • 注册 2019-4-5
    •  

    开发商宣传图册




    • 来自 江苏省
    • 精华 0
    • 注册 2007-3-2
    • 行业 其它
    •  

    关注,学习




    查看积分策略说明快速回复主题
    您目前还是游客,请 登录注册
    您目前是游客,本帖已被系统设置了自动关闭,不可回复!

    0/5000字

     
    < >
     

    Powered by Discuz! X 2 0.087441 s 清除 Cookies - 镇江网友之家 - 手机版
    论坛导航 关闭