| 标题
快捷导航

精彩推荐:MY0511客户端下载

    • 中信银行镇江分行

    • 公益体彩 乐善人生

    • 鹏龙鸿蒙

    • 天然石材·人造石

    » 梦溪论坛 » 家庭装修 » [2023万家基和杯美家养成记]东锦花园---为父母打造的晚年新居
    家庭装修  >  [装修日记] [2023万家基和杯美家养成记]东锦花园---为父母打造的晚年新居     
    查看: 11230  回复: 22
    [装修日记] [2023万家基和杯美家养成记]东锦花园---为父母打造的晚年新居      查看: 11230  回复: 22
      本主题由 System 于 2023-12-31 16:00 解除限时高亮  
    • 来自 江苏省
    • 精华 0
    • 注册 2020-5-22
    •  
    [2023万家基和杯美家养成记]东锦花园---为父母打造的晚年新居

    从东北迁徙至镇江,父母早晚也是要跟随孩子的脚步的,于是在2014年购置了东锦花园(当时还有个洋气的名字:东方新卡纳)的一处小户型房产。由于父母不适应镇江的气候和习惯,并且缺少亲属、朋友的陪伴会感觉孤独,所以多年来到镇江都只是短住,但是前段时间父母突然提起,将房子装修一下,东北、镇江两边住住的想法,或许是随着年龄的增长和身体的衰老,老人家的心态发生改变,老人对孩子的依赖会变得更加强烈吧。了解到父母的想法,我便马不停蹄的开始实施,以下记录的将是为父母打造的晚年新居,一个舒适的小窝。


    [ 本帖最后由 my0511小妖 于 2023-5-22 15:22 编辑 ]





                      
    • 来自 江苏省
    • 精华 0
    • 注册 2021-7-3
    •  
    • 来自 江苏省
    • 精华 0
    • 注册 2010-1-16
    • 行业 工业制造
    •  

    邻居好




    • 来自 江苏省
    • 精华 0
    • 注册 2022-4-30
    •  

    加油^0^~




    • 来自 江苏省
    • 精华 0
    • 注册 2021-7-22
    •  

    很近的邻居




    • 来自 江苏省
    • 精华 0
    • 注册 2020-5-22
    •  

    装潢公司选择:
    接到父母的指示,便开始着手落实,第一步便是选择装潢公司,此时二老还远在东北老家,只能我先来打个前站。父亲年轻的时候是木工,后经进修成为了工程施工的项目经理,对于装潢还是略懂一二吧,所以前期我并不能确定他们准备选择什么样的合作模式,全包或是半包。
    网络大数据果然强大,似乎可以看透我们的内心,自有了装修想法后,抖音中便不断推各种装修平台,出于好奇,分别在土巴兔和信用家两个平台注册了一下,于是第二天便接到来自多家公司的电话预约,没有需求的时候是不厌其扰,有了需求就变得格外亲切了。
    在与几家公司预约量房、方案沟通、报价咨询等工作的开展过程中,迎来了二老的到来。于是,便可以更方便的了解二老的需求和想法,经过确认,他们还是决定采取全包的模式,他们的这个决定说实话多少有点出乎我的意料,随着年龄增长,再去过多操心一些事情可能是力不从心了,或许在我还没有意识到的时候,父母已经在慢慢变老了,一丝感慨!
    经过多家公司的沟通和比较,最终选择了镇江巢禾装饰,希望后面可以跟贵公司一起度过一段愉快的装修之旅。同时也向另外几家做了很多前期工作但未能合作的公司表达我最诚挚的谢意,感谢你们的付出,祝福所有的公司蒸蒸日上!


    [ 本帖最后由 自由落体79 于 2023-4-12 17:38 编辑 ]




    • 来自 江苏省
    • 精华 0
    • 注册 2020-5-22
    •  


    QUOTE:
    原帖由 NCC123 于 2023-4-12 15:06 发表
    欢迎版主




    • 来自 江苏省
    • 精华 0
    • 注册 2020-5-22
    •  


    QUOTE:
    原帖由 LQSY@ 于 2023-4-12 17:04 发表
    加油^0^~
    谢谢!




    • 来自 江苏省
    • 精华 0
    • 注册 2020-5-22
    •  


    QUOTE:
    原帖由 镇江天鹰装饰 于 2023-4-12 17:26 发表
    很近的邻居





    • 来自 江苏省
    • 精华 0
    • 注册 2020-5-22
    •  


    QUOTE:
    原帖由 小饼干a 于 2023-4-12 15:17 发表
    加油
    谢谢鼓励!




    • 来自 江苏省
    • 精华 0
    • 注册 2020-5-22
    •  


    QUOTE:
    原帖由 火姻缘 于 2023-4-12 15:39 发表
    邻居好
    邻居好!




    • 来自 江苏省
    • 精华 0
    • 注册 2020-5-22
    •  

    装修设计:
    户型较小,本无多少可以改变和发挥的余地,况且老人居住,对于一些表面的东西本不是很在意,但是根据他们的生活习惯,还是对屋内的结构做了一些改变和调整的。首先,由于厨房间较小,将客厅、厨房共用的阳台进行了分隔,扩充了厨房间的空间,将干湿分离的卫生间隔墙外移,扩大卫生间湿区的空间,改变了原客厅和次卧室的功能分区,即将原有背面的客厅改为次卧室,将原南面的次卧墙体打通,改成一个小的客厅,使得客餐厅连成一体,使餐厅的区域更加灵活。



    [ 本帖最后由 自由落体79 于 2023-4-13 14:14 编辑 ]




    • 来自 江苏省
    • 精华 155
    • 注册 2014-12-11
    • 行业 房产建筑
    •  

    恭喜开工大吉




    • 来自 江苏省
    • 精华 0
    • 注册 2020-5-22
    •  

    都说东北的冬天很冷,其实江苏的冬天没有供暖更加难受,尤其是对于来自东北的老人更加不适应,所以地暖便成了老人最基本的诉求!对于地暖这一块也没有太多的跑,就几个耳熟能详的品牌咨询、了解后,最终选择了暖福居销售的威能16kw锅炉,让二老感受到江苏冬天的温度跟东北冬天室内一样的温暖!



    [ 本帖最后由 自由落体79 于 2023-4-13 15:10 编辑 ]




    • 来自 江苏省
    • 精华 0
    • 注册 2020-5-22
    •  


    QUOTE:
    原帖由 百胜装饰 于 2023-4-13 14:30 发表
    恭喜开工大吉
    感谢老板。生意兴隆!!




    • 来自 江苏省
    • 精华 0
    • 注册 2020-5-22
    •  

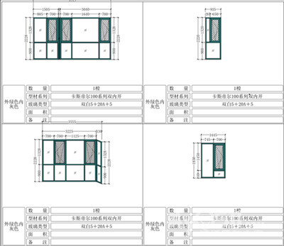
    装修公司和地暖已经落实了,下面一项就是封阳台、换窗户。在有限的预算之中,挤出这项费用,源自北方人对窗户密封、保温隔热的执拗,对于一般推拉窗不密封、保温隔热性能不好等天生缺陷,老人嗤之以鼻,所以要求必须全部换成系统窗,好吧,又是一笔不小的开支……由于我要上班,所以父亲自己到亿都去看了好几趟,可见老人家对于这一项目的重视。东锦花园的外窗颜色是绿色,真的好丑,现在已经很少有门窗商家常规做这个颜色的了,如果要用绿色,只能定制,所以每到一个商家首先要确认,绿色可以做吗?父亲跑过后,留下了三个价格、产品质量都满意的意向商家(辛苦了老人家,节省了我的精力),然后父亲带着我分别跟三个意向商家进行了深入的沟通和交流,最后综合考虑确定了亿都里面的富贵花,一款98双内开的系统门窗,外面定制的绿色,里面灰色,本来窗户的定制周期为15天,由于这个定制颜色,周期还要再加10天,不管怎样期待后续的效果!












    • 来自 江苏省
    • 精华 0
    • 注册 2020-5-22
    •  

    装修初期的三个主要项目:装潢公司、地暖、系统窗,已经落实到位,下一步就该进入实质性推进阶段了,首先是拆除工人进场,拆除部分墙体,拆除需要更换的门窗,拆除阳台保温板,部分墙体需要做打毛处理,此时的工地一片废墟,我想这就是所谓的不破不立吧!











    • 来自 江苏省
    • 精华 0
    • 注册 2020-5-22
    •  

    第一步的墙体拆除、墙面保温层铲除工作已经完成,由于封阳台的窗户定制周期较长,考虑到安全问题,两个阳台的护栏前期先不拆除,等阳台窗户到了,再将其拆除。现场垃圾已经清除完毕,干净卫生







    [ 本帖最后由 自由落体79 于 2023-4-14 15:37 编辑 ]




    • 来自 江苏省
    • 精华 0
    • 注册 2020-5-22
    •  

    几天没到工地去了,今天有空过去看了一下,水电工作在按部就班的进行着!



    [ 本帖最后由 自由落体79 于 2023-4-24 11:02 编辑 ]




    • 来自 江苏省
    • 精华 0
    • 注册 2020-5-22
    •  

    利用周六时间,在设计师的陪同下,将全屋的地砖、墙砖选好了,据说马上就要用到了!
    全屋通铺地砖

    卫生间墙砖

    卫生间地砖

    阳台墙砖


    [ 本帖最后由 自由落体79 于 2023-4-24 13:18 编辑 ]



    厨房间墙砖




    • 来自 江苏省
    • 精华 0
    • 注册 2020-5-22
    •  

    现场水电施工完工,这两天现场清理一下,为地暖施工腾地方,不过马上五一放假,地暖施工职能等到五一节后了!








    • 来自 江苏省
    • 精华 0
    • 注册 2022-5-8
    •  
    查看积分策略说明快速回复主题
    您目前还是游客,请 登录注册
    您目前是游客,本帖已被系统设置了自动关闭,不可回复!

    0/5000字

     
    < >
     

    Powered by Discuz! X 2 0.079031 s 清除 Cookies - 镇江网友之家 - 手机版
    论坛导航 关闭