小区名称:远洋2期
所在楼层:1楼
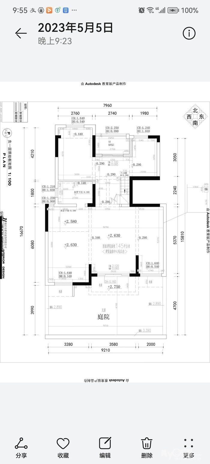
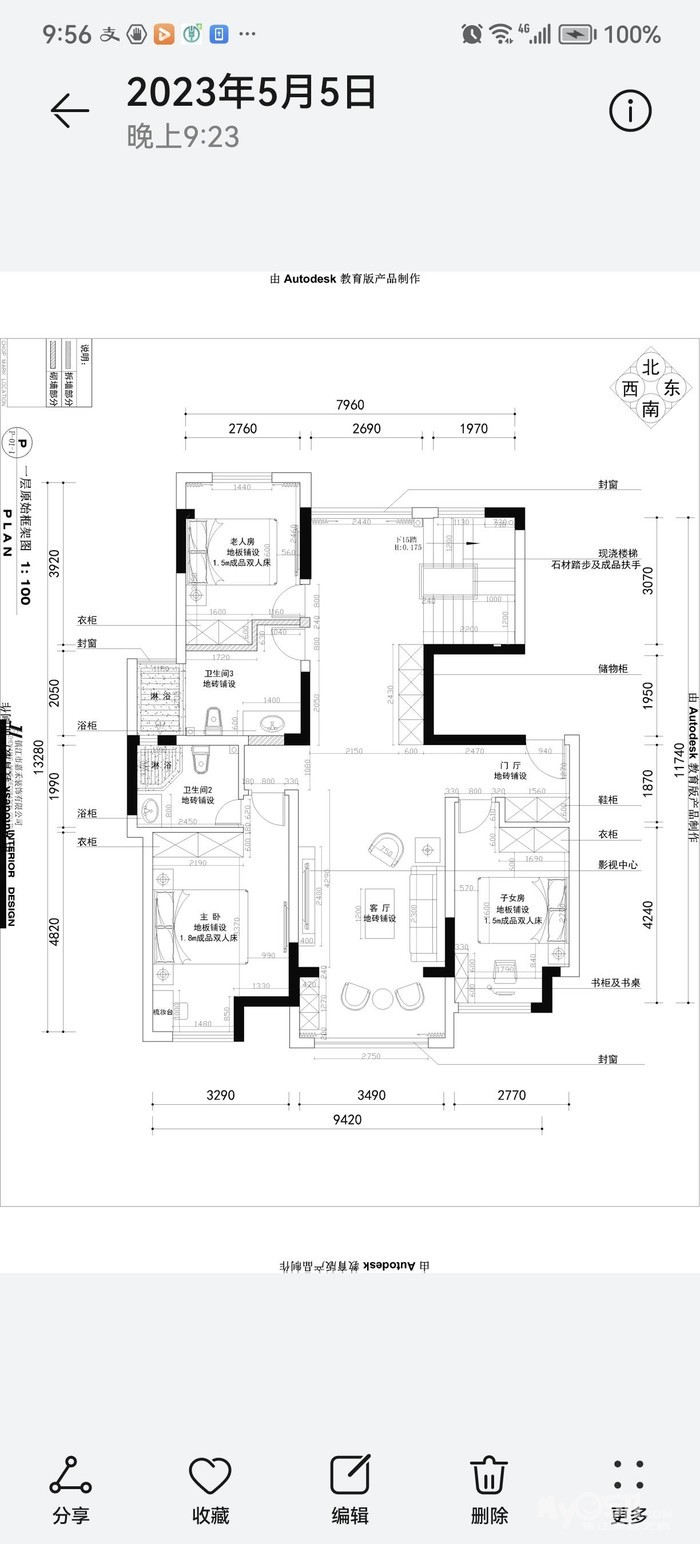
房屋面积:117+101
装修风格:现代 简约
装修方式:清包 自装
开工时间:2023.5.7
装修预算:50W
因为都是独生子女,考虑到两边父母老了之后的生活,(都住在乡下) 所以买了这个1楼的带院复式。
预算有限,加上老爸是木工,才敢选择自装。
特别感谢 嘉禾装饰的何总帮忙出的CAD图纸,也感谢中国好邻居(卡卡的毛尔),我有啥不知道的都是问她的。
[ 本帖最后由 淌口水的小兔 于 2023-6-26 13:52 编辑 ]
本主题由 System 于 2023-12-31 12:00 解除限时高亮
- 来自 江苏省
- 精华 0
- 注册 2012-9-1
- 行业 其它
- 来自 江苏省
- 精华 0
- 注册 2012-9-1
- 行业 其它
- 来自 江苏省
- 精华 0
- 注册 2012-9-1
- 行业 其它
- 来自 江苏省
- 精华 0
- 注册 2012-9-1
- 行业 其它
- 来自 江苏省
- 精华 0
- 注册 2021-8-7
- 来自 江苏省
- 精华 0
- 注册 2012-9-1
- 行业 其它
- 来自 江苏省
- 精华 0
- 注册 2012-9-1
- 行业 其它
- 来自 江苏省
- 精华 0
- 注册 2012-9-1
- 行业 其它
- 来自 江苏省
- 精华 0
- 注册 2012-9-1
- 行业 其它









把2楼的入户门封掉,改成衣帽间。 入户门改在一楼北面
支持一下,有地下室还有门口小花园,羡慕
















































