| 标题
快捷导航

精彩推荐:MY0511客户端下载

    • 中信银行镇江分行

    • 公益体彩 乐善人生

    • 鹏龙鸿蒙

    • 天然石材·人造石

    » 梦溪论坛 » 装修商家直通车 » 大奢豪宅,风生水起!别墅宜居 设计专场6.10下午一点半万家基和与您相约碧榆园江州厅
    装修商家直通车  >  [品牌广告] 大奢豪宅,风生水起!别墅宜居 设计专场6.10下午一点半万家基和与您相约碧榆园江州厅     
    查看: 38910  回复: 47
    [品牌广告] 大奢豪宅,风生水起!别墅宜居 设计专场6.10下午一点半万家基和与您相约碧榆园江州厅      查看: 38910  回复: 47
    • 来自 江苏省
    • 精华 222
    • 注册 2011-7-1
    • 行业 其它
    •  
    大奢豪宅,风生水起!别墅宜居 设计专场6.10下午一点半万家基和与您相约碧榆园江州厅



    大奢豪宅,风生水起

    【万家基和装饰】雪峰精品设计中心

    6月10日下午13:30点与您相约碧榆园江州厅

    四大价值:

    提高空间使用率    提升空间舒适度

    提升空间美观度    提高空间灵活性

    实景案例解析,详解设计过程、设计要素

    从量房到方案,从施工图到实景呈现

    实景案例解析,现场宜居大师详细讲解别墅

    装修中的注意事项,如何布局好的宜居

    活动当天上百套实景别墅作品展示,

    镇江各大小区别墅样板房直通车参观

    强大的设计团队提供户型分析



    设计主讲:
    刘雪峰


    中国建筑学会室内设计分会  会员

    中国室内设计师协会高级注册设计师

    镇江万家基和设计  首席设计师

    中国中青年书法协会  会员

    第六空间签约设计师

    宜居主讲:周鼎铭


    周鼎明,字墨南,无锡人士,系周敦颐锡山系支系后裔,法学专业出身,自幼接受传统国学教育。

    以“缘起性空,因果不空”的禅学思想为准则,广结善缘,服务大众。

    万家基和装饰首席文案编辑、设计顾问团队成员、宜居设计讲师、堪舆顾问。



    咨询报名热线:0511-88985388





    [ 本帖最后由 万家基和客服 于 17-5-28 14:40 编辑 ]





                      
    • 来自 江苏省
    • 精华 222
    • 注册 2011-7-1
    • 行业 其它
    •  

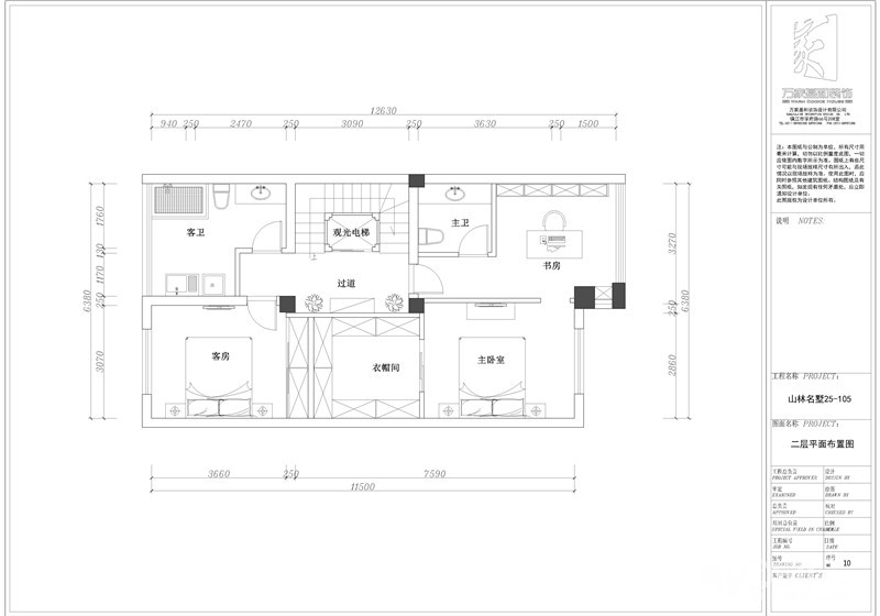
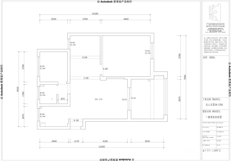
    山林名墅新中式--------刘雪峰设计




    【业主】:
    周先生
    【建筑面积】:300平方  
    【工程造价】:17万(半包)  

    【风格】:新中式
    【设计师】:刘雪峰

    【设计理念】:琴倾听禅,南山新语,以禅道、优雅、心旷、神怡为设计理念打造的一套作品
    【户型展示】
    负一原始户型图

    负一平面布置图

    一层原始户型图

    一层平面布置图

    二层原始户型图

    二层平面布置图

    三层原始户型图



    三层平面布置图

    门厅效果图

    客厅效果图



    餐厅效果图

    卧室效果图

    书房效果图


    [ 本帖最后由 万家基和客服 于 17-5-29 09:22 编辑 ]




    • 来自 江苏省
    • 精华 222
    • 注册 2011-7-1
    • 行业 其它
    •  

    山林名墅新中式--------刘雪峰设计




    【业主】:李女士
    【建筑面积】:300  
    【设计风格】:新中式

    【工程造价】:17万(半包)  
    【设计师】:刘雪峰

    户型展示
    地下室原始户型图

    地下室平面设计图

    一层原始户型图

    一层平面设计图

    二层原始户型图

    二层平面设计图

    三层原始户型图

    三层平面设计图

    客厅效果图



    餐厅效果图


    书房效果图


    卧室效果图



    [ 本帖最后由 万家基和客服 于 17-5-29 09:23 编辑 ]




    • 来自 江苏省
    • 精华 222
    • 注册 2011-7-1
    • 行业 其它
    •  

    山林名墅新中式--------刘雪峰设计




    【业主】:
    张先生
    【建筑面积】:300平米
    【工程造价】:17.5万(半包)  

    【风格】:新中式
    【设计师】:刘雪峰

    【户型展示】
    负一层原始户型图

    负一层平面布置图

    一层原始户型图

    一层平面布置图

    二层原始户型图

    二层平面布置图

    三层原始户型图

    三层平面布置图


    客、餐厅效果图






    卧室效果图

    书房效果图


    过道效果图


    [ 本帖最后由 万家基和客服 于 17-5-29 09:24 编辑 ]




    • 来自 江苏省
    • 精华 222
    • 注册 2011-7-1
    • 行业 其它
    •  

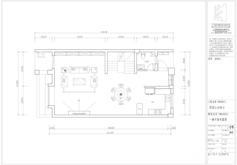
    绿园山庄美式------朱赟设计




    【业主】:王女士
    【建筑面积】:
    360平米
    【装修风格】:美式
    【工程造价】:22.0万(半包)
    【设计师】:朱赟



    【工程部负责人】:袁成林
    【项目经理】:

    【户型展示】
    负一层原始户型图



    一层原始户型图




    二层原始户型图



    三层原始户型图



    负一层平面设计图



    一层平面设计图



    二层平面设计图



    三层平面设计图



    客厅效果图


    客、餐厅效果图



    餐厅、厨房效果图



    书房效果图



    卧室效果图


    [ 本帖最后由 万家基和客服 于 17-5-29 09:26 编辑 ]




    • 来自 江苏省
    • 精华 222
    • 注册 2011-7-1
    • 行业 其它
    •  

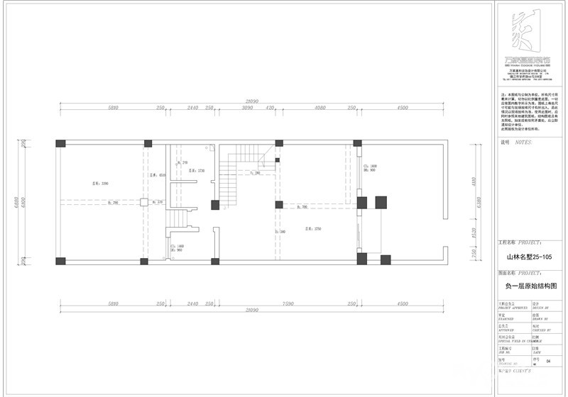
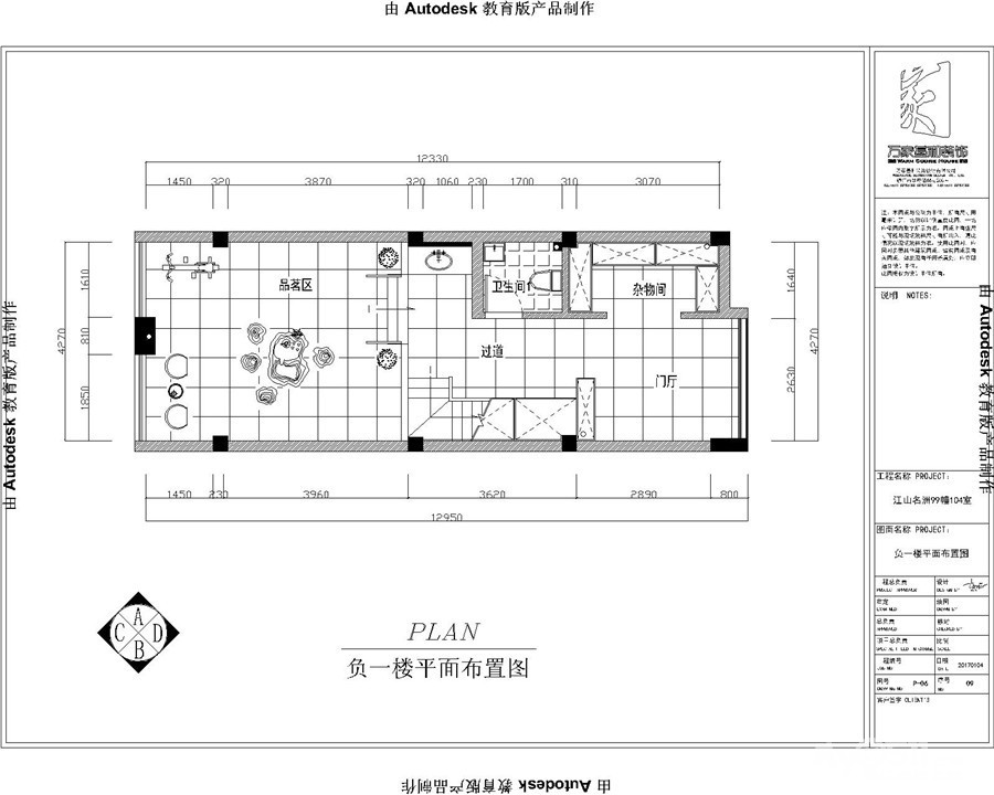
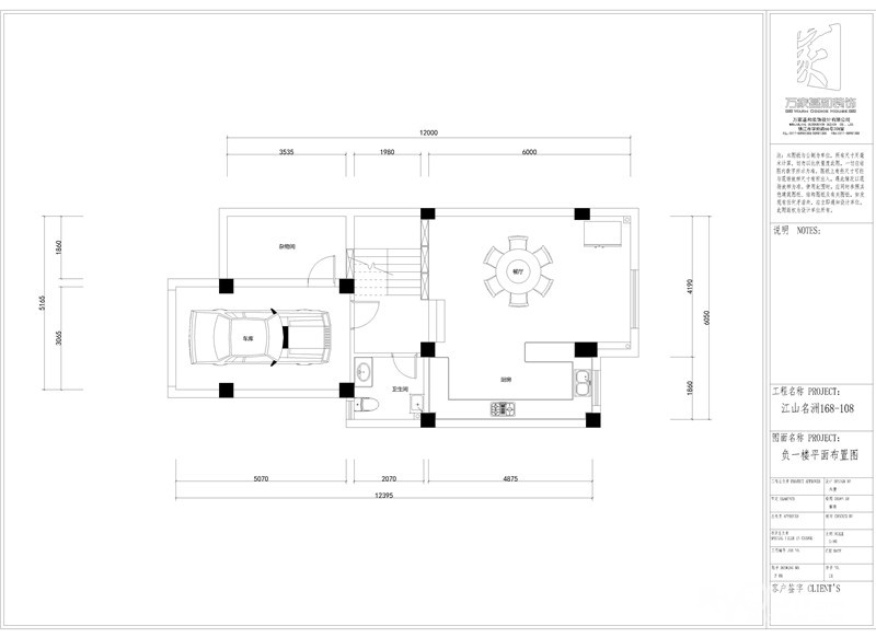
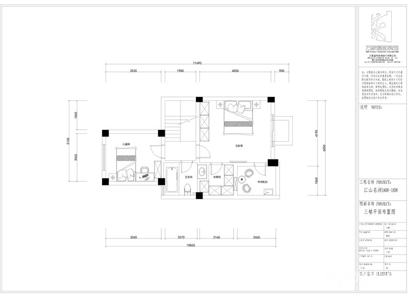
    江山名洲美式--------赵昕设计




    【业主】:杨女士
    【建筑面积】:260  
    【设计风格】:美式

    【工程造价】:14.3万(半包)  
    【设计师】:赵昕

    户型展示
    负一层原始户型图

    负一层平面设计图

    一层原始户型图

    一层平面设计图

    二层原始户型图

    二层平面设计图

    三层原始户型图

    三层平面设计图

    阁楼原始户型图


    阁楼平面设计图


    客厅效果图

    餐厅效果图




    卧室效果图

    门厅效果图


    [ 本帖最后由 万家基和客服 于 17-5-29 09:28 编辑 ]




    • 来自 江苏省
    • 精华 222
    • 注册 2011-7-1
    • 行业 其它
    •  

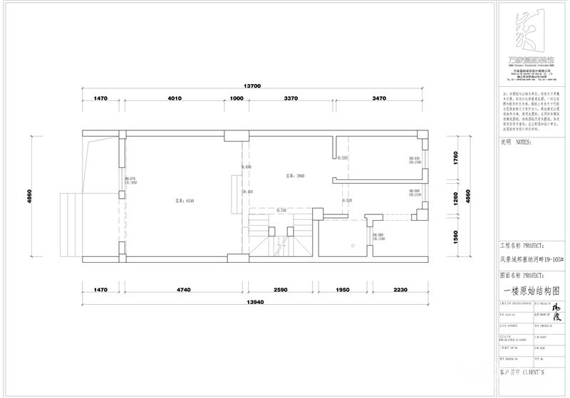
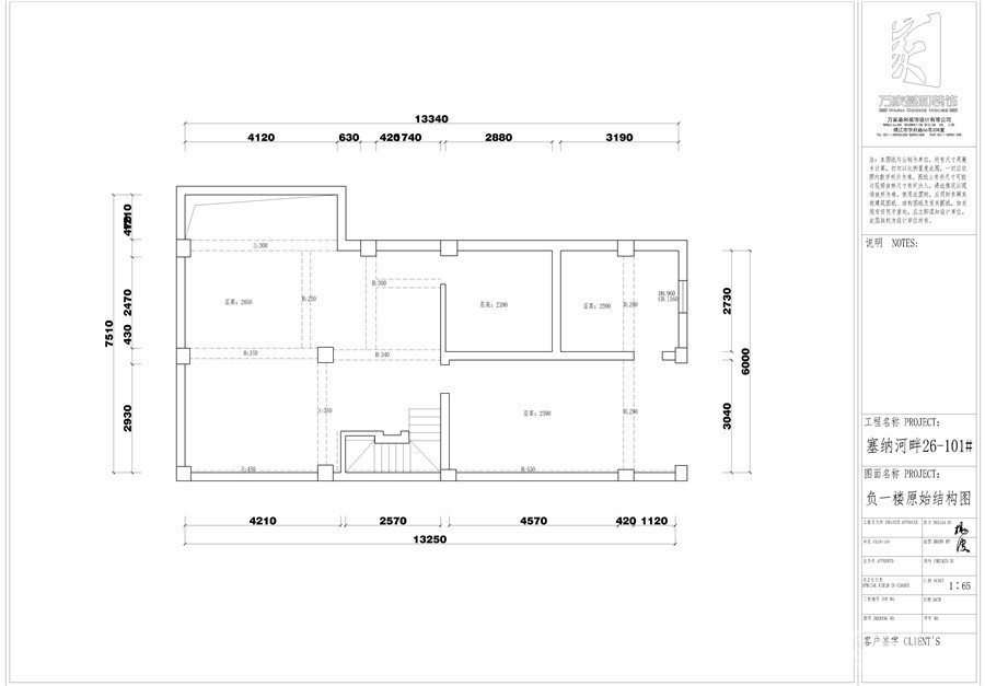
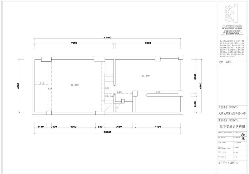
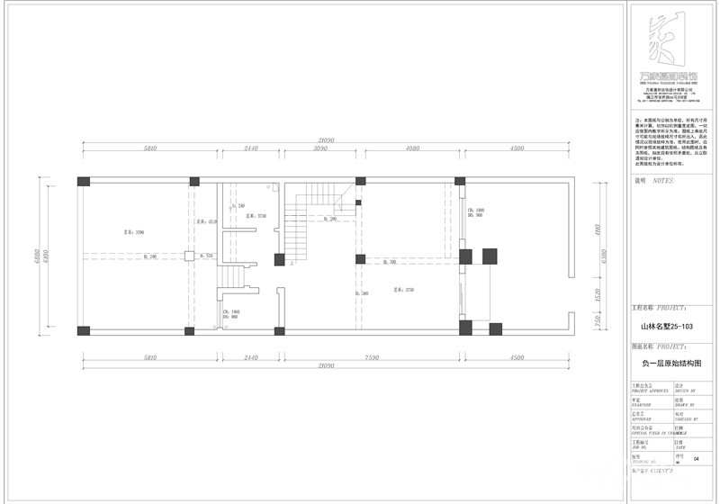
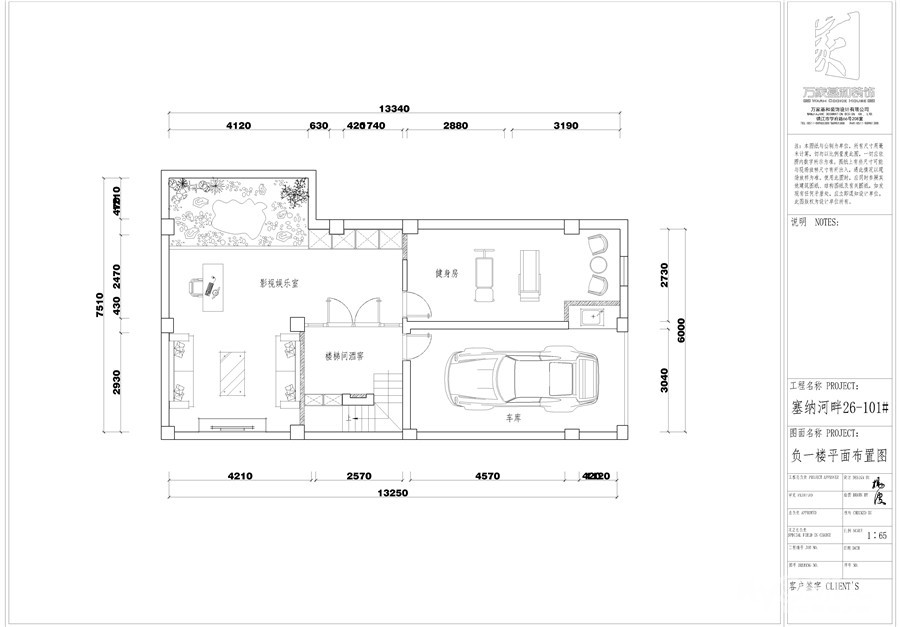
    风景城邦塞纳河畔美式------杨波设计




    【业主】:
    解先生
    【建筑面积】:350平方  
    【工程造价】:13.0万(半包)  

    【风格】:美式
    【设计师】:杨波

    【户型展示】
    负一层原始户型图



    一层原始户型图


    二层原始户型图


    三层原始户型图


    负一层平面布置图


    一层平面布置图


    二层平面布置图



    三层平面布置图





    客厅效果图




    客、餐厅效果图










    卧室效果图






    过道效果图


    [ 本帖最后由 万家基和客服 于 17-5-29 09:29 编辑 ]




    • 来自 江苏省
    • 精华 222
    • 注册 2011-7-1
    • 行业 其它
    •  

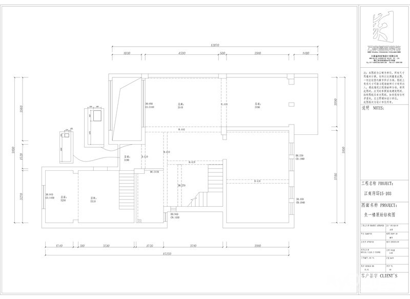
    江南府邸中式------朱赟设计




    【业主】:魏先生
    【建筑面积】:
    420平米
    【装修风格】:中式
    【工程造价】:22.0万(半包)
    【设计师】:朱赟


    【户型展示】
    负一层原始户型图



    一层原始户型图


    二层原始户型图


    三层原始户型图



    负一层平面设计图



    一层平面设计图


    二层平面设计图


    三层平面设计图



    地下室效果图







    过道效果图



    客厅效果图


    餐厅效果图




    卧室效果图




    [ 本帖最后由 万家基和客服 于 17-5-29 09:29 编辑 ]




    • 来自 江苏省
    • 精华 222
    • 注册 2011-7-1
    • 行业 其它
    •  

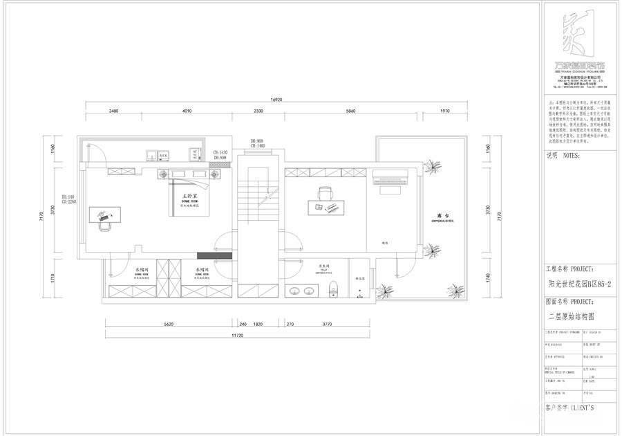
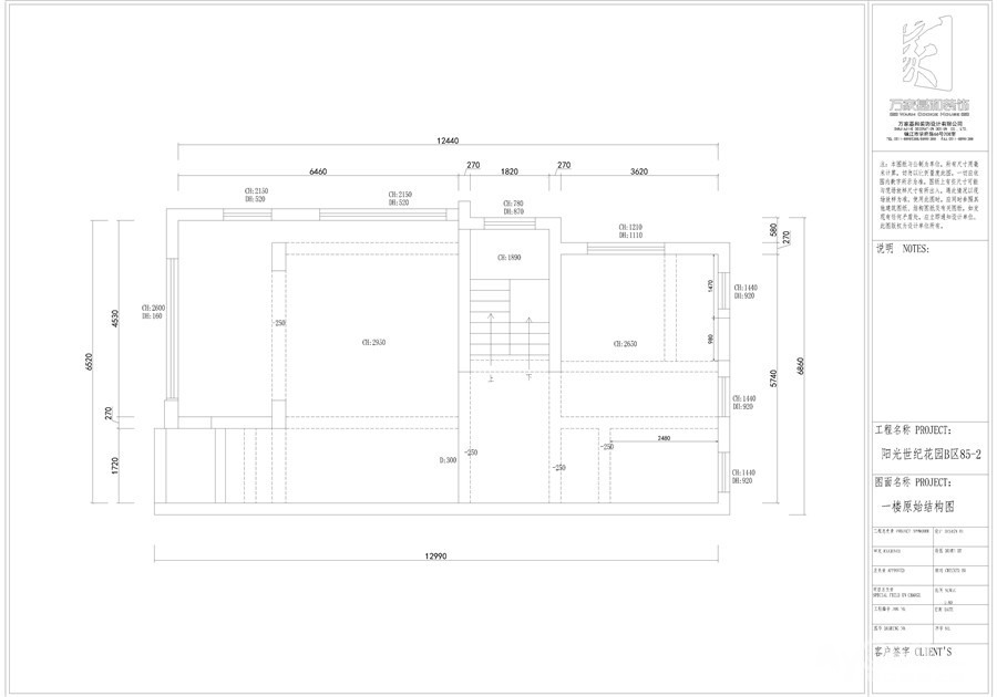
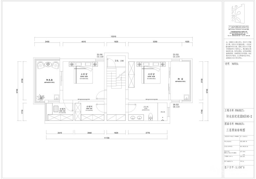
    阳光世纪花园现代中式--------秦小白设计




    【业主】:郜先生
    【建筑面积】:300  
    【设计风格】:现代中式

    【工程造价】:14.5万(半包)  
    【设计师】:秦小白
      
    户型展示

    一层原始户型图

    一层平面设计图

    二层原始户型图


    二层平面设计图


    三层原始户型图


    三层平面设计图

    客厅效果图






    餐厅效果图


    [ 本帖最后由 万家基和客服 于 17-5-29 09:29 编辑 ]




    • 来自 江苏省
    • 精华 222
    • 注册 2011-7-1
    • 行业 其它
    •  

    泰银茗园北欧风格--------胡强设计




    【业主】:
    徐先生
    【建筑面积】:300平方  
    【工程造价】:15万(半包)  

    【风格】:北欧风格
    【设计师】:胡强

    【户型展示】
    负一原始户型图

    负一平面布置图

    一层原始户型图

    一层平面布置图



    二层原始户型图

    二层平面布置图

    客厅效果图



    餐厅效果图






    [ 本帖最后由 万家基和客服 于 17-5-29 09:30 编辑 ]




    • 来自 江苏省
    • 精华 222
    • 注册 2011-7-1
    • 行业 其它
    •  

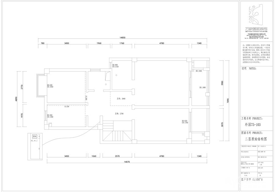
    朴园美式简约--------秦小白设计




    【业主】:田女士
    【建筑面积】:250  
    【设计风格】:美式简约

    【工程造价】:13.6万(半包)  
    【设计师】:秦小白

    户型展示

    负一层原始户型图

    负一层平面设计图

    一层原始户型图

    一层平面设计图

    二层原始户型图

    二层平面设计图

    客厅效果图

    餐厅效果图




    过道效果图




    [ 本帖最后由 万家基和客服 于 17-5-29 09:30 编辑 ]




    • 来自 江苏省
    • 精华 222
    • 注册 2011-7-1
    • 行业 其它
    •  

    万科蓝山欧式风格------杨波设计




    【业主】:
    陈先生
    【建筑面积】:
    374平方
    【设计风格】:
    欧式
    【工程造价】:
    25.8万(半包)  
    【设计师】:
    杨波

    户型展示
    一层原始户型图

    一层平面设计图

    二层原始户型图


    二层平面设计图


    三层原始户型图


    三层平面设计图

    客厅效果图

    餐厅效果图

    主卧效果图

    书房效果图


    [ 本帖最后由 万家基和客服 于 17-5-29 09:31 编辑 ]




    • 来自 江苏省
    • 精华 222
    • 注册 2011-7-1
    • 行业 其它
    •  

    风景城邦塞纳河畔禅意中式--------杨波设计




    【业主】:郭女士
    【建筑面积】:350平米
    【工程造价】:19.7万半包)
    【装修风格】:禅意中式

    【设计师】:杨波

    【户型展示】
    地下室原始户型图

    地下室平面设计图

    一层原始户型图



    一层平面设计图


    二层原始户型图


    二层平面设计图


    三层原始户型图


    三层平面设计图


    客厅效果图








    餐厅效果图

    玄关效果图


    地下室效果图









    [ 本帖最后由 万家基和客服 于 17-5-29 09:31 编辑 ]




    • 来自 江苏省
    • 精华 222
    • 注册 2011-7-1
    • 行业 其它
    •  

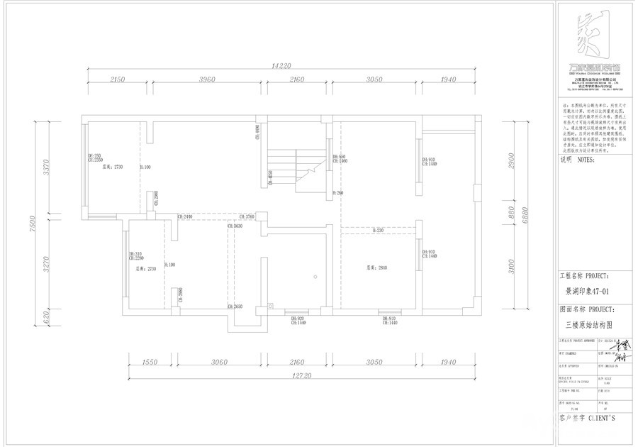
    景湖印象美式--------朱赟设计




    【业主】:薛女士
    【建筑面积】:380  
    【设计风格】:美式

    【工程造价】:19万(半包)  
    【设计师】:朱赟

    户型展示
    负一层原始户型图

    负一层平面设计图

    一层原始户型图

    一层平面设计图

    二层原始户型图


    二层平面设计图


    三层原始户型图


    三层平面设计图

    客厅效果图

    餐厅效果图

    卧室效果图


    门厅效果图


    [ 本帖最后由 万家基和客服 于 17-5-29 09:32 编辑 ]




    • 来自 江苏省
    • 精华 222
    • 注册 2011-7-1
    • 行业 其它
    •  

    朴园混搭--------赵昕设计




    【业主】:陈先生
    【建筑面积】:
    400平米
    【装修风格】:混搭
    【工程造价】:24.0万(半包)
    【设计师】:赵昕


    【户型展示】
    负一层原始户型图


    负一层平面设计图



    一层原始户型图


    一层平面设计图


    二层原始户型图


    二层平面设计图


    三层原始户型图


    三层平面设计图


    四层原始户型图


    四层平面设计图


    客、餐厅效果图




    卧室效果图


    卫生间效果图


    过厅效果图



    [ 本帖最后由 万家基和客服 于 17-5-29 09:32 编辑 ]




    • 来自 江苏省
    • 精华 222
    • 注册 2011-7-1
    • 行业 其它
    •  

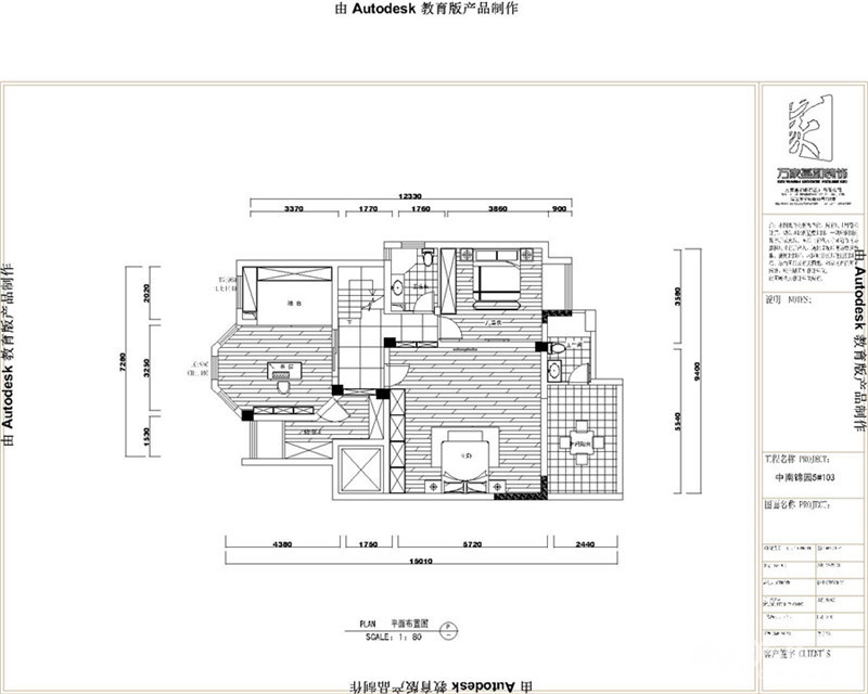
    中南锦园中式------杨越设计




    【业主】:刘女士
    【建筑面积】:330
    平米
    【装修风格】:中式
    【工程造价】:15.0万(半包)
    【设计师】:杨越


    【户型展示】
    负一层原始户型图



    一层原始户型图



    二层原始户型图



    负一层平面设计图



    一层平面设计图


    二层平面设计图


    客厅效果图




    餐厅效果图



    [ 本帖最后由 万家基和客服 于 17-5-29 09:33 编辑 ]




    • 来自 江苏省
    • 精华 222
    • 注册 2011-7-1
    • 行业 其它
    •  

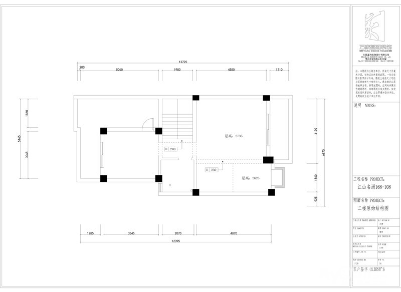
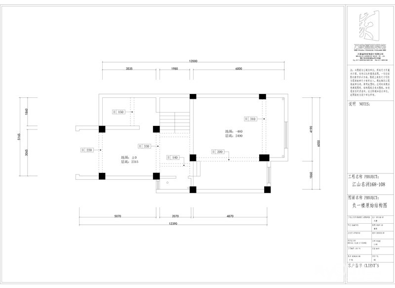
    江山名洲中式------朱赟设计




    【业主】:纪女士
    【建筑面积】:
    320平米
    【装修风格】:中式
    【工程造价】:16.5万(半包)
    【设计师】:朱赟


    【户型展示】
    负一层原始户型图


    一层原始户型图




    二层原始户型图





    三层原始户型图


    负一层平面设计图



    一层平面设计图



    二层平面设计图



    三层平面设计图



    客厅效果图





    [ 本帖最后由 万家基和客服 于 17-5-29 09:33 编辑 ]




    • 来自 江苏省
    • 精华 222
    • 注册 2011-7-1
    • 行业 其它
    •  

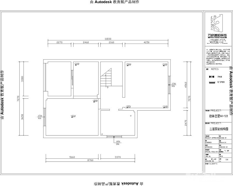
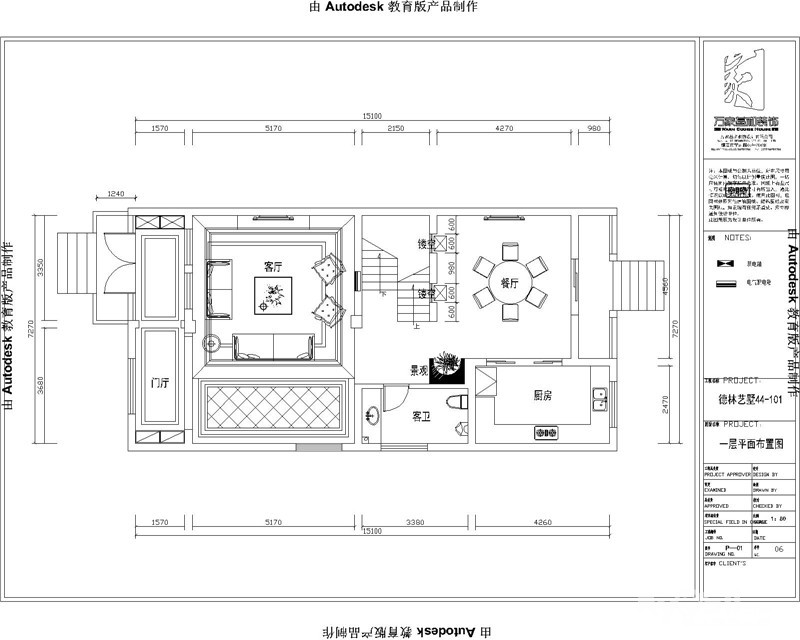
    德林艺墅新中式------刘雪峰设计




    【业主】:倪先生
    【建筑面积】:
    400平米
    【装修风格】:新中式
    【工程造价】:21.0万(半包)
    【设计师】:刘雪峰


    【户型展示】
    负一层原始户型图



    一层原始户型图



    二层原始户型图




    三层原始户型图





    负一层平面设计图



    一层平面设计图



    二层平面设计图



    三层平面设计图



    门厅效果图



    客厅效果图


    餐厅效果图


    卧室效果图



    [ 本帖最后由 万家基和客服 于 17-5-29 09:33 编辑 ]




    • 来自 江苏省
    • 精华 222
    • 注册 2011-7-1
    • 行业 其它
    •  

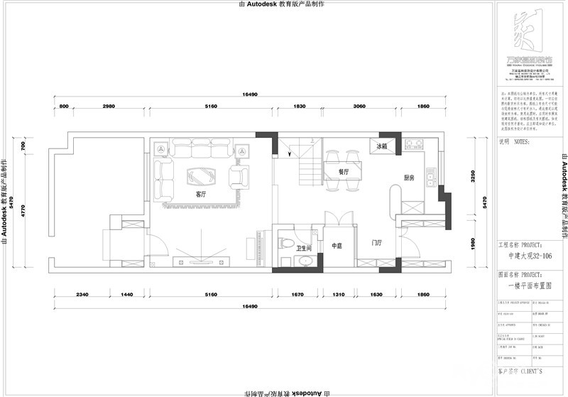
    中建大观美式------朱赟设计




    【业主】:孙先生
    【建筑面积】:
    300平米
    【装修风格】:美式
    【工程造价】:13.0万(半包)
    【设计师】:朱赟


    【户型展示】
    一层原始户型图



    二层原始户型图




    三层原始户型图


    一层平面设计图


    二层平面设计图



    三层平面设计图



    客厅效果图




    餐厅效果图


    [ 本帖最后由 万家基和客服 于 17-5-29 09:34 编辑 ]




    • 来自 江苏省
    • 精华 222
    • 注册 2011-7-1
    • 行业 其它
    •  

    中南锦园混搭------朱赟设计



    【业主】:刘先生
    【建筑面积】:
    310平米
    【装修风格】:混搭
    【工程造价】:13万(半包)
    【设计师】:朱赟


    【户型展示】
    地下原始户型图



    一层原始户型图


    二层原始户型图


    地下平面设计图


    一层平面设计图


    二层平面设计图


    客厅效果图


    餐厅效果图


    卧室效果图


    门厅效果图


    地下室效果图



    [ 本帖最后由 万家基和客服 于 17-5-29 09:34 编辑 ]




    • 来自 江苏省
    • 精华 222
    • 注册 2011-7-1
    • 行业 其它
    •  

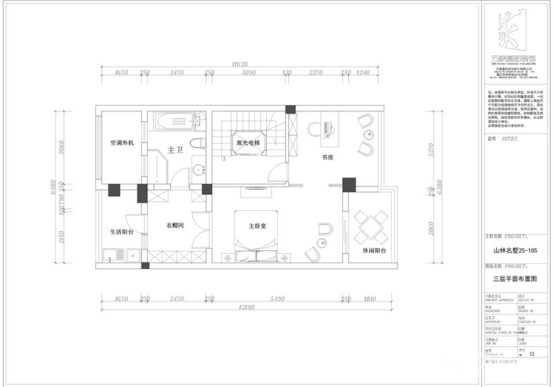
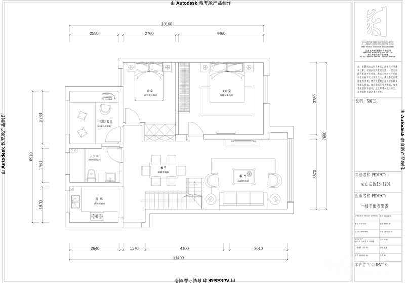
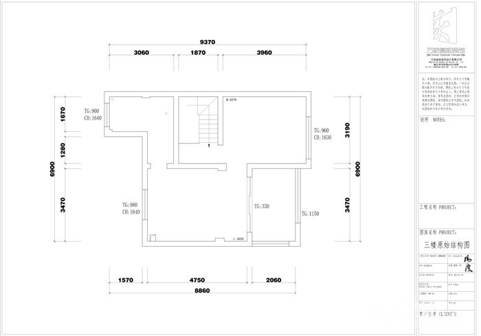
    学林雅郡新中式------刘雪峰设计




    【业主】:张女士
    【建筑面积】:
    270平米
    【装修风格】:新中式
    【工程造价】:14.0万(半包)
    【设计师】:刘雪峰


    【户型展示】
    负一层原始户型图



    一层原始户型图




    二层原始户型图



    三层原始户型图


    负一层平面设计图



    一层平面设计图



    二层平面设计图



    三层平面设计图


    客厅效果图




    餐厅效果图



    卧室效果图





    [ 本帖最后由 万家基和客服 于 17-5-29 09:35 编辑 ]




    • 来自 江苏省
    • 精华 222
    • 注册 2011-7-1
    • 行业 其它
    •  

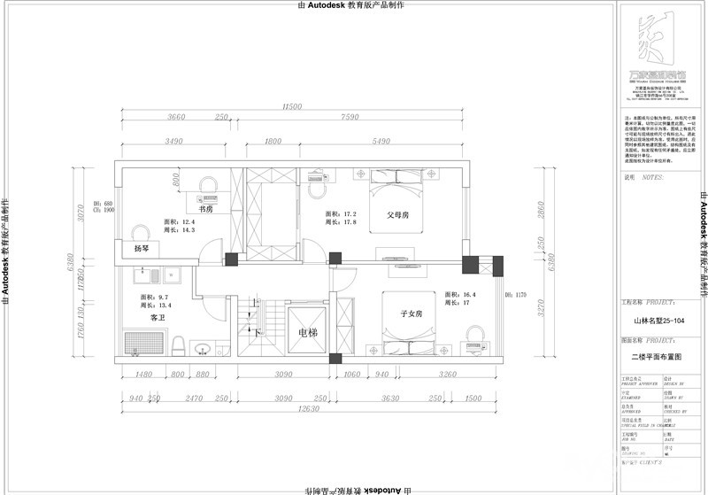
    三山镇自建别墅中式------朱赟设计




    【业主】:解先生
    【建筑面积】:
    340平米
    【装修风格】:中式
    【工程造价】:18.0万(半包)
    【设计师】:朱赟


    【户型展示】
    一层原始户型图



    二层原始户型图


    一层平面设计图


    二层平面设计图


    入户效果图


    活动室效果图


    客厅效果图


    楼道效果图



    主卧效果图



    主卧书房效果图



    次卧效果图



    次卧书房效果图


    [ 本帖最后由 万家基和客服 于 17-5-29 09:35 编辑 ]




    • 来自 江苏省
    • 精华 222
    • 注册 2011-7-1
    • 行业 其它
    •  

    中南锦园美式------朱赟设计



    【业主】:陈先生
    【建筑面积】:
    330平米
    【装修风格】:美式
    【工程造价】:17.0万(半包)
    【设计师】:朱赟


    【户型展示】
    一层原始户型图


    二层原始户型图


    一层平面设计图


    二层平面设计图


    客厅效果图


    餐厅效果图


    卧室效果图




    [ 本帖最后由 万家基和客服 于 17-5-29 09:35 编辑 ]




    • 来自 江苏省
    • 精华 222
    • 注册 2011-7-1
    • 行业 其它
    •  

    南山一品美式------朱赟设计




    【业主】:张女士
    【建筑面积】:360平米
    【装修风格】:美式
    【工程造价】:15.1万(半包)
    【设计师】:朱赟

    【户型展示】
    负一层原始户型图


    一层原始户型图


    二层原始户型图


    三层原始户型图


    负一层平面设计图


    一层平面设计图


    二层平面设计图


    三层平面设计图


    客厅效果图


    餐厅效果图


    门厅效果图


    主卧效果图


    [ 本帖最后由 万家基和客服 于 17-5-29 09:36 编辑 ]




    • 来自 江苏省
    • 精华 222
    • 注册 2011-7-1
    • 行业 其它
    •  

    万科红郡西岸美式------朱赟设计




    【业主】:王女士
    【建筑面积】:
    265平米
    【装修风格】:美式
    【工程造价】:10.5万(半包)
    【设计师】:朱赟


    【户型展示】
    地下原始户型图



    一层原始户型图


    地下平面设计图


    一层平面设计图


    客厅效果图


    餐厅效果图


    娱乐室效果图


    [ 本帖最后由 万家基和客服 于 17-5-29 09:38 编辑 ]




    • 来自 江苏省
    • 精华 222
    • 注册 2011-7-1
    • 行业 其它
    •  

    学林雅郡现代简约-----杨波设计




    【业主】:女士
    【建筑面积】:320平方  

    【工程造价】:15万(半包)  
    【风格】:现代简约
    【设计师】:杨波

    【户型展示】
    户型图展示



















    效果图展示










    [ 本帖最后由 万家基和客服 于 17-5-29 09:38 编辑 ]




    • 来自 江苏省
    • 精华 222
    • 注册 2011-7-1
    • 行业 其它
    •  

    龙山庄园简约------胡强设计




    【业主】:金女士
    【建筑面积】:
    210平米
    【装修风格】:简约
    【工程造价】:12.0万(半包)
    【设计师】:胡强


    【户型展示】
    一层原始户型图



    二层原始户型图


    三层原始户型图


    一层平面设计图



    二层平面设计图



    三层平面设计图



    客、餐厅效果图




    二楼休闲区效果图








    [ 本帖最后由 万家基和客服 于 17-5-29 09:39 编辑 ]




    • 来自 江苏省
    • 精华 222
    • 注册 2011-7-1
    • 行业 其它
    •  

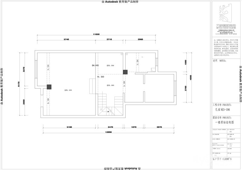
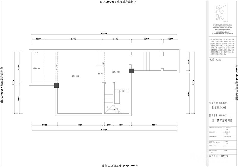
    孔雀城现代------杨越设计



    【业主】:徐女士
    【建筑面积】:
    240平米
    【装修风格】:现代
    【工程造价】:13.0万(半包)
    【设计师】:杨越


    【户型展示】
    负一层原始户型图



    一层原始户型图




    二层原始户型图





    负一层平面设计图



    一层平面设计图



    二层平面设计图




    客厅效果图


    客、餐厅效果图






    [ 本帖最后由 万家基和客服 于 17-5-29 09:39 编辑 ]




    • 来自 江苏省
    • 精华 222
    • 注册 2011-7-1
    • 行业 其它
    •  

    别墅专场,风水宜居户型分析,




    • 来自 江苏省
    • 精华 0
    • 注册 2017-5-16
    •  

    好多性冷淡的房子。。。




    • 来自 江苏省
    • 精华 222
    • 注册 2011-7-1
    • 行业 其它
    •  

    《岁晏简梦》紫郡丽舍美式混搭风格------赵昕设计




    岁晏简梦                                                  


                                                            ————赵昕 设计      夏秋萍 撰文                                                                                                                                                                                                                                                                                                             


    【案例风格】:美式混搭风格
    【案例名称】:紫郡丽舍
    【案例地点】:江苏镇江
    【案例面积】:200平米


    生命宛若一条溪流,悠远绵长
    时间又宛若流水,划过指尖匆匆而过……
    人生在跌跌撞撞之后,会愈发的享受如流水般的宁静致远
    繁杂之后终会终会变得平淡
    在生命的长河中,在转瞬即逝、如流水般的时光里
    我们能握住的又是什么?
    过去的是财富,未来的是无常
    唯有当下,能够被握在手中……
    那流淌在光阴里的恬淡,细润在心田,定会让生活充满芳香

    玄关、过道


    当下,是温暖、是光亮
    是推门而入时迎面而来的坚实臂膀
    是我此刻手中攥着的钥匙发出的清脆声响




    安静的人喜欢安静的颜色
    当一天忙碌的上班过后,回到家里,打开房门
    一片清新明丽、淡淡痕迹的花纹若隐若现
    如同泛起阵阵涟漪的湖水,是那么的宁静与自然




    生活中处处都充满了惊喜和小确幸
    比如,那掩藏于楼道下的小处美景
    一不小心就美翻了整个家……

    客厅


    当下,是惬意、是徜徉
    是每一次发自心底的开怀大笑
    是每一次欢聚一堂的不舍散场




    我们忙着对抗冬日里凛冽的寒意
    植物却保有着这样的神奇
    用青翠的绿意和盎然的生机
    循环于这时令交替的一轮轮花期……




    你走过那么多路
    遇到过那么多人
    看过那么多风景
    那你有没有拥有过这么一隅美景
    让你的故事更加动听




    人生不止眼前,还有诗和远方的田野
    有这样一种生活意境
    它开在诗和远方的心田
    离家很近,离喧嚣很远……




    有谁告诉你,诗和远方就仅是一句空想的生活情景
    简约线条与原木气息就能勾起你对诗意的无限想象




    如果整间屋子只剩下你
    随处都可以用诗句来表达生活的写意
    简单、随性、清新
    在回归乡村质朴生活的同时
    也完整保留着大城市的摩登




    每一件家具都是一首自由的歌
    为你撰写一本经典的美式歌单
    或舒缓、或悠扬、带上耳朵,一起聆听……

    客、餐厅


    一杯美式咖啡、一曲冬日的蓝调
    不必刻意摆设、不必严苛要求
    如此渴望的自由随性
    仅仅摆在那里便可呈现……




    一年秋冬轮转,露水凝结为早起的寒霜
    我们身体上最先感知季节变化的除了皮肤,就是胃
    每天都期盼着即将搬上餐桌的冒着热气的暖汤……






    在无色的季节里
    怒放的花朵成为冬日里不可多得的美景
    或花团锦簇、或小朵怡人
    墙上的太阳挂钟更是将这满墙的春色衬托得更加淋漓尽致

    厨房






    橱柜定制不仅能实现个性化
    还可以为你创造出新的可用空间
    让你的空间更加饱满
    每一份定制都传达出简约、实用
    让你可以自由自在的享受生活

    楼梯




    当下,是神秘、是探索
    是永不满足于简单平淡
    是拒绝环境的一成不变
    是勇于表达的原创精神
    是回归理性的美式生活品味

    卧室





    当下,是静谧、是安详
    是记忆深处历久弥新的欢乐和笑靥
    是似水流年荡涤下沉淀的陶醉与满足






    我们的征途是星辰大海
    我们的归宿是孩子和家……
    在每一个孩子们安然入眠的夜
    甜美的梦乡映在墙上……
    衣橱步履轻盈
    床柜好似吟唱着一首摇篮曲……




    人生三分之一的生命就该“浪费”在床上
    整面墙的壁纸仿佛营造出一个布满蔷薇的庄园
    从定时生物钟睡到自然醒
    到了该起床的时候,伸伸懒腰
    美好的一天又开始了

    休闲区




    当下,是享受、是释放
    是三五成群放肆玩乐的洒脱
    是酣畅淋漓后偏居一隅的静想……





    • 来自 江苏省
    • 精华 222
    • 注册 2011-7-1
    • 行业 其它
    •  

    全部是别墅设计方案,大部分正在施工,




    • 来自 江苏省
    • 精华 222
    • 注册 2011-7-1
    • 行业 其它
    •  

    《假日里•漫生活》中建大观美式风格--------朱赟设计




    假日里•漫生活
                                                        ————朱赟设计     夏秋萍  撰文


    男主家是学工程的理工男
    想必许多0511的网友都曾经从他的装修日记帖子里获益良多
    没错,他就是鸟叔
    作为一个技术控,鸟叔在工程、技术方面功底相当深厚
    自然也对施工有很多自己的要求和想法
    鸟婶主要负责对于效果的追求
    也曾纠结着走过一段从地中海到北美洲的心路历程
    在鸟婶的精益求精下
    设计师最终交出了一份满意的答卷
    鸟巢也在千呼万唤中如约面世啦

    对于大部分人而言
    自由、放松、充满闲适感
    能够让心慢下来、让节奏慢下来的家才是心之所向
    而粗犷却又不失柔美
    复杂中带着简单的美式家居
    恰好提供了这样一个环境

    入户的天井选择了保留
    因为鸟叔坚信最好的景色都来源于造物的巧夺天工、自然的蓬勃生机
    于是堆了鹅卵石、立了花架、种了竹子、攀了爬山虎……
    移来的时日尚短
    各类草木还未葱葱
    但从枝叶上也能想象出全盛时的模样
    其后的岁月里
    天井的屋檐边落雨成帘
    光阴混进去
    这小草小木也就成了大写意大山河……
    浓似春云淡似烟
    至于落雪
    估计又是另一番景象了

    设计是一种感受、一种心态、一种舒适开心的生活方式
    人为的设计生活方式
    努力去创造一种更好的生活状态
    将设计融于人性
    将家居带入悠闲自在的情境

    鸟叔认为
    家装色彩不宜过多
    全屋宜3-4种颜色为主
    多了就显杂与花
    这点倒是与设计师不谋而合
    看来鸟叔在设计方面也有惊人的天赋
    鸟巢浅色系主要是白蜡木、米黄色
    深色系主要是胡桃色、灰色
    不需要天崩地裂的视觉震撼
    只求天长地久的宁静和沉淀
    正如鸟叔所评价:“简洁却不失沉稳,再带些小复古”

    一尘不染、素净澄明
    利用淡淡的家具布局把原本的空间净化
    把气质和品位含蓄地表现出来

    沙发背景简单却寓意深远
    麋鹿造型的墙饰一方面寓意着一种生生不息向上的生命力
    另一方面,鹿,同“禄”,有福禄腾达和家庭美满之寓意

    吊顶造型简洁,却有种由内而外的沉稳
    色调单纯,却有种不可描绘的绚丽
    不论是在天花板还是沙发背景墙
    透过简单的线板轻描
    就能产生美式古典的韵味
    搭配上复古的沙发、茶几
    呈现出优雅的古典风情
    产生多元的氛围效果
    再加上客厅的风格布局讲究对称且简单
    没有过多修饰
    还原它的本真美

    走过那么多路
    遇到过那么多人
    看过那么多风景
    你有没有想过
    这样的一部电话、一个花瓶、一本杂志……
    可以让你的故事更加动听



    电视背景墙是空间的亮点
    采用了文化石与壁炉元素
    文化石表现的是自然的清新
    壁炉表现出的是一种低调的优雅
    这种时尚与复古的结合
    将空间的文化韵味表现的淋漓尽致

    “熟”能生巧,亦能生情
    烹饪与美食也如此
    有别于客厅的沉稳大气
    粉蓝色的窗帘、女主人精心挑选的物件
    温馨的氛围混着咖啡的香气一起
    浸入五脏六腑、在唇齿间留香



    美式风的原木餐桌干练中不缺风情
    简单的一组装饰画巧妙的避免了墙面的空洞感

    恰到好处的生活
    是别样的精致
    在细水长流的感受与发现中
    惊艳了岁月

    拾级而上
    墙面的壁灯精致而显眼
    以形态喻圆满
    又仿佛能让人感受到时间的轮转、时代的过渡……

    它很厚重,给你踏实的感觉
    它很亲切,带着自然和温润的触感
    它很舒适,这是选择它们的第一要素
    虽不曾贴金描银,却依然给人雍容的大气之感
    这就是美式生活
    一种化繁为简,回归自然的生活方式
    一种在浓厚的怀旧情怀中,透出的骨子里的复古气息

    我可以想象到它们在未来岁月中涤荡出的熟糯温润
    素色墙壁与时光形成的绝妙调和感
    整个空间应当还伴生出一种清雅的气息来
    内里洁净、静谧
    同时又生机勃勃
    人在窗前
    看流云走、鸟飞去、光影徐动、清风缓来……

    设计师将主卧设计成套间
    别出心裁的打造了这样的一方休闲天地
    可以在午后
    享受一杯咖啡的慵懒时光
    翻阅杂志、体验惬意舒适的生活

    主卧的卫生间选择了干湿分离
    将盥洗区独立出来
    以台面的盆花装点空间
    仿佛心情也被点亮了起来……

    卧室无论是装饰还是实木床
    都寻求一种低调内敛的感觉
    却绝不降低它的品质
    卧床设计简约
    与整体空间色彩统一
    复古却又讲究

    不论是单人沙发还是床头抱枕的图案
    亦或是床头墙上显眼的世界地图
    就如同是这空间的眼
    将这间屋子主人的兴趣所向传达的淋漓尽致

    配置一张美式书桌
    在每个周末的下午
    一个人静静的
    品味文化和艺术的真谛……





    • 来自 江苏省
    • 精华 0
    • 注册 2016-12-25
    •  

    专为豪宅准备的一场活动吗?




    • 来自 江苏省
    • 精华 0
    • 注册 2017-5-15
    •  

    期待讲座
















    • 来自 江苏省
    • 精华 222
    • 注册 2011-7-1
    • 行业 其它
    •  

    水电工艺展示








































    • 来自 江苏省
    • 精华 222
    • 注册 2011-7-1
    • 行业 其它
    •  
    《木棉花》驸马山庄北欧风格------朱赟设计



    【小区名称】:驸马山庄帝豪苑
    【套内面积】:210平
    【房      
    型】:三室一厅一厨两卫
    【装修风格】:北欧
    【包工方式】:半包
    【装修总费用】:目前包含软装家电家具等一起60W左右
    宝石头家的装修日记直通车:

    望湖楼下水如天-湖景大平层的小白鼠装修日记
    http://bbs.my0511.com/f95b-t6135510z?highlight=



    木棉花的花语是指珍惜眼前幸福,生活可以留住我们的痕迹,时间也能留住我们的影子。
                                                                                                                           ——————题记(转载于0511)



    平面布置图




    客厅

    进门的玄关处,在门的版型上,宝石头选择了比较简单的造型,
    搭配跟客厅沙发相似的
    蓝色系软垫,鞋柜的用处就有了。
    高柜做了隔板,可以根据自己的需求,进行高低调节,
    放雨伞或者其他小物,很实用。

    透明的大阳台落地窗将户外景致框成空间的一幅画,
    在素雅的空间中带来活力与俏皮,

    增添空间的立体感与趣味性,藉由小细节提升巧思,

    让居家生活就像是沐浴在小步舞曲中,放松而愉悦。

    一目了然的舒适温馨空间,大块的地板增加了空间的通透性。
    米黄色的背景墙,烘托温馨的氛围。


    客厅的白色书柜很实用,兼具展示柜的功能,线条流畅。
    北欧特有的分子魔豆灯以玻璃球和精钢
    支架相结合,
    还可以随意调整多个光源,
    极富空间美的造型更增加的客厅的美感。


    电视背景墙原先准备用北欧的标配红砖文化墙,
    红砖是一种情怀,想一进门, 就有冲击眼球的美。
    但后来发现白色的硅藻泥更好打理,也能出造型,
    所以果断把客厅背景墙面做成了白色硅藻泥的款式。


    在原木北欧的世界里,看到想要的那个家的样子。
    它可以清爽,可以优雅,可以明快,可以古老。
    晒满阳光,充满希望。
    看似随意,却处处都是精心,

    看似漫不经心,却又处处都是精美细节。

    整组沙发是宝石头一眼就看中的,喜欢蓝色的大气和清爽,

    但因为客厅比较大,所以尺寸上还特意做了定制,
    没想到效果很出彩,即做了整个客厅淡色系的点缀,
    又与同色系的窗帘遥相对应。



    餐厅厨房

    大大的厨房与餐厅连接在一起,中间做了岛台。厨房的位置考虑更多的是整合空间,
    摒弃了传统的造型设计,更多的是考虑空间中
    的平面组合及构成。


    原木色的餐桌搭上特别简单的吊灯,绿色搭配原
    木色的椅子,灯则是宝石头一眼在某宝看中的,
    光圈照明,淡豆绿色很有些生机,也为整个灰白
    黑的餐厅增加了一些亮色。


    即使担心油烟的困扰,也抵挡不住对白色厨房的喜爱,
    白色的柜体清新典雅,简单小巧的把手细致精巧,
    其实白色才是最容易打理与出彩的颜色,很纯粹,
    经常清理中你才会保持厨房的常
    新。

    卧室

    卧室贴了碎花的墙纸,小女生的感觉,
    次卧衣柜和主卧的移门柜是背靠背的,
    在两个柜子中间,用隔音泡沫板进行了三层间隔

    另外拐角包含在了柜子里面,外面看上去更整洁一些,
    柜子里面做的是挂衣杆的设计,
    所见即所得,可以看到所有的衣物

    老人房的空间较大,总体色彩搭配明亮,简洁,柜体设计大气实用,
    飘窗的风格加入,提供了充足的储物空间。

    老人房的卫生间也是单纯干净的底色。
    大面积的素色系搭配白色的台盆,简洁清爽。


    次卧,
    很简洁的原木床,没有太多复杂繁琐的修饰,
    同样素色的窗帘和略加点缀的墙纸,
    就像一个温暖而甜蜜的棉花糖。


    客厅的卫生间做了干湿分离。还是北欧特有的大白色,
    瓷砖做了腰线分隔,使本身比较单
    调的空间层次分明起来。





    家是一铺床,一张沙发,一盏灯;
    家是一个布偶,一张照片,一个水杯;
    家是空间格局的安排,光影气氛的调协;
    家是人和人的关系,
    家是身体的归宿精神的寄托
    ......
    说到底,家是心之所安----------欧阳应霁




    • 来自 江苏省
    • 精华 222
    • 注册 2011-7-1
    • 行业 其它
    •  

    海量别墅作品六月十号碧玉园江州厅作品展示




    • 来自 江苏省
    • 精华 222
    • 注册 2011-7-1
    • 行业 其它
    •  

    《最美时光遇见你》景天花园美式风格------赵昕设计




    最美时光遇见你                                                  


                                                            ————赵昕 设计      夏秋萍 撰文                                                                                                                                                                                                                                                                                                             


    【案例风格】:美式风格
    【案例名称】:景天花园
    【案例地点】:江苏镇江
    【案例面积】:200平米


    美式风格是一种不羁、随意的形式
    摒弃过多的繁琐奢华,于不经意间成就一种另类休闲式的浪漫……
    乡村风格在美式中一直占有重要地位:造型简单、明快、实用
    在保留文化感和贵气感的基础上还不能缺乏自在感与情调感
    让家庭成为释放压力和解放心灵的净土……
    有温度的设计,让生活加温,暖到心田……
    设计师带着温度设计,从视觉到感官、从空白到丰满、从平淡到温暖……

    玄关


    周作人先生曾在《北京的茶食》中说过这样一段话:
    “我们于日用必需的东西之外,必须还有一点无用的游戏与享乐,生活才觉得有意思
    我们看夕阳、看秋河、看花、听雨、闻香
    喝不求解渴的酒,吃不求饱的点心,都是生活上必要的——虽然是无用的装点。”
    对于我们的屋子来说,亦是如此……


    设计师将主人对生活的追求和领悟融入到设计中
    精心挑选的一幅挂画,简单直白的凸显了“家”在主人心中的重要地位
    每当推门而入,跃动的色彩中暖意扑面而来,疲惫与繁杂在盎然生机中烟消云散……
    门厅


    温暖来自创意:
    将生活阳台与入室门厅相结合、入室缓冲
    逃离让人喘不过气的现实回到生活的美好总需要一个美丽的过渡
    将落地窗作为大自然和户内的一个天然桥梁
    将阳光引入室内
    墙身搭配时尚画作、造型精致的玄关柜上生机盎然的花艺饰品
    让过渡不再是简单的换装,而是心灵上得到释放……

    客厅


    温暖来自空间:
    功能性上,打破原有空间设计重新布局
    让感知远远大于数字本身颜色上
    灰蓝为主的基调
    不经意的加以挂画和绿植作为点缀
    这样的色彩搭配鲜明的突出大自然的清新
    让温馨主题中更添一抹娇柔








    温暖来自搭配:
    低调大气、简约而不简单、轻硬装重软装……
    简洁大方的线条、质感的涂料、灰蓝的主色调
    软装过程中,设计师加入了一抹清新的碎花点缀其间,为整个设计点睛
    不论是生机蓬勃的盆景,还是带有岁月沧桑的配饰这些“无用的装点”都为这个家注入了更多的温馨与美好
    客厅的主要元素——沙发,设计师重新演绎,复古且不乏精致
    通过花草表达颜色,又能将空间注入活力






    温暖来自文艺:
    墙上的画作十分抢眼
    无需出自大师之手,仅以表达业主和设计师心中那抹淡淡的文艺情怀
    生活和文艺循环,人本精神融入,在此安家,心有所属
    在每个人的时光里,即使在相通的时空下
    也依然会选择不同的生活方式,感受着不同的生命轨迹
    有人淋漓畅快,有人风生水起,也有人在如逝的时光中学会了守护和经营
    守护一份坦然,经营一抹情怀……





    一曲美式香颂
    一支自由之舞
    一抹岁月流光
    一眼霎那永恒



    温暖来自回忆:
    有些人因为得到才有些许的满足
    有些人却能因为些许的拥有就感知到生活的美好
    岁月就像一条长河
    左岸是无法忘却的回忆,右岸是值得把握的青春年华
    中间飞快流淌的,是年轻隐隐的感伤……
    岁月里,总有美好暗香浮动
    时光的角落里,那些曾经如约而至的惊喜
    会含着一份对未来的期许,陪你走过一个又一个的人生巷口……

    卧室




    温暖来自family(家):
    一片花朵见证一天生活的奇迹
    一片落叶诠释一生追求的完美归属
    米黄色的纯净让每个夜幕来临时都深感内心回归平静的坦然





    每天的睡去,是旅程的一个终站
    每天的醒来,是旅程的一个起点
    奔波来去的岁月,一站又一站的旅途
    自净其意,定了、静了、安了
    就是无虑而自得的生活

    书房


    温暖来自乐趣:
    有句话是这样说的:身体和心有一样一定要在路上
    身体在路上是走出去,心在路上是多读书
    这两样一旦都停下来,人就会感觉空虚
    而家此时就应该是放飞心情的乐土
    是一个让你捧着书本看一天都不会累的地方
    带着各种期盼,既平淡又忙碌的度过每一天……

    干区


    铁艺雕花镂空隔断自然地划分了功能区域
    也是设计中的一个亮眼之处
    昏黄灯光的渲染下,淡淡的文艺复古气息扑面而来……
    楼道



    拾级而下,墙上的照片让人有一种穿行于时光隧道中的错觉
    我们一起踏过的痕迹,并没有因为岁月的流逝而变淡,反而更加深厚……
    什么是幸福?
    前进时不害怕、回忆时不后悔
    前进道路上家人的相扶相持
    记忆长河里家人的相伴相依
    这就是幸福……
    厨房



    推开门,让清晨的微风缓缓吹来
    溢满整个空间
    换去室内闷热带来的烦躁
    仿佛能想象到主人在岛台上准备着早餐
    迎来美好的一天……
    餐厅





    生活像一本日记
    翻开就进入了
    这记录了兼容平凡与充实、恣情与放纵的空间
    我们总略带羡慕去感受这种生活态度
    于是情不自禁不遗余力去追寻……


    有家人的照片在角落
    有不舍得放弃的阳台小花园
    有开放的厨房绕着全家的笑声
    有明亮的浴室让人消除疲倦
    美式说的不只是一种风格
    其自在、温馨、随意、不羁的生活方式
    更是一种人生态度……





    • 来自 江苏省
    • 精华 0
    • 注册 2005-5-20
    • 行业 其它
    •  
    • 来自 江苏省
    • 精华 0
    • 注册 2017-5-26
    •  
    • 来自 江苏省
    • 精华 222
    • 注册 2011-7-1
    • 行业 其它
    •  
    • 来自 江苏省
    • 精华 222
    • 注册 2011-7-1
    • 行业 其它
    •  

    别墅设计作品展








    • 来自 江苏省
    • 精华 222
    • 注册 2011-7-1
    • 行业 其它
    •  
    《恋恋美宅》中南御锦城简美风格------周飞设计

    《恋恋美宅

                                                              摄影编辑:my0511小Z



                                          【小区名称】:中南大三期


                                          【套内面积】:130.65平

                                          【装修公司
    】:万家基和装饰

                                          【装修风格】:简美

                                          【设计师】:周飞
       
                                          【装修总费用】:目前包含软装家电家具等一起40W左右

    普京爸比家的装修日记直通车:

    因为老婆懒得写所以我来写——感谢环保建材商
    http://bbs.my0511.com/f95b-t5342179z-1-2



    将整个装修过程中的酸甜苦辣和大家一起分享,也算是给自己家装这段时间的辛苦一个交代。
                                                                                                                           ——————普京爸比(转载于0511)


    【设计师】:周飞




    平面图


    写在前面的话:

           话说普京爸比也算的上是家装版一网红,可是小编了解的普京更是一砍价高手,经常跟商家杀价,杀的商家头晕
    作为一名男士来说,各种家务普京也能一手操办,真正全能型。不过家装即使你再全能,总能遇到或多或少的烦恼,
    普京爸比家的漏水问题一直没能妥善解决,补漏这项工作一直是他不停进行的家装程序之一,所以小编也在这里提醒
    一下大家,装修一定要注意漏水,防水问题。





    客厅
    崇尚自由 . 随意. 不羁. 的生活方式.,没有太多造作的修饰与约束,
    不经意中也成就了另外一种休闲式的浪漫!


    利落的线条和清爽的色彩,搭配得当,会像天空一样给人带来喘息
    和放松的感觉。


    优雅、质感的皮质沙发给人以干净整洁的视觉感。

    餐厅选择做了圆形吊顶,而客厅则中规中矩的方形吊顶,两边用了一
    样的美式灯,一样用了淡蓝色的硅藻泥墙面,即色彩跳跃,又沉稳美丽。


    比起一般的简美,普京的家年轻时尚,在一些细节上,没有采用过于复杂
    的设计。沙发是方方正正的沙发,没有任何修饰,只是选择了做旧的皮质,
    小混搭一下。

    而另外一边的布艺的沙发则选择了时尚的咖啡格子的造型,淡色系使整体看
    上去没那么沉闷。

    色彩、线条、层次分明。三两抱枕,简约的沙发,茶几的芬芳花朵,舒适美妙。




    餐厅
    餐厅采用长方形餐桌来节约空间;侧面不光做了餐边柜用以收纳,还做了铁艺,把
    卫生间干区和餐厅分隔开来。

    从餐厅方向望过去,
    装修风格雅致,家具多古朴稳重的样式,更加适合简美的风格。

    没有繁复的装饰,让空间更通透。格局清晰。

    墙面跟客厅同样采取了淡蓝色的硅藻泥,黄色的小花点缀餐桌,生机勃勃。

    与餐桌对应的墙面上挂画更能体现美式风,美好的画面恰似吹来一阵清凉的风。

    厨房

    厨房宛如一个窗口,往外看去整体层次更好,视觉上也更显通透、澄澈。
    简洁的美式厨房,多色的墙砖和白色的橱柜很搭配。





    卧室

    主卧室采用了美式经典的床款,以粉色墙面为基础色,打造出卧
    室温馨甜蜜的感觉。


    而次卧儿童房则选用了绿色的墙面,三种颜色代表了三个不同的空
    间环境。白色的床具与衣柜相搭配,通过饰品来打造,提高了空间
    的灵活性。小朋友要长大,所以房间并没有做的太卡通,也可以作
    为次卧来住。

    榻榻米的房间是为了方便收纳,也为了老人来的时候方便居住,
    房间和书房都做了很特别的窗帘,碎花造型别致,优雅。


    书房
    书房正对窗户,阳光灿烂,做了定制的书桌和衣柜,即美观
    有效的利用了空间。


    地板选的是榆木仿古的地板,不会显得特别光,而且因为家里有
    个孩子,这种选择让地板的保养更简单一些。


    一杯咖啡,一本书,文艺青年的生活休闲与阳光同在。

    卫生间

    清新的墙地面砖加白色洗面柜显得干净整洁。

    干湿分离的主卫,干区墙面贴了跟厨房一样的彩格砖。
    一样的白
    色浴室柜,地面铺了粉色的小地垫加以点缀,
    也能起到吸水的功
    能。






    家是一铺床,一张沙发,一盏灯;
    家是一个布偶,一张照片,一个水杯;
    家是空间格局的安排,光影气氛的调协;
    家是人和人的关系,
    家是身体的归宿精神的寄托
    ......
    说到底,家是心之所安----------欧阳应霁




    • 来自 0
    • 精华 0
    • 注册 2017-5-18
    • 行业 广告媒体
    •  






    • 来自 江苏省
    • 精华 222
    • 注册 2011-7-1
    • 行业 其它
    •  

    恭喜莱特巴斯光学仪器办公楼开工大吉






















    [ 本帖最后由 万家基和客服 于 17-6-6 09:44 编辑 ]




    • 来自 江苏省
    • 精华 222
    • 注册 2011-7-1
    • 行业 其它
    •  
    工艺实景图












    • 来自 江苏省
    • 精华 222
    • 注册 2011-7-1
    • 行业 其它
    •  

    开工大吉




















    查看积分策略说明快速回复主题
    您目前还是游客,请 登录注册
    您目前是游客,本帖已被系统设置了自动关闭,不可回复!

    0/5000字

     
    < >
     

    Powered by Discuz! X 2 0.126048 s 清除 Cookies - 镇江网友之家 - 手机版
    论坛导航 关闭