收藏本站
客户端
扫码下载客户端
官方微信
打开微信扫一扫
登录
|
注册
|
标题
标题
用户
全站首页
|
论坛导航
|
网络问政
|
招聘求职
|
买房租房
|
装修频道
|
生活服务
|
教育
|
相亲
|
亲子
|
美食
|
婚嫁
|
手机客户端
家有学子
|
母婴乐园
梦溪论坛
»
镇江二手房/镇江租房
» 滨江 我家山水朝日苑独栋别墅426平院子1000平980万毛坯 五室及以上
镇江二手房/镇江租房
更新房源:
669
中介发布房产信息、疑问与建议请联系
13236380286
我的房源
我要卖房
我要出租
门面交易
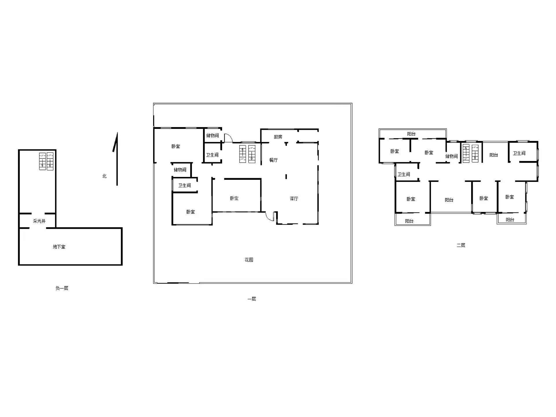
[二手房] 滨江 我家山水朝日苑独栋别墅426平院子1000平980万毛坯 五室及以上
短讯
980
万元
五室及以上
426 平方米
23005元/平米
户型
建筑面积
单价
别墅
毛胚房
滨江
楼层(共2层)
装修
区域
小区名称:
我家山水
小区地址:
我家山水朝日苑独栋别墅426平院子1000平980万毛坯
联系人:
丰华地产
请微信扫描右侧二维码拨打联系电话
房源信息
2026-1-23 18:50 发布
房源编号
更多房源微信号312114576
房屋性质
商品房
建筑结构
框架结构
所在楼层
1层
基础设施
煤气
独立车库
合用车库
公共车库
宽带网
家具
电话
液化气
有线电视
铝合金窗
铝合金阳台
阁楼
厨房
卫生间
物业管理
防盗门
院子
全明
其他说明
超大花园 毛坯 随时看房 江南中学和江滨实小
联系人
叶经理 (男)
联系电话
请微信扫下方二维码拨打
房源图片
周边地图
房价趋势
该中介的推荐房源
招商 我家山水 阳光世纪花园联排别墅中装南花园
189
万
174平方米
恒美 学府华庭 山泽园电梯顶复 79.8万 7房3卫 毛坯
79.8
万
204.82平方米
珑悦府 悦秀园 吾悦广场电梯三房双卫高装拎包入住
95.8
万
112平方米
急售75万水陆寺巷清爽装修两房朝南楼层好独立车库中山路学校旁
75
万
73.44平方米
招商北固湾 江山名洲 我家山水 阳光世纪下叠中装汽车库
196
万
179平方米
万达广场 华都名城 国信宜和电梯三房两厅拎包入住急售
78
万
113.56平方米
江山名洲 中南 聆江阁 宜嘉湖庭精装修三房双卫
79.9
万
132.17平方米
优山美地花园 精装修设全拎包入住阳光无遮挡带超大露台 急售
62
万
96平方米
我家山水瑞雪苑 电梯小高精装修不靠马路边无噪音适合养老居住
66.8
万
90平方米
悦秀园 珑悦府 吾悦广场 电梯三房精装修拎包入住
99.8
万
115平方米
Powered by
Discuz! X 2
0.014631 s
清除 Cookies
-
镇江网友之家
-
手机版
论坛导航
关闭