【房屋面积】:300平米
【装修公司】:波涛装饰
【设计师】:设计总监曹磊

【原始结构图纸】
负一楼原始结构图:

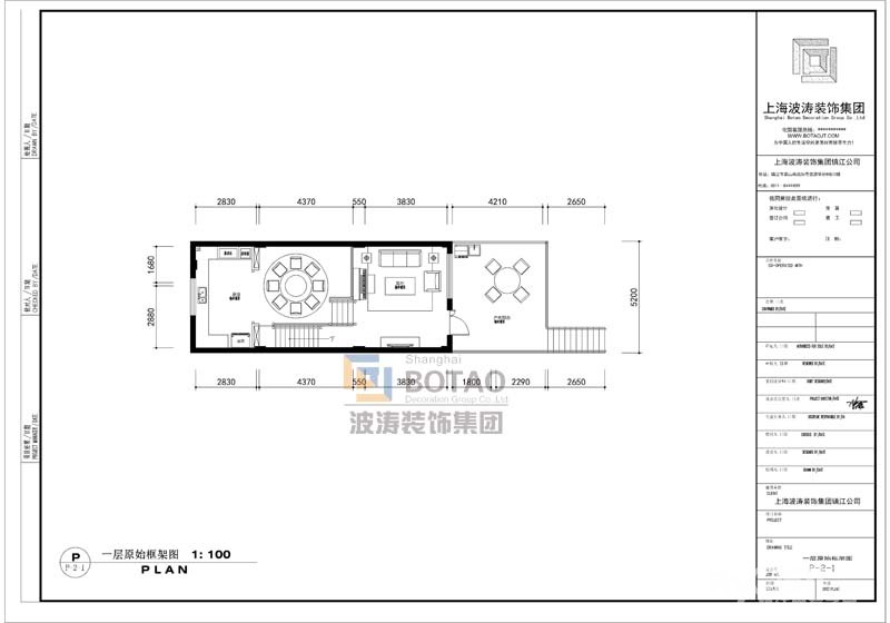
一楼原始结构图:

二楼原始结构图:

三楼原始结构图:


最新活动 http://bbs.my0511.com/f1083b-t7317518z-1#pid112370175
作品欣赏 http://bbs.my0511.com/f1083b-y499p
在建工地 http://bbs.my0511.com/f1083b-y497p
装修课堂 http://bbs.my0511.com/f1083b-y500p
[ 本帖最后由 波涛装饰 于 2020-3-18 17:04 编辑 ]

























