
作品案例1:
小区:亚东紫檀
设计师:邓宏业
户型:四室两厅两卫
作品风格:简约欧式
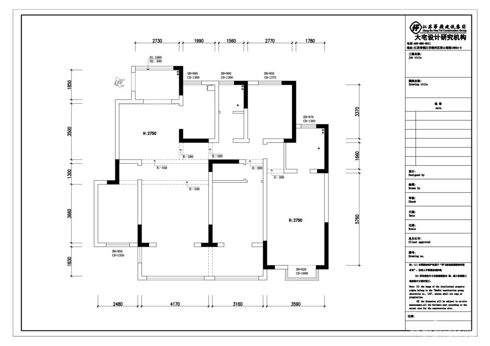
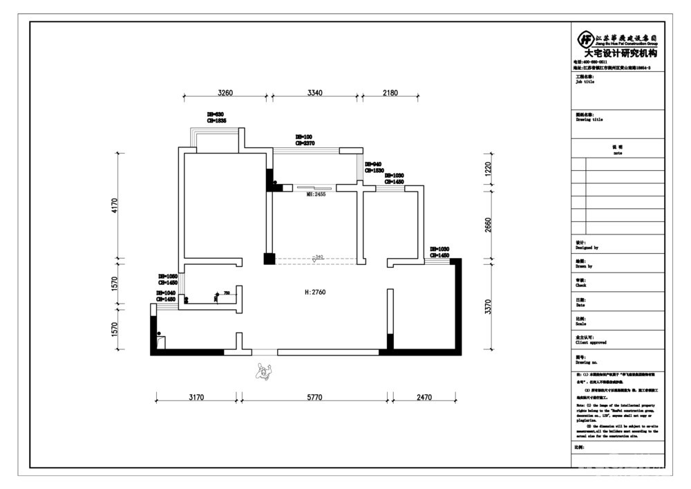
原始结构图:

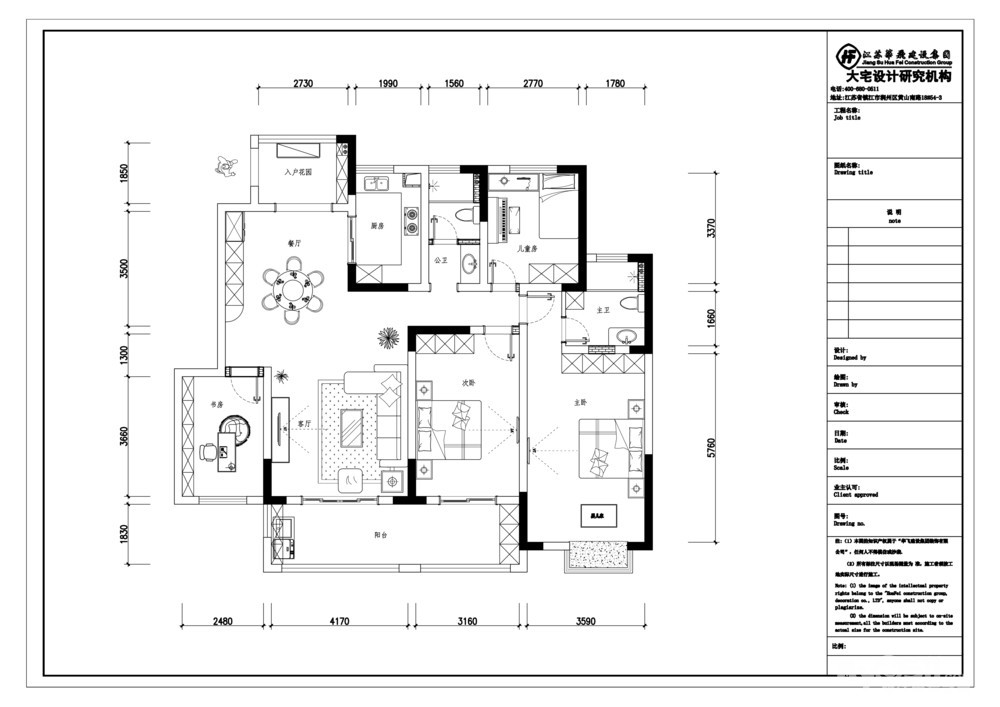
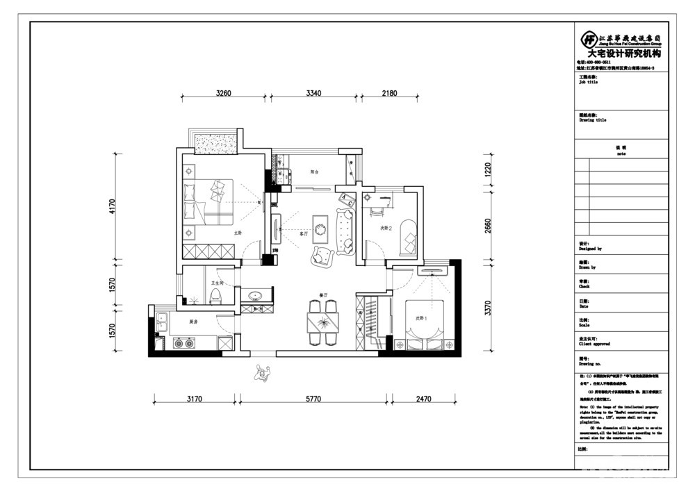
平面布置图

客厅效果图

门厅效果图

餐厅效果图

过道效果图

作品案例2:
小区:招商北固湾
设计师:邓宏业
户型:三室两厅两卫
作品风格:简美
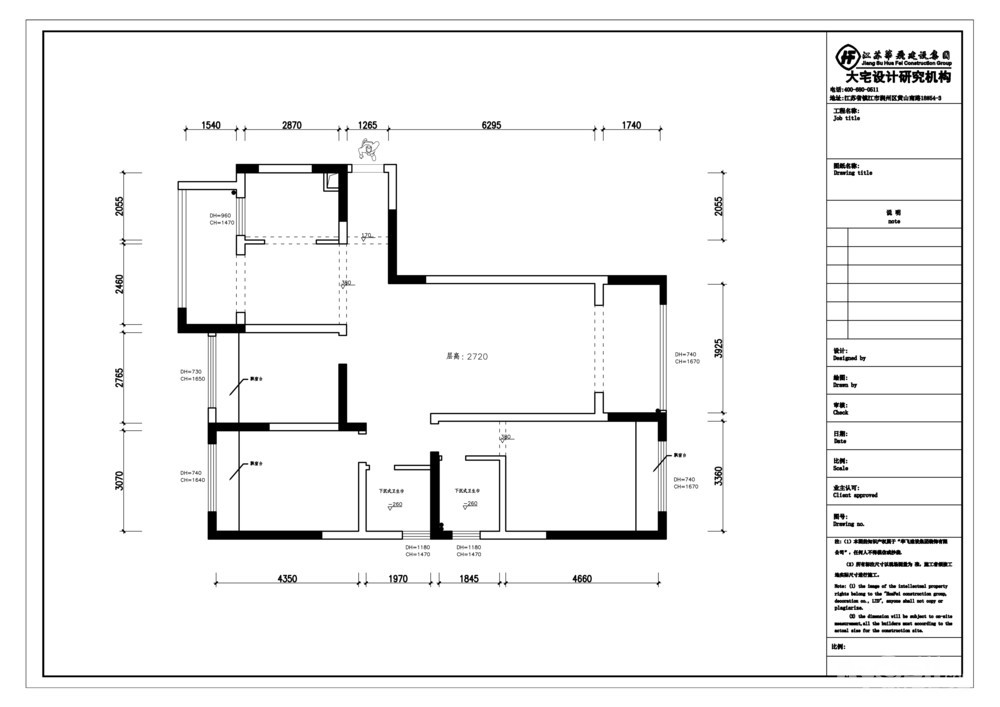
原始结构图

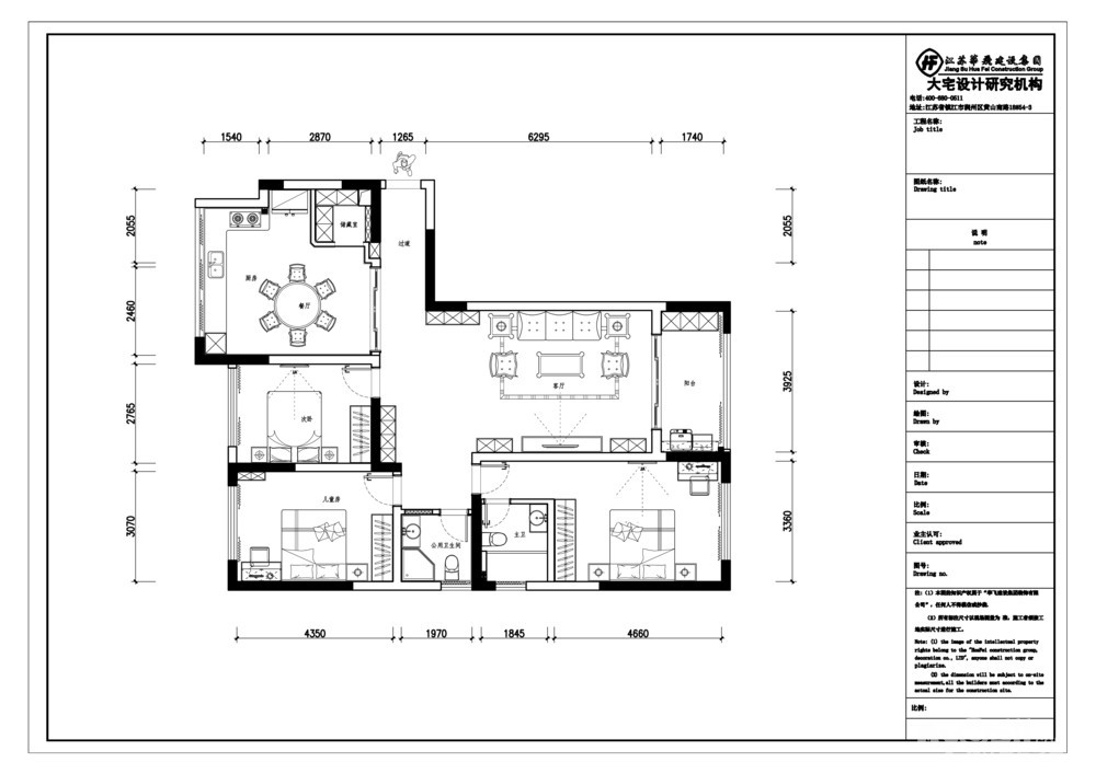
平面布置图

餐厅效果图

客厅效果图


作品案例3:
小区:九华山庄
设计师:邓宏业
作品风格:现代风格
原始结构图

平面布置图

餐厅效果图

客厅效果图

卧室效果图

[ 本帖最后由 华飞装饰客服 于 17-7-22 14:53 编辑 ]















