| 标题
快捷导航

精彩推荐:MY0511客户端下载

    • 中信银行镇江分行

    • 公益体彩 乐善人生

    • 鹏龙鸿蒙

    • 天然石材·人造石

    » 梦溪论坛 » 家庭装修 » 17年首期样板房直通车报名了 3月4日看工地涨姿势 多种风格样板间让你一次看个够
    家庭装修  >  [官方活动] 17年首期样板房直通车报名了 3月4日看工地涨姿势 多种风格样板间让你一次看个够     
    查看: 370222  回复: 34
    [官方活动] 17年首期样板房直通车报名了 3月4日看工地涨姿势 多种风格样板间让你一次看个够      查看: 370222  回复: 34
    • 来自 江苏省
    • 精华 6
    • 注册 2013-5-21
    • 行业 IT 通信
    •  
    17年首期样板房直通车报名了 3月4日看工地涨姿势 多种风格样板间让你一次看个够


    MY0511家装样板房直通车是为即将装修的童鞋打造的装修体验式活动
    零距离走进各小区正在装修或装修好的样板房
    从业资深人士在工地进行现场讲解设计/施工知识/答疑解惑
    如果您即将准备装修,赶快加入我们吧!



    活动时间:2017年3月4日(周六)下午
    集合地点:万达喜来登门口

    集合时间:3月4日13:00
    样板房提供单位:




    【点击图标了解装饰/设计公司详情】

    样板房地点及进度:
    华飞精品装饰: 美的城 [硬装完工]        香格里拉桃源
    [硬装完工]
    瑞阳装饰:
    中冶玉翠园[水电结束]     中南世纪城[整体完工]

    参观路线:
    万达——美的城——香格里拉——中南世纪城——中冶玉翠园——万达

    填写报名表报名(无筛选,报名即可参加):

    PS:报名后请耐心等待小编的电话哦,电话将于活动前2天拨打

    参加MY0511样板房直通车的好处
    【理由一】直击施工现场,了解施工工艺与装修过程
    【理由二】设计师、监理现场陪同讲解装修细节,解决装修疑问
    【理由三】网友之间互动交流,分享宝贵装修经验
    【理由四】公益活动全程免费,空调大巴风雨无阻
    【理由五】施工和完工样板一个不缺,感受装修多环节
    【理由六】设计师一对一解析您家户型,免费答疑解惑

    看样板房注意事项
    1.为了不耽误大家时间,请同学们尽量准时到集合地点集合
    2.有待装房平面图的朋友可带上图纸,方便设计师现场一对一解析
    3.受客观因素制约,每户仅限2个参与名额
    4.整个活动的时间不短,并且工地环境不太适合小孩子待,所以请大家尽量避免带上小孩
    5.活动过程中请参观的同学跟随设计师(监理)的讲解顺序看样板房,以便您更全面了解样板房施工工艺、工程造价和装修注意事项等
    6.设计师讲解完后可以提出您的疑问,可不要害羞~
    7.请大家配合保护好施工现场哦,因为这个也是别人的家


    有装饰公司/设计公司愿意提供样板房参观讲解的请咨询联系
    菲雪


    [ 本帖最后由 my0511菲雪 于 17-3-6 09:47 编辑 ]





                      
    • 来自 江苏省
    • 精华 6
    • 注册 2013-5-21
    • 行业 IT 通信
    •  

    华飞精品装饰样板房信息:

    样板房地址: 美的城5栋3204
    设计师:冯俊明
    风格:简欧
    面积:145M2
    承包方式:半包
    半包造价:5.7万
    施工进度:硬装完工
    平面图:

    效果图






    样板房地址:
    香格里拉桃源81#
    设计师:冯俊明
    风格:现代中式
    面积:650M2
    承包方式:半包
    半包造价:50万
    施工进度:硬装完工
    效果图











    [ 本帖最后由 my0511菲雪 于 17-2-21 09:25 编辑 ]




    • 来自 江苏省
    • 精华 6
    • 注册 2013-5-21
    • 行业 IT 通信
    •  

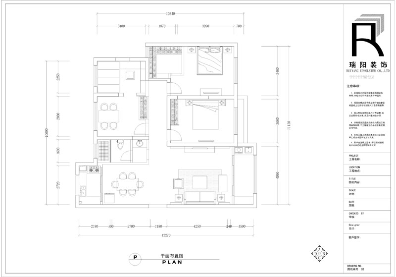
    瑞阳装饰样板房信息:

    样板房地址:中南大三期11栋
    设计师:童斌
    风格:中式
    面积:
    135平方
    承包方式:半包
    半包造价:6万
    施工进度:整体完工
    平面图:


    效果图







    样板房地址: 中冶玉翠园
    设计师:陈宏格
    风格:混搭
    面积:130平
    承包方式:半包
    半包造价:6.4万
    施工进度:水电阶段
    平面图:









    [ 本帖最后由 my0511菲雪 于 17-3-1 17:06 编辑 ]




    • 来自 江苏省
    • 精华 6
    • 注册 2013-5-21
    • 行业 IT 通信
    •  





























    如有其他装修咨询,建材砍价!请联系小编QQ:776280275或者微信


    [ 本帖最后由 my0511菲雪 于 17-2-21 09:34 编辑 ]




    • 来自 江苏省
    • 精华 2
    • 注册 2016-9-9
    • 行业 房产建筑
    •  

    顶一下




    • 来自 江苏省
    • 精华 0
    • 注册 2007-2-1
    • 行业 商业贸易
    •  
    • 来自 江苏省
    • 精华 6
    • 注册 2013-5-21
    • 行业 IT 通信
    •  


    QUOTE:
    原帖由 清本佳人 于 17-2-22 21:12 发表
    报名
    好的,请填写1楼报名表哦,方便小编短信通知




    • 来自 江苏省
    • 精华 8
    • 注册 2005-3-18
    • 行业 IT 通信
    • 资深食神 吃货达人 资深厨神 厨房高手 我是车主 家有萌狗 钓鱼达人 家有萌猫 小花农 晒家 我们爱旅行 功勋会员
    •  






    • 来自 江苏省
    • 精华 1
    • 注册 2013-11-7
    •  

    已报名




    • 来自 江苏省
    • 精华 14
    • 注册 2005-8-18
    •  

    2017样板房首发




    • 来自 江苏省
    • 精华 3
    • 注册 2017-2-6
    •  






    • 来自 江苏省
    • 精华 222
    • 注册 2016-11-15
    • 行业 广告媒体
    •  

    首发




    • 来自 江苏省
    • 精华 0
    • 注册 2017-2-19
    •  

    这个活动好!报名!




    • 来自 江苏省
    • 精华 0
    • 注册 2016-11-19
    •  

    只要报名了都能参加吗?




    • 来自 江苏省
    • 精华 0
    • 注册 2017-2-20
    •  

    报名




    • 来自 江苏省
    • 精华 6
    • 注册 2013-5-21
    • 行业 IT 通信
    •  


    QUOTE:
    原帖由 一九九二 于 17-2-25 07:36 发表
    这个活动好!报名!
    收到




    • 来自 江苏省
    • 精华 6
    • 注册 2013-5-21
    • 行业 IT 通信
    •  


    QUOTE:
    原帖由 弱水三千0 于 17-2-25 11:24 发表
    只要报名了都能参加吗?
    一定要填写报名表哦,不然小编没法联系到你




    • 来自 江苏省
    • 精华 0
    • 注册 2015-12-23
    • 行业 房产建筑
    •  

    好活动,支持下




    • 来自 江苏省
    • 精华 6
    • 注册 2013-5-21
    • 行业 IT 通信
    •  


    QUOTE:
    原帖由 云云爱萱萱 于 17-2-26 23:17 发表
    报名
    收到




    • 来自 江苏省
    • 精华 2
    • 注册 2016-12-14
    • 行业 房产建筑
    •  

    好活动支持




    • 来自 江苏省
    • 精华 0
    • 注册 2016-10-10
    •  

    :clapping::clapping::clapping::clapping::clapping::clapping::clapping::clapping::clapping::clapping:




    • 来自 江苏省
    • 精华 0
    • 注册 2011-6-8
    • 行业 其它
    •  

    二手房改造可以参观不?




    • 来自 江苏省
    • 精华 6
    • 注册 2013-5-21
    • 行业 IT 通信
    •  


    QUOTE:
    原帖由 3石悠魅 于 17-2-28 09:37 发表
    二手房改造可以参观不?
    可以呀,没问题的




    • 来自 江苏省
    • 精华 0
    • 注册 2017-2-28
    •  






    • 来自 江苏省
    • 精华 0
    • 注册 2006-4-2
    •  

    报名参加




    • 来自 江苏省
    • 精华 6
    • 注册 2013-5-21
    • 行业 IT 通信
    •  


    QUOTE:
    原帖由 clocktree 于 17-2-28 21:37 发表
    报名参加
    好的,收到




    • 来自 江苏省
    • 精华 0
    • 注册 2017-2-28
    •  






    • 来自 江苏省
    • 精华 0
    • 注册 2017-2-28
    •  

    这个不错,喜欢上面中南大三期的装修风格




    • 来自 江苏省
    • 精华 0
    • 注册 2007-2-1
    • 行业 商业贸易
    •  


    QUOTE:
    原帖由 my0511菲雪 于 17-3-1 09:04 发表


    好的,收到
    今天到2号了,没有接到电话是为什么啊?




    • 来自 江苏省
    • 精华 0
    • 注册 2017-2-7
    •  

    我也报了名,就等明天电话了




    • 来自 江苏省
    • 精华 0
    • 注册 2012-8-15
    • 行业 学生
    •  
    • 来自 江苏省
    • 精华 2
    • 注册 2007-3-29
    • 行业 其它
    •  

    我也报名了,还没接到电话




    • 来自 江苏省
    • 精华 0
    • 注册 2016-4-30
    •  

    报名13615281893




    查看积分策略说明快速回复主题
    您目前还是游客,请 登录注册
    您目前是游客,本帖已被系统设置了自动关闭,不可回复!

    0/5000字

     
    < >
     

    Powered by Discuz! X 2 0.092821 s 清除 Cookies - 镇江网友之家 - 手机版
    论坛导航 关闭