
此帖已成功报名2018家装日记大赛。更多家装信息关注MY0511家装频道
【小区名称】:路劲诺丁山
【所在楼层】:联排别墅
【建筑面积】:产证230平米
【装修风格】:简美
【包工方式】:半包
【装修公司】:TY34
【开工日期】:2017年8月8日
【装修预算】:150万
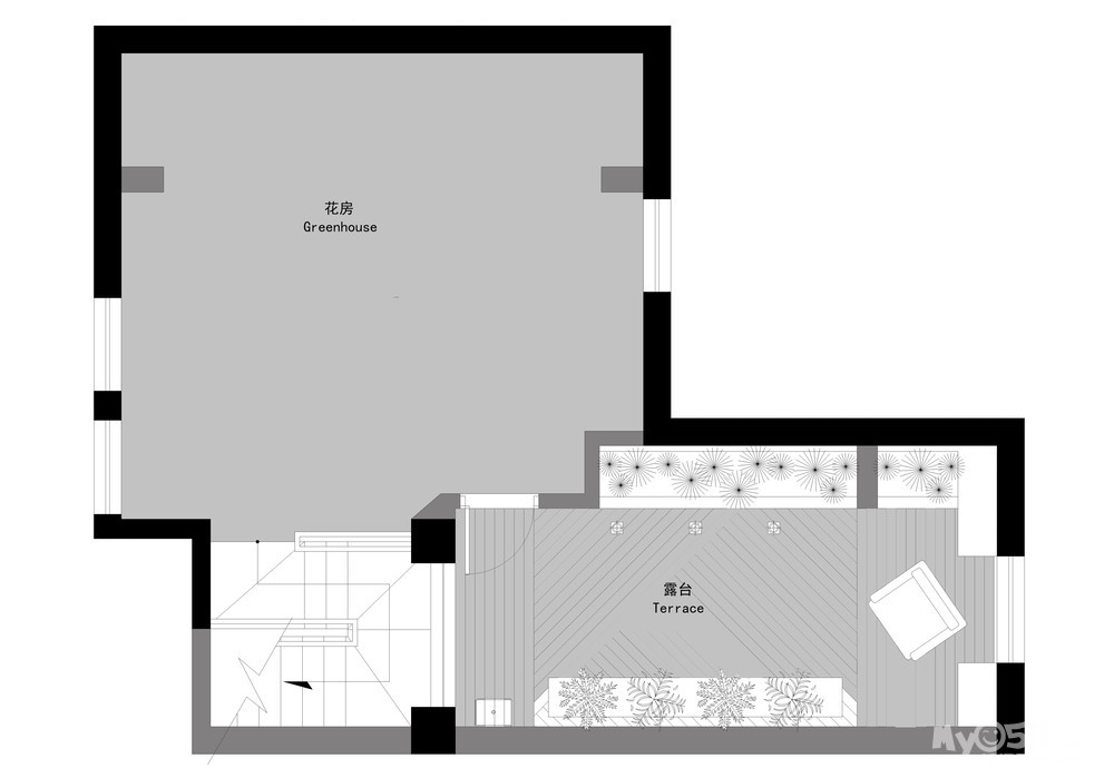
【户型图片】:
欢迎加入家装官方VIP别墅QQ群 群号:565444352
[ 本帖最后由 my0511菲雪 于 18-4-25 09:39 编辑 ]


我家的大事就是这样:由我负责作前期市场调研,形成详细报告,提交给男主人拍板,(报告内容要经得起男主人提问
),但凡男主人不拍板的议题我不会自作主张决定,但是只要我作了精心准备调研的,就一定会说服男主人拍板同意,只是要花的时间多一点。就像买房,我花了3年时间,选择设计公司我花了半年时间……但是最终经过时间检验,男主人的决定时机往往是最美丽的,完美!