| 标题
快捷导航

精彩推荐:MY0511客户端下载

    • 中信银行镇江分行

    • 公益体彩 乐善人生

    • 鹏龙鸿蒙

    • 天然石材·人造石

    » 梦溪论坛 » 家庭装修 » 6月2日和小编看工地学装修,全包vs半包,施工、报价、落地效果多方比较!
    家庭装修  >  [官方活动] 6月2日和小编看工地学装修,全包vs半包,施工、报价、落地效果多方比较!     
    查看: 409264  回复: 22
    [官方活动] 6月2日和小编看工地学装修,全包vs半包,施工、报价、落地效果多方比较!      查看: 409264  回复: 22
    • 来自 江苏省
    • 精华 9
    • 注册 2005-10-29
    • 晒家
    •  
    6月2日和小编看工地学装修,全包vs半包,施工、报价、落地效果多方比较!


    MY0511家装样板房直通车是为即将装修的童鞋打造的装修体验式活动
    零距离走进各小区正在装修或装修好的样板房
    从业资深人士在工地进行现场讲解设计/施工知识/答疑解惑
    如果您即将准备装修,赶快加入我们吧!




    活动时间:2019年6月2日(周日)下午
    集合地点:万达喜来登门口大巴集合

    集合时间:6月2日13:00
    样板房提供单位:


    【点击图标了解装饰/设计公司详情】

    样板房地点及进度:
    九天装饰:   
    江河汇[瓦工结束]       招商北固湾[整体完工]
    波涛装饰:   
    吾悦广场[水电施工]       孔雀城[整体完工]

    参观路线:
    万达——吾悦广场——孔雀城——招商北固湾——江河汇——万达

    搜索小妖微信号报名:775967213

    参加MY0511样板房直通车的好处
    【理由一】直击施工现场,了解施工工艺与装修过程
    【理由二】设计师、监理现场陪同讲解装修细节,解决装修疑问
    【理由三】网友之间互动交流,分享宝贵装修经验
    【理由四】公益活动全程免费,空调大巴风雨无阻
    【理由五】施工和完工样板一个不缺,感受装修多环节
    【理由六】设计师一对一解析您家户型,免费答疑解惑

    看样板房注意事项
    1.为了不耽误大家时间,请同学们尽量准时到集合地点集合
    2.有待装房平面图的朋友可带上图纸,方便设计师现场一对一解析
    3.受客观因素制约,每户仅限2个参与名额
    4.整个活动的时间不短,并且工地环境不太适合小孩子待,所以请大家尽量避免带上小孩
    5.活动过程中请参观的同学跟随设计师(监理)的讲解顺序看样板房,以便您更全面了解样板房施工工艺、工程造价和装修注意事项等
    6.设计师讲解完后可以提出您的疑问,可不要害羞~
    7.请大家配合保护好施工现场哦,因为这个也是别人的家


    [ 本帖最后由 0511值班客服 于 2019-6-1 08:57 编辑 ]





                      
    • 来自 江苏省
    • 精华 9
    • 注册 2005-10-29
    • 晒家
    •  

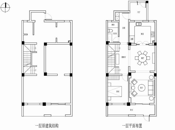
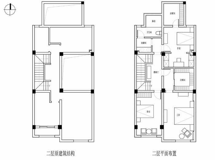
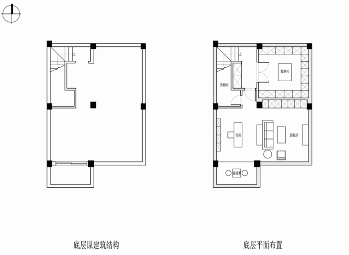
    九天装饰样板房信息:

    样板房地址:江河汇17幢设计师:任继耀
    风格:现代
    面积:150
    承包方式:全包
    承包造价:22万
    平面图:

    效果图:




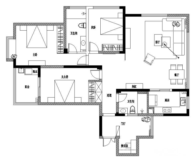
    样板房地址:招商北固湾二期29幢
    设计师:任继耀
    风格:现代美式
    面积:280㎡
    承包方式:半包
    承包造价:14.8万
    平面图:




    实景图微信扫码看:





    [ 本帖最后由 my0511小妖 于 2019-5-28 11:01 编辑 ]




    • 来自 江苏省
    • 精华 9
    • 注册 2005-10-29
    • 晒家
    •  

    波涛装饰样板房信息:

    样板房地址:吾悦广场
    施工阶段:水电施工
    设计师:许诺
    风格:现代轻奢
    面积:100平米
    承包方式:全包
    承包造价:15万








    样板房地址:孔雀城
    施工阶段:完工
    设计师:夏斯明
    风格:现代轻奢
    面积:90平米
    承包方式:全包
    承包造价:12万








    [ 本帖最后由 my0511小妖 于 2019-5-27 11:12 编辑 ]




    • 来自 江苏省
    • 精华 0
    • 注册 2013-12-17
    •  
    • 来自 江苏省
    • 精华 0
    • 注册 2018-9-23
    •  

    *** 作者因违反论坛规定,禁言处理,内容自动屏蔽 ***

    详情参阅论坛注册条款:
    http://bbs.my0511.com/f11b-t2789156z


    • 来自 江苏省
    • 精华 0
    • 注册 2007-3-20
    • 行业 房产建筑
    •  
    • 来自 北京
    • 精华 0
    • 注册 2018-12-12
    •  

    12万全包,真的能装出这样的效果吗?




    • 来自 江苏省
    • 精华 1
    • 注册 2002-10-9
    • 行业 IT 通信
    •  
    • 来自 江苏省
    • 精华 0
    • 注册 2012-9-4
    • 行业 工业制造
    •  

    我报名,表格怎么提交啊




    • 来自 江苏省
    • 精华 0
    • 注册 2018-4-24
    •  

    怎么报名?




    • 来自 江苏省
    • 精华 9
    • 注册 2005-10-29
    • 晒家
    •  


    QUOTE:
    原帖由 我是熊哥 于 2019-5-29 04:35 发表
    怎么报名?
    直接填一楼的表单哦




    • 来自 江苏省
    • 精华 9
    • 注册 2005-10-29
    • 晒家
    •  


    QUOTE:
    原帖由 93650000 于 2019-5-29 00:28 发表
    我报名,表格怎么提交啊
    重新填下呢,现在应该没问题了

    [ 本帖最后由 my0511小妖 于 2019-5-29 16:33 编辑 ]




    • 来自 江苏省
    • 精华 0
    • 注册 2014-11-25
    •  
    • 来自 江苏省
    • 精华 9
    • 注册 2005-10-29
    • 晒家
    •  


    QUOTE:
    原帖由 老虎不吃人1 于 2019-5-30 12:37 发表
    报个名
    收到,记得填个报名表哦~




    • 来自 江苏省
    • 精华 0
    • 注册 2014-8-14
    • 行业 商业贸易
    •  






    • 来自 江苏省
    • 精华 0
    • 注册 2014-5-17
    • 行业 商业贸易
    •  






    • 来自 江苏省
    • 精华 4
    • 注册 2008-3-15
    • 行业 广告媒体
    •  

    你们为什么要拆装饰公司的台




    • 来自 江苏省
    • 精华 0
    • 注册 2019-3-27
    •  
    • 来自 江苏省
    • 精华 5
    • 注册 2019-3-30
    • 行业 基础设施
    •  

    好活动




    • 来自 河北省
    • 精华 0
    • 注册 2011-1-25
    • 行业 房产建筑
    •  


    QUOTE:
    原帖由 小刘10208 于 2019-5-28 21:42 发表
    12万全包,真的能装出这样的效果吗?
    那是硬装,别想多了。




    • 来自 江苏省
    • 精华 0
    • 注册 2013-10-8
    •  

    报名




    • 来自 江苏省
    • 精华 0
    • 注册 2018-7-18
    •  

    装潢价钱是无上限的




    查看积分策略说明快速回复主题
    您目前还是游客,请 登录注册
    您目前是游客,本帖已被系统设置了自动关闭,不可回复!

    0/5000字

     
    < >
     

    Powered by Discuz! X 2 0.068937 s 清除 Cookies - 镇江网友之家 - 手机版
    论坛导航 关闭