明天自己家要开工了
在此我会给大家一些建议在文章最后我会给大家公布一些材料商的联系方式,保证各位能够拿到很好的价格,如果给的价格不满意可以联系我,我手机号18101365503,我来帮你谈
全程会直播自己家的工地
说实话,很多人可能觉得装修不要花钱,其实装修公司挣的是时间的钱,一个工地要做3个月,我家80平的房子,项目经理私下里请他吃个饭,因为我们公司很多项目经理是在编人员,不是外包的工程队,所以一户挣多少,是公司说的算,也就是劳动费了。
我先简单介绍一下用料吧
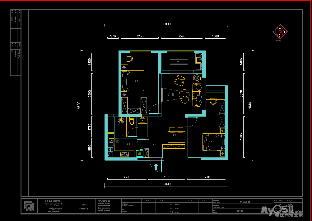
80平中南大三期(买了7年多了,当时五六千开盘期房的时候买的,一直是毛坯,现在涨到了1万2,翻了一番,我也很吃惊,不过意料之中,干了这么久的装修行业,万科和中南的房地产是正儿八经的靠谱,房子质量不错,房型正,纠纷少,装修中很少遇到房子本身的问题加大装修难度的)
总预算18万左右(拎包入住)
当然,我是在公司做的全包,老板和老板娘对我很关照,基本上一分钱不挣,如果我脸皮再厚一点,估计要老板和老板娘倒贴我了。

材料部分:
一.瓷砖:目前选择博德精工、客厅用800X800的砖铺,主要做现代风,家里明亮点。300X600或者600X900用于卫生间墙砖,当然马桶部分打算做一些造型,做一些造型砖来跳色
干湿分离很重要,所以洗脸台我打算是采用方格瓷片300X300来铺,年轻一点。目前效果图还没有出,但是不影响拆砌墙,后面效果图出来以后我会发到贴子里来,明天开工,我老爷子和老娘都会到场,我负责放礼花了。
二.地板:地板用康纳地板,工地的合作单位,论品牌可能很多人没听说过,我放心的一点是,合作厂家的服务还是不错的,两年内可以请他们免费上门维护一次地板。如果地板非人为的损坏,可以更换重铺,当然合作的材料商肯定不会让我丢面子就是了。
三.集成吊顶:公司合作品牌有三个:菲斯格勒、赛赫、友邦吊顶, 毋庸置疑选择友邦吊顶,当然我要是早点装修的话可以选择楚楚吊顶,不过楚楚吊顶相对而言贵了点,我不想在这方面继续加钱了,友邦吊顶的老板娘和我们老板娘关系不错,月星黄山东路店,我们两家门对门,沟通起来速度也快。
四:吊顶:不出意外我会用千年舟的木材,毕竟我哥就是千年舟的厂家,也是我们的合作商,一线品牌,不吹不黑,木材相关的衣柜橱柜地板吊顶等,木材都是用的他家的,我很放心。
五:踢脚线啥的我就不说了,这些都是小玩意,工人手艺好,这些材料都不需要重点花时间去选择
六:五金洁具:欧派贴牌的五金洁具,不出意外,我会py交易升级个智能马桶,这个只能马桶很重要,很多人得痔疮其实是因为卫生习惯,智能马桶洗干净后带烘干,会减少痔疮的概率
橱柜是欧派的橱柜了,石英石台面,台下盆工艺,我会花点钱做个蒸烤箱,因为家里厨房不大只能做蒸烤一体,如果条件好点的,可以单独做蒸箱和烤箱,功能分开效果会更好
软装这块还没想好
目前选择了几款家具
先发一张沙发的图,我个人喜欢功能型沙发,所以选择了功能型沙发行业大哥,芝华士头等舱

[ 本帖最后由 镇江宋仲基 于 2020-9-20 18:22 编辑 ]






































