项目地点:江苏 镇江
项目性质:私家叠墅
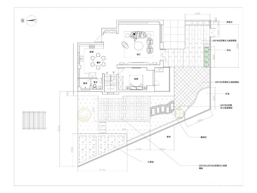
建筑面积:280㎡
设计团队:JFY Design 贾峰云研究室
主创设计:贾峰云
从事设计工作久了,总不免有一点理想主义情节,这种想法刚开始连我自己也鄙视。后来随着年龄与经历的增长,渐渐认识到佛教所说的“无常”表达的真正含义。
生命是无常的,作品也是无常的,没有所谓的永恒。也就没有了真正对抗理想的现实主义。理想成了可以给予自己的小确幸。成了生活的目标,成了生命的乐趣所在。
设计是工作,也是生活。画图是设计,选材料是设计,写文章也是。设计逃不开艺术,设计师不要把自己当艺术家就好。否则飘起来落不了地就麻烦了。

Δ客厅沙发背景
遇到这个项目现在看来也是比较久远的事了。业主好几年前就加了微信,曾经因为一套联排别墅咨询过我,只是不知何故没了下文。我没有跟踪客户的习惯,委托设计是双方自愿的事。不曾想几年后她带着几分兴奋约到我,说是前晚与先生散步到售楼处一眼看中即买了此房,一年后拿房。
为了给设计留足够的时间,当下即委托开始设计。房子尚未完工,无法实地测量。助理只能先测量同户型样板间,待到房屋建造结束再去现场复核尺寸。
此时才得知原先那套联排没装修,直接卖了。

Δ从餐厅看客厅
业主这几年来一直关注我们,对设计理念比较认同。沟通起来也顺利,我讲的她都能理解。方案阶段流畅,其实并没需要一年这么长的时间来调整完善方案。只是由于拿房尚久,不赶时间,内心安定许多。设计的很多细节可以在开工之前沟通清楚。
两个女儿都学习美术,姐姐现在美术学院求学,妹妹小学,画的也非常不错。妈妈其实也是有美术天赋的,只是动笔不多。所以家庭的艺术氛围颇为浓厚,而我们则认为生活的艺术应该是此空间的主题,仍然离不开烟火气。爸爸做企业,乐观豁达且幽默。此项目从设计到施工再到最终落地收官都充满了乐趣,后来每次去项目现场对接都像是去到朋友家串门。院子里鱼池砌好试水,工作室陈老师一早把钓的鱼送过去到鱼池里放养。有些工艺收口工人师傅没有做到要求的,和业主亲自上手DIY。这不是对工作负责什么的,而是一种参与实践的快乐。

Δ客厅到餐厅厨房透视
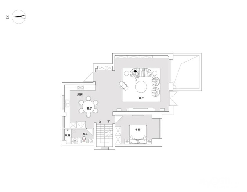
我们希望公共空间足够开放,将客厅的南边走廊纳入到室内,使原本就不小的客厅更加开阔。只是原走廊和客厅之间有道大梁,顶面无法直接贯通。我们做了一个被“切”掉一小块的大圆顶,没想到却成就了一处惊喜。倘若真的有条件做一个完整的圆形,倒不足为奇了。因为圆顶随处可见。

Δ客厅电视背景
空间的硬装软装色彩调和了中度的灰。橙色是欢乐的跳跃,宛如指尖的音符。
皮质的沙发宽大舒适,我们去慵懒的躺下就不想起来。地毯的名字叫香榭丽,家里每一件物品都是主人的喜爱。

Δ沙发局部

Δ电视背景局部
电视背景用的是老矿爵士白天然石材,我喜欢这种水墨流淌的感觉,经典又不失时尚感,也能增加空间的艺术氛围。

Δ餐厅厨房
开放的社交厨房有利于增进家人之间的交流,妈妈做饭孩子也可以帮忙,沙发上的爸爸也可以幽默几句。最好的艺术来自于生活中的柴米油盐。

Δ主卧
主卧定了深色的基调,原本硬包的背景后来改为板材,干练许多。
这样大胆的空间搭配得益于甲乙双方高级别的信任,落地后的效果可以消灭一切怀疑。

Δ主卧局部
软装家具与硬装的完美配合,让那种艺术之美深入骨髓,且暗藏微笑。化解了所有装修中的汗水。

Δ姐姐房间

Δ姐姐房间
姐姐房间的壁画为房间主人现场创作,虽然我们给予了一些指导,但小艺术家的才华跃然于墙上,为此恬淡优雅的私人空间抹上了一道彩虹。

Δ妹妹房间

Δ妹妹房间
妹妹房间清醒活泼,仿佛春天的田野,专为百灵鸟在这里歌唱。
房间其实不大,书桌的位置是“借”了隔壁大卫生间的一块。但我们仍然希望空间是绽放的,因为要让心灵自由飞翔。

Δ客房
客房是安静的,但也不失艺术的优雅。用浅灰壁布做床背景来调和空间的层次。

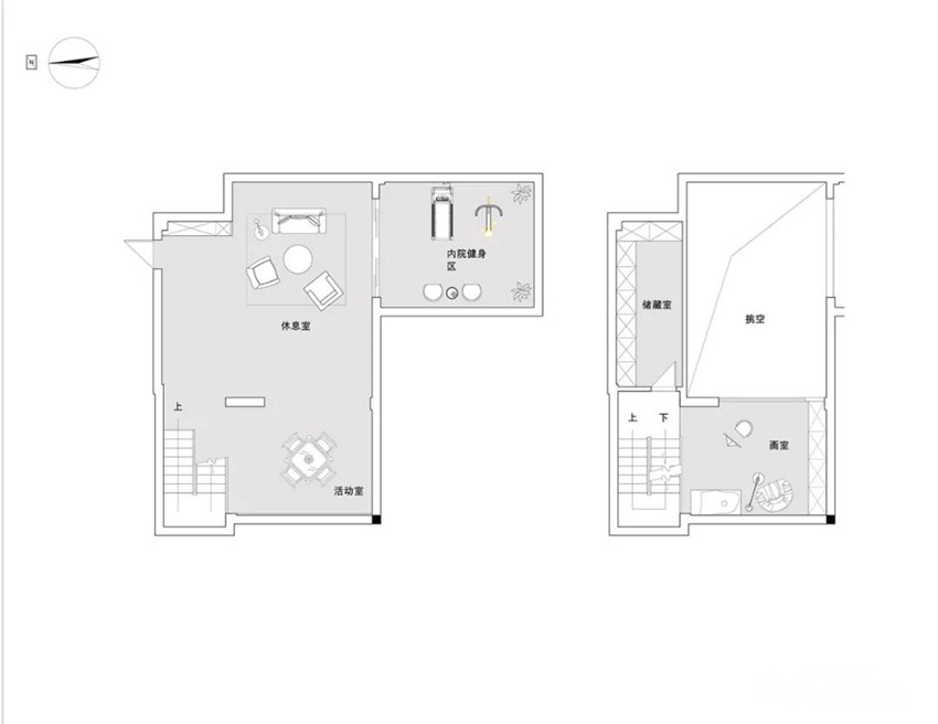
Δ画室
将挑高的地下室做了一半隔层,画室安放于此。可以招待画画的小朋友们,也可以独享一方安静。

Δ主卫

Δ次卫
每一个项目落地,就像是电影杀青。除了有如释重负的放松,更多是收获的喜悦。
无论对于国家还是行业还是企业、家庭、个人,今年都是极不寻常的一年。
“秋如画”也是我对大家的美好祝愿,但愿全球疫情往好的方向发展,大家的安全感快速上升。秋冬将至,岁月如歌,内心如画!
[ 本帖最后由 my0511唐老鸭 于 2020-10-19 13:37 编辑 ]


























