项目地址 | Project Address:正太 悠然居
项目面积 | Project Area:350㎡
项目名称 | Project Name:蜕变
设计师 | Designer:王蕾
设计公司 | Company:万家基和装饰
安藤忠雄说过,设计的一半依赖于思維;另一半则源自于存在与精神。
因此,设计往往反映着人们看待世界方式的转变,也如实地记录着人类社会形态和审美文化的更迁。
延伸感、灯光、材质、形态过渡层面都经过精心拿捏,增添其细节之处的魅力。
大范围的木质包裹,凝练出简朴温润的气息。

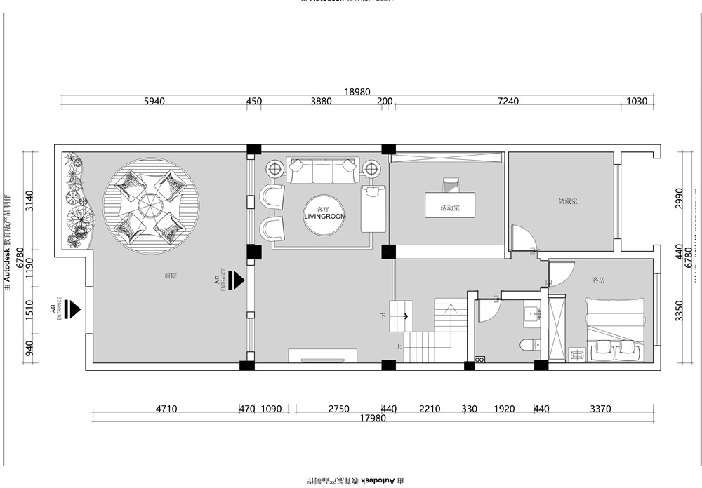
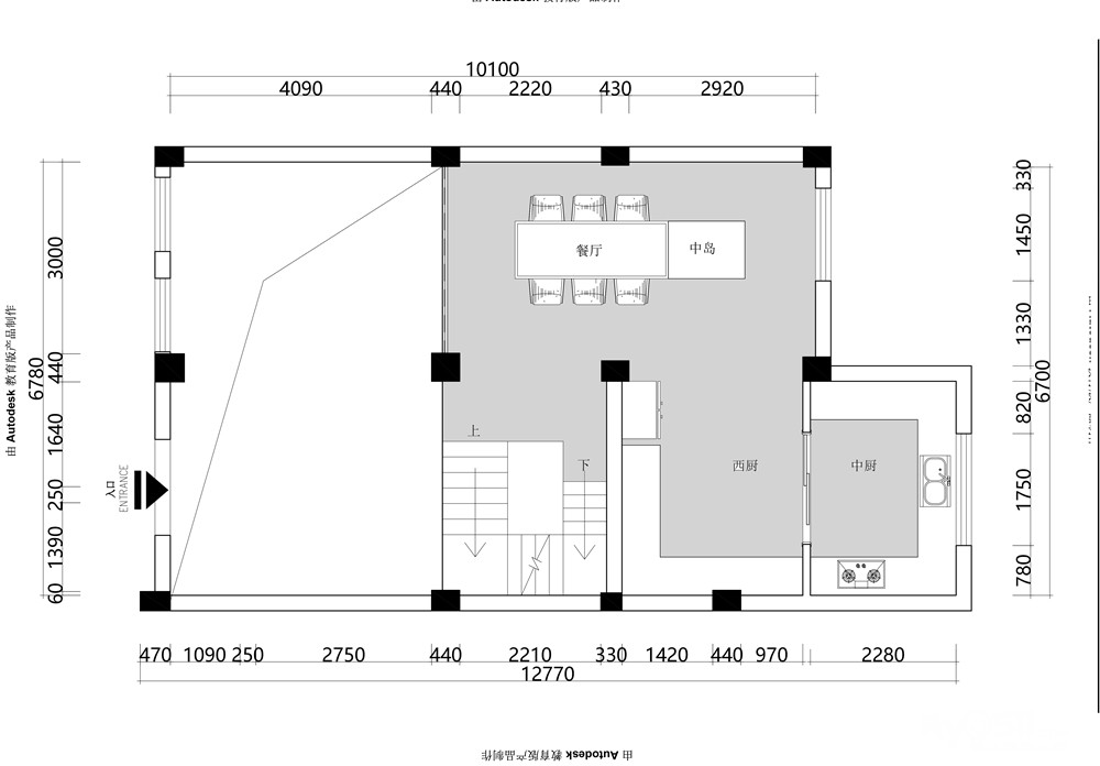
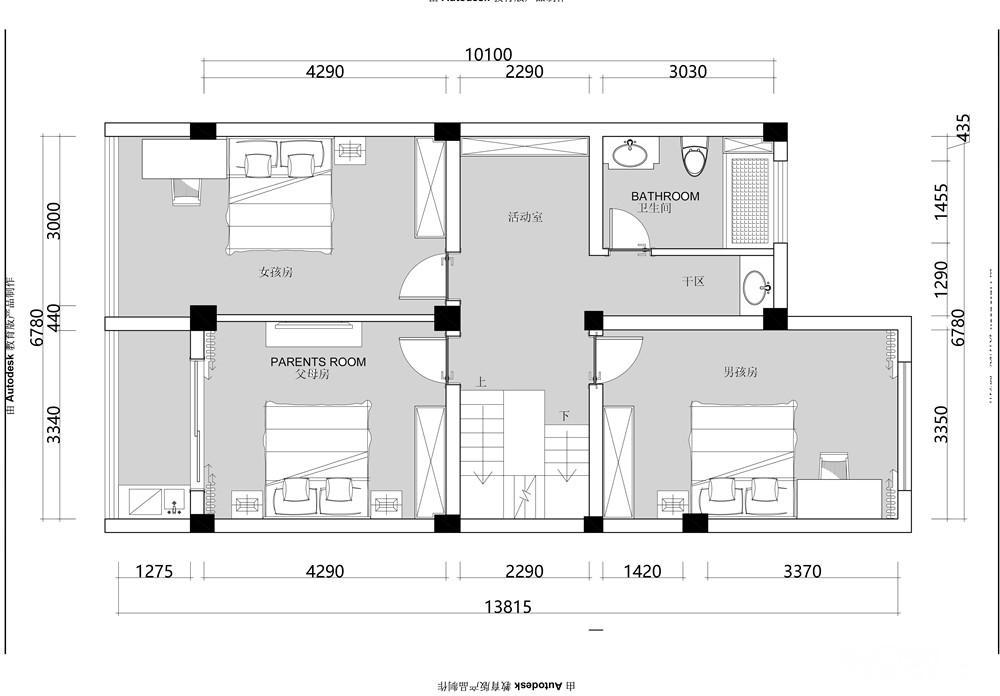
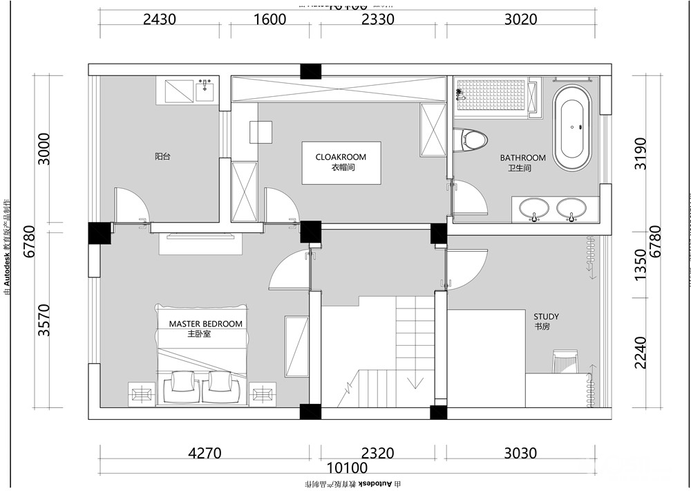
平面设计图




[ 本帖最后由 my0511唐老鸭 于 2020-7-16 16:38 编辑 ]
























大气
