“在建筑的墙体中,有的是侵入性的,有的是抵御性的。换言之,它们既可能是暴突的,也可能是拒绝的。”
——安藤忠雄



△ 创作手稿

室内设计是建筑空间的再次构建,在原建筑里面破局,重新思考出创作主题的意义。

这是一所艺术中心,展示的既非商品也非艺术品。而是我们对待建筑的思考。没错,这个思考的方式就是我们想要展示给观众的。


无论是生活还是工作,相对于当今社会,是应该融入还是逃离?是应该亲密还是对立?这似乎是二选一的命题。
但是,对于我们来说,其中存在着第三选择。
也就是说,应该既有机融入又适当逃离,既沟通对话又应该保持一定的独立性甚至对立的思考。也如安藤忠雄所言之侵入与防御并存。


这个虽是被用作商业的空间,我们却采取了遁世的美学构建。
把建筑作为生命体,尊重其独立的个性。在信息爆炸,随时被打扰的时代,使其具备隐士的风范,能够活出生命的精彩。



开放的空间,内景结构的转换,游步其中,身影婆娑。

适度打磨的清水混凝土与极其细腻的意大利涂料。看似对立,实则性格互补“相谈甚欢”。

格子的序列不仅体现在展柜,也体现在水泥砌块里。
我们需要这种重复的格子,用它来放大思考的维度。展柜不用来展示有形物品,而是展示其自身的精神气质。

水泥地是磨过的。先磨了两遍,不够细,于是又磨一遍,立即喊停,否则就太光亮了,过犹不及。


空间开放,又私密。开放在于没有真正封闭任何一个空间,私密在于每个空间都可隐藏于游走的视线之外。

引入自然光的方式来自对山林的思考。每个时刻太阳光之痕迹皆会明显变幻,影子游戏最适合独处时的消遣。
安静,则微微一笑。



展厅有时会播放爵士乐,我们喜欢那种年代感。
而有时则鸦雀无声。
偶然竟有小鸟飞入,栖息在钢铁制作的大提琴雕塑上。
叽叽喳喳,叽叽喳喳。

大白熊不用来吓唬鸟儿,它只展现优雅,给也喜欢遁世的你一丝鼓励,一点陪伴。

△ 创作手稿

我们认为设计是一种表达世界观的方式,用来思考建筑艺术在当下的体验。对世界永远充满好奇心是创作的源动力。

学会孤独,学会拒绝,学会思考,学会享受安静。
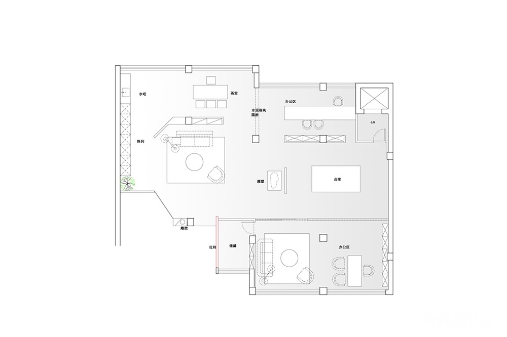
DESIGN PLAN
平面图

ABOUT THE PROJECT
项目信息
项目名称:遁世而居 | JFYD艺术中心
项目地点:江苏 镇江
项目面积:200㎡
设计主创:贾峰云
完工时间:2021年3月
如果您喜欢我们的作品
请联系我们

更多详情及完工案例:
[ 本帖最后由 my0511唐老鸭 于 2021-6-29 13:41 编辑 ]







接近自然,朴实






