
本案的屋主是一位90后的男业主和他的爱人,属于婚房,这是他们的二人世界。
❐ 设计解析 | Design Analysis
认识这个“家”To know this house
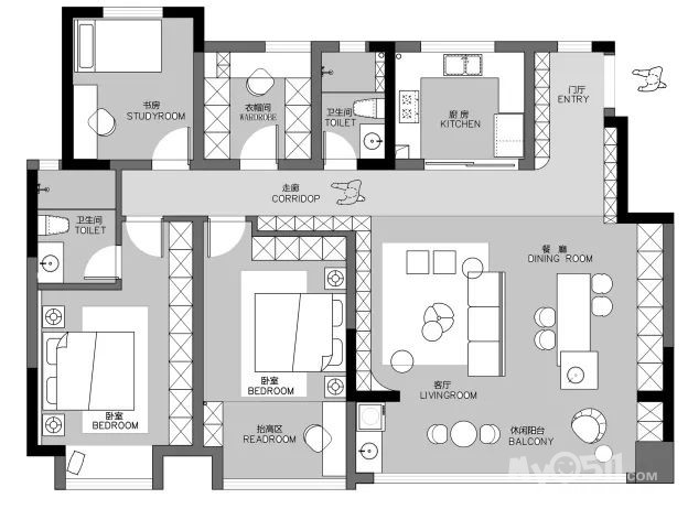
❐ 户型图 | Layout

◎原始结构图


◎平面方案
❐ 项目信息 | Project Information
项目地址 | Address:雅居乐新乐府
项目面积 | Area:140m2
完工时间 | Time:2022.05
设计单位 | Design:风尚大宅装饰
施工单位 | Construct:风尚大宅装饰
设计风格 | Style:现代简约
01客厅空间
LIVING ROOM
灯光采用无主灯设计,磁吸轨道灯加线性灯的配置来搭配哑白色的乳胶漆与单边弧形吊顶,
既保证了空间的明亮感,又增加了空间的层次感和质感。






02餐厅空间
RESTAURANT SPACE




03厨房空间
KITCHEN SPACE

04过道空间
AISLE SPACE
电视墙侧面在设计中通过将原始的墙面内凹30公分,
局部镂空的设计从视觉上增加过道的纵深,增加过的舒适度与延展性。


地面选用釉面600*1200的地砖,设计中通过灰色与白色的分侧来划分休闲区和过道区域,也让划分区域更加的明确。

05阳台空间
BALCONY SPACE

06卫生间
BATHROOM AREA

07卧室空间
BEDROOM SPACE



08衣帽间
CLOAKROOM

装修是一个枯燥、漫长又值得期待的过程,
最重要的决定是选择一个放心的设计师。
END

▲长按关注微信公众号▲

▲长按添加微信客服▲
抖音APP账号 | 镇江风尚大宅装饰
my0511账号 | 镇江风尚大宅装饰
Add:镇江市京口区汝山路沃得雅苑26栋101室(沿商铺街)
更多风尚大宅案例请点击:
[ 本帖最后由 my0511唐老鸭 于 2022-7-27 09:22 编辑 ]











