【小区名称】:雍和雅苑
【建筑面积】:159平方--上叠
【装修风格】:现代简约
【包工方式】:全包
【装修公司】:圣都家装
【装修设计】:贺慧勇(老贺)
【项目经理】:胡经理
【开工日期】:2021年12月11日(开工仪式)
网上户型图:

网上效果图:


雍和雅苑为改善型楼盘,对于我这种既需要环境品质也需要足够空间的三代人同住的家庭来说符合需求。
拿房时间为:2021年12月8日,进入小区之后,顿时觉得小区的品质、环境、设计感都很不错,下面是拍的照片和大家分享一下:






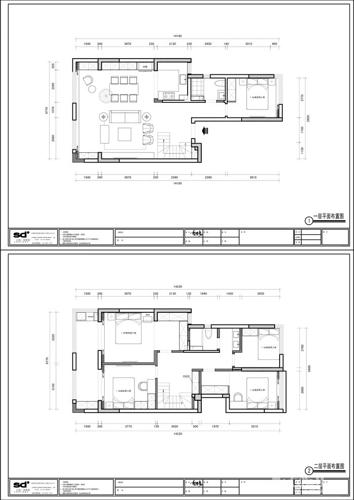
以下是圣都家装设计师老贺做的设计图:

12月11日,老贺给我们找了一个黄道吉日走了开工仪式,还没正式开工。验房时发现一些空鼓的等小问题等房修那边处理好了,装修公司就进场正式开工啦~~~


开工大吉啦啦啦啦~~~~
[ 本帖最后由 apple0907 于 2022-8-5 10:34 编辑 ]









,毛估估预计在60多个平方,,,主要还是人口多呀~~~
































今天就暂时先到这了,,后面的进展我会继续跟大家同步一下的。
