【小区名称】:京口时光雅苑
【所在楼栋】:Three
【建筑面积】:130
【装修风格】:奶油风
【包工方式】:半包
【装修公司】:番茄在家-原创设计工作室
【开工日期】:2023年4月10日
【装修预算】:No budget
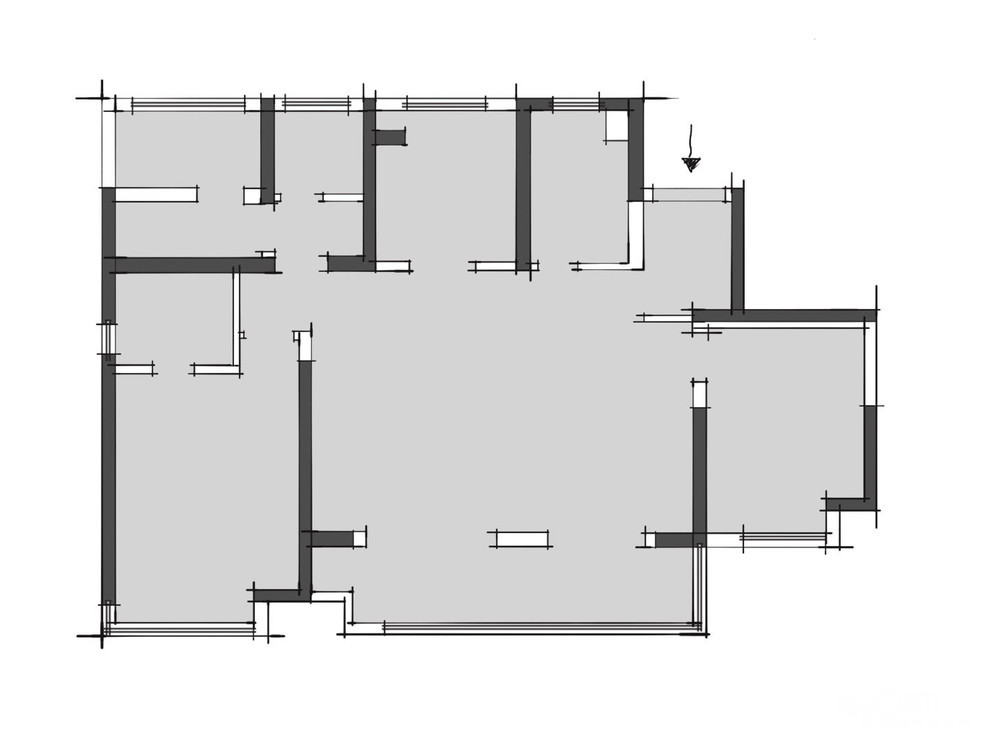
【户型图片】:

万千生活的缩影,一切都始于喜欢,止于平静
摄影和设计都只是媒介
真正想表达的是
对世界万物的看法
与你对生活的态度
——————————————————vvvvvvvvvvvvvvvvvvvvvvvvvvvvvvvvvvvvvvv———————————————
序章
家是我寄托安全感的地方
一个房子,一个家
确实是我对安全感的一种寄托的方式
不知道人为什么会有那么多害怕
神说怕是爱的反面
可我确实还没有找到那种终极爱的答案
只能承认自己的缺失
承认一盏不灭的灯可以弥补缺角
所以这个房子,这个家
她圆满了我另一种靠近爱的渴望

-2020年的秋天,不冷不热的天气,刚从上海拍摄结束返程的高铁上,望着那呼啸而过的风景,思绪万千。工作性质有的时候要往返很多地方进行拍摄,包括很多全国各地连锁品牌产品的拍摄。往往却忽略了对另一半的关心。一日两人三餐四季,是我所渴望的生活。于是在21年的年底买了位于焦山路上的京口时光雅苑。
第一章:选择一种家居风格,也是选择一种生活方式
-我对家的定义是,家不但是生活的容器,它可以有都市感,人情味和怀旧情怀。我很喜欢《向往的生活》里的一句话,家的意义,是许多第一次的总和。正因如此。关于家的设计风格上,我和我夫人也开始了我们第一次的做功课。和大多数人一样,我和我夫人对于我们想表达的东西还是很清楚的,不过只是头脑中的浮影。既然有的大概的思路,那么就着手干吧。
第二章:初遇-番茄
-我是一个很喜欢跑微博和论坛的人,当然0511作为镇江这边的百姓论坛,自然也成为了我学习的地方。装修身边朋友都说十个装修九个坑,还有一个最坑。论坛里有不少装修公司的窗口也有不少博主们写的装修日记,闲暇时就打开来看一下做做笔记。首先半包全包的区别,公司与项目经理和合作方式(承包制和合同管理制),还有装修公司的问区分,广东公司/本土公司/全国连锁公司/设计师的个人工作室。为了搞清楚这几种的区别,大大小小也跑了3-4家,根据网友的推荐和贴吧里筛选出来的结果,怎么说呢,营销化的介绍实在没有必要。也许对于我们这一代人,更加注重的是一种舒适感,和体验感。我把这几家公司分为A(本土公司)B(广东公司)C(全国连锁公司)。
-首先我们先去了论坛里排名比较靠前的A公司,那天记得上午,我和我老婆刚好买完东西顺带着先去了解了一下,毕竟房子一直迟迟没拿到,想说先去看下公司了解一下,成天在网上浏览偶尔也要实际考察下。本土公司的给我的感觉是,设计师对工艺的理解还是挺高的,能帮助业主解决前期大量的疑问,但是对公司的文化底蕴宣扬有点过度。设计出来的东西较迎合市场所需要的。
-B公司是朋友介绍的。说设计还是可以的。于是乎我们在第二个星期休息的时候就约好时间马不停蹄的赶了过去。前台小姐姐很热情的接待了我们在安排我们入座后,顺带着和我们讲解了一下后面安排的设计师老师的案例和经历。有种神秘的高级感。设计老师来了后和我们说了一下他对房屋设计的看法,和对风格的理解,有些观点还是比较认同的。但是太过阐述自己的观点,使得有些方面我觉得有点华而不实。而且整体费用较高。所以在沟通了一小时后,我们也短暂的结束了这次会话。
-C公司是自己打电话给我的,再去看了之后觉得有点不太适合我们,从进门开始就和我介绍产品优势,套餐,价格有多性价比,从头到尾没谈过对户型的理解甚至没问过我们的需求等等,所以溜了一圈我们也就离开了。
-装修可能一辈子就那为数不多的1-2次,所以我认为最好的装修就是把喜欢的一切放进你的房子,不为悦人只为悦己。品质的生活不可以打折,装修亦是如此。这是我的理解。
一次偶然的机会,我老婆的闺蜜是开烘焙店的。听说我们家准备装修,于是推荐了一个微信给我。说是工作室性质的。叫番茄在家原创设计,因为名字比较有趣,所以很容易记住,随后加了微信。前期因为工作原因一直没回镇江,所以大部分时间都是微信沟通的。他们首先拉了个群,将设计师和我们拉了一个讨论组。设计师姓钱(我都是喊他球友,这个后续会说道)从开始询问了我们的设计需求后,从房屋开始分析,针对原始户型的优劣点,分1.2.3点总结了下,并且以参考图片形式的样子,让我们觉得家里适合什么和不适合什么,不完全以风格来定义整个家居,更多的采纳我们喜欢什么元素和色彩的软装和家具(后来问他解释说风格只是片面的,很多客户对风格的定义首先是模糊的,因为一个风格衍生下来的风格千变万化,所以风格并不是绝对的,自己喜欢才是真的)。
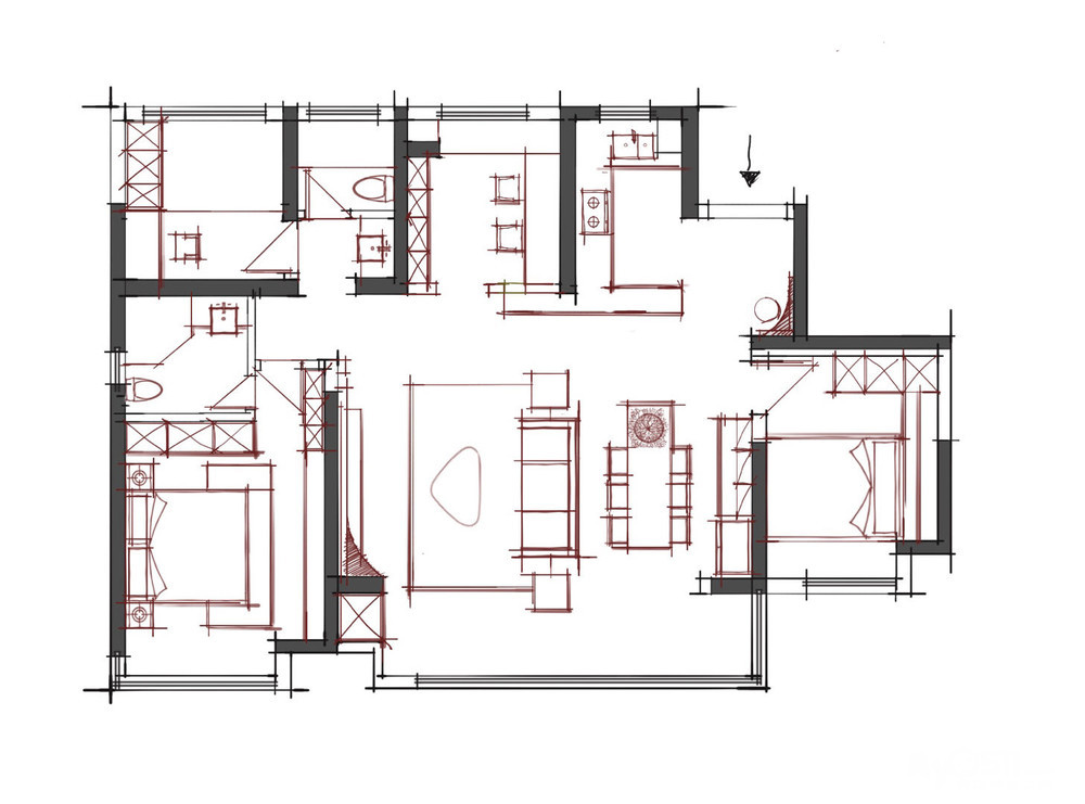
-之后约了时间去房子里看了下之后又去他们的工作室看了下谈了下。工作室整体环境是以奶油风为主基调。软装运用的很到位,很多软装的东西都是他们自己制作的。玻璃砖茶几/油画(也是自己画的)还有一个爬满蔷薇的小院子,我们从早上聊到的下午,除了装修之外,我们还聊到了篮球和球鞋,我们都是球鞋的发烧友。聊了一半,重新回到主题上,把方案看了下。总共做了4-5个方案。方案设计不仅仅只是平面上的,更多的是在沟通平面的时候已经把立面后期呈现的效果也想好了。这种体验感是第一次。有疑问的点,钱老师也能当场随时用手绘板调整好。


-电视背景墙的暂定手绘稿
-因为对于我来说,客厅包括进门这块纠结了很久,因为我觉得这一块做好是一个亮点,做不好就是一个很糟糕的地方,最终我们选定了一个方案,设计既然没问题,那么下面我比较关注的就是施工方面的问题。于是在第二次见面谈报价的时候,我提出了我的观点。钱老师以预算对应着方案一项项和我解释了每个区域的每一项的花费。并且对应什么样的工艺去制作,
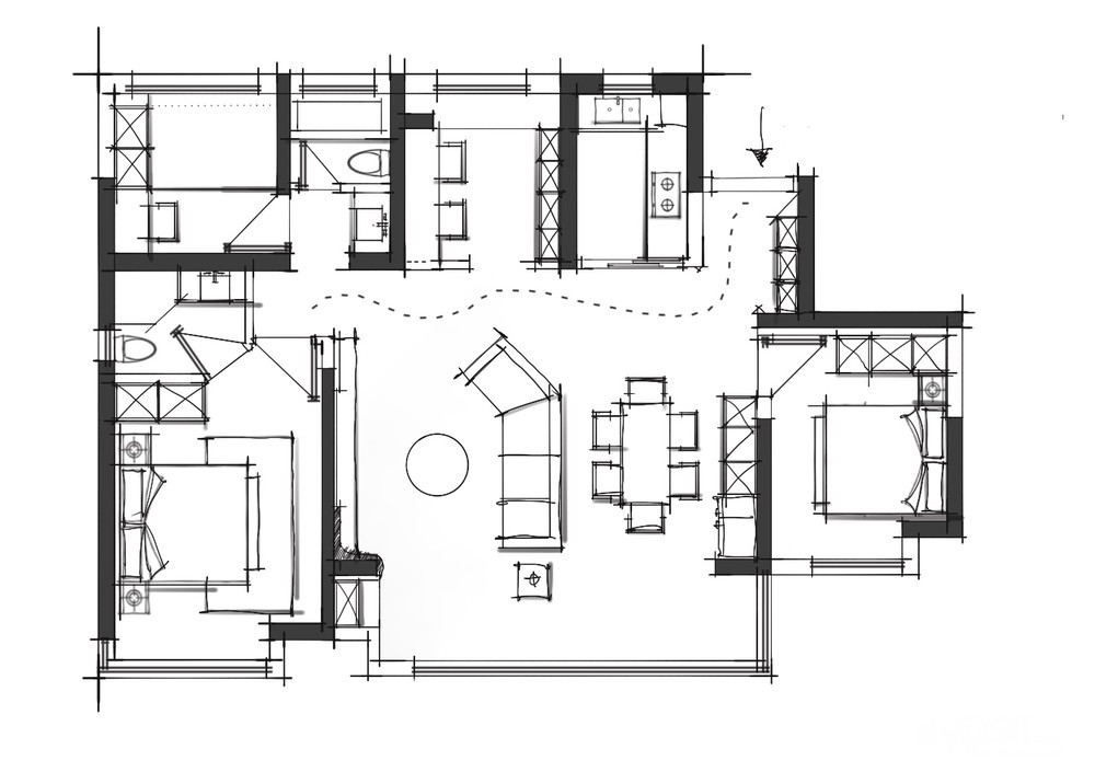
从材料聊到工艺。从工艺聊到设计的可操作性。我也是个直爽的人,别人说没用,我觉得你靠谱才行。于是第二次我们就顺利的达成了合作的意向。并且把设计的理念和喜欢的元素一并的沟通了。后面就是等待效果图的呈现了。-前期沟通的工作准备的很充分,所以在沟通效果图的时候能有效的节省不少时间。简单的软装调试了下,就渲染了大图了。我老婆看了也很喜欢。废话不多说,上图


[ 本帖最后由 my0511小妖 于 2023-5-22 15:18 编辑 ]



















作为小红书和论坛贴吧的资深潜水员,理论知识虽然比不上专业的,但是讲出来的话还是很有道理的,因为之前微信沟通了几个,所以目标也比较明确,就是想实地的看一下材质和了解一下品牌工艺。门窗作为室内外保护的第一道程序,这块我还是比较注重的,当然身边也有人推荐本的的厂,价格虽然便宜,但是我没打算选择,我主要就以红星美凯龙和和青年广场这边为主要考虑。前期的准备工作做得比较充分,所以窗户上没太耽误太长时间,价格谈的差不多,后来也就定了旭辉楼下的帕斯沃系统门窗,定了单体窗,隔音隔热都会好些,因为家里楼层较高,金刚网一体的窗户会不怎么适合我们,容易积水。虽然很多门窗店都和我说不会,但是我还是比较坚定自己的想法,



















们已经装修装麻木了,日记都成了流水账。




































