项目地址 | Project Address:中南聆江阁
项目面积 | Project Area:123㎡
项目名称 | Project Name:发轫
设计师 | Designer:张婷婷设计
设计施工单位 | Company:万家基和装饰

做当下生活方式适配的设计
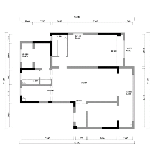
本案是中南聆江阁123㎡三室两厅两卫的户型,在前期与业主进行沟通的时候,得知他的需求是小夫妻两人居住,不需要那么多的房间,希望设计师在后续的方案深化中,在保留实用性外尽量扩大室内空间,实现空间舒适与实用为一体。
▲将原始入户的朝南房间扩展为客厅空间,这样就拥有了一个超大横厅,右手边做了一组多功能收纳柜。同时,把冰箱融入到了多功能收纳柜里面,做内嵌式冰箱,与柜子融为一体,既美化视觉感受,又满足业主想要扩大厨房操作空间的愿望。
▲原始户型的厨房比较小,为了实现业主想要增加空间感,设计师利用原始的餐厅空间与厨房空间相结合,做餐厨一体的开放式厨房,同时餐厅位置利用洗手池干区的隔墙增加了一组餐岛一体桌,也让整个餐厨区域看起来既休闲又实用和美观。
▲主卧原始的空间就比较大,为了保证整体使用起来更舒适流畅,设计师将卧室门平行右移,不但扩大了卫生间的室内空间,也避免了卧室门与卫生间门对冲,空间利用也更加合理实用,也让客餐厅的背景墙看起来更加完整美观。


将原始入户的朝南房间实墙打开
在入户位置用长条玻璃进行遮挡
增加通透感的同时又不影响采光
在通透与半通透之间
给予足够的归家仪式感
客厅与南向房间完全打通重置
拥有大横厅的同时又增加空间利用
洗衣区、收纳柜内嵌冰箱的自由组合
使得功能分区既美化视觉感受又灵动多变


圆润的承重柱连接洗衣区与生活区
搭配无主灯的高低落差的棱角吊顶
给人一种刚柔并存之美感
带来极致的舒适与视觉享受
墙面木材的的肌理背景
描绘出自然细腻之笔
一坐一盏
让人不自觉放慢脚步
坐下聆听和独坐冥想



开放式厨房的空间留白设计
做到了实用性和观赏性相结合
利用洗手池的隔墙增加了餐岛一体桌
在材质选择上与厨房背景墙隔相呼应
给家营造出更多自由和休闲的时光
洗手台台面采用了岛台同款纹理砖
同中有异,异中有同
让情绪在空间中得到想象和延伸


洗手池干区加入玻璃砖、花纹台面
在保持风格统一的同时增加层次感
在丝滑的柔美中增添一丝俏皮
仿佛是对自己认真生活的夸奖
将近两米通铺带感应灯的无框镜
将卫生间的通透明亮展示得一览无遗
墙地一体砖大板吊顶化繁为简
在纷乱的生活中
独享此刻的宁静


衣帽间高矮柜搭配细分收纳区
素灰色玻璃柜门更显内敛沉稳
开放式衣帽间、梳妆台
干练中透出一丝慵懒气息

主卧床头下口延续了木饰面的肌理
背景墙中自带可调接灯光
从清晨到日落 日暮到日出
轻松拥有不被打扰的睡眠时光

身心被包裹在柔光中
一觉睡到自然醒
徜徉在温暖的阳光中

家是温馨的港湾,情绪的树洞,设计要与当下生活方式适配,从人的根本需求出发,引领健康的生活方式。
EDITOR:赵燕娇

更多万家基和案例请点击:

公司地址:学府路66-208号万家基和装饰公司(学府路大润发旁中国银行楼上)
咨询热线:0511-88985388

[ 本帖最后由 my0511菲雪 于 2024-7-10 08:59 编辑 ]







