
◆ 项目地址:江河汇
◆ 项目面积:135㎡
◆ 设 计 师:金奂
◆ 设计机构:造物空间
◆ 施工单位:造物施工
业主需求
2021年夏天,一对年轻夫妻委托我们来设计他们的新家,
从女业主提供的客户需求表中,可以看出来
这是他们的改善型住房,关于这套房子的设计,主要是给老人,孩子创造一些在一起的美好时光,在设计这块尽量在满足动线、功能的基础上,尽可能少拆砌墙体,最大化的做一些储物空间,让视线所及尽可能的千净整洁,空间尽可能的开放,尽量多营造一些生活互动氛围感,可以大家尽可能处在一个空问内,在公区共处。
项目情况:
1. 屋主希望储物空间最大化,家里有俩个宝宝,尽可能的做一些收纳整理
2. 预算把控这块比较紧凑,尽可能的在满足需求的情况下稍作拆改
3. 喜欢现代简约暖暖的感觉,可以接受混搭风
4. 注重三代人间的这种互动感,且休息时间要做到彼此不打扰
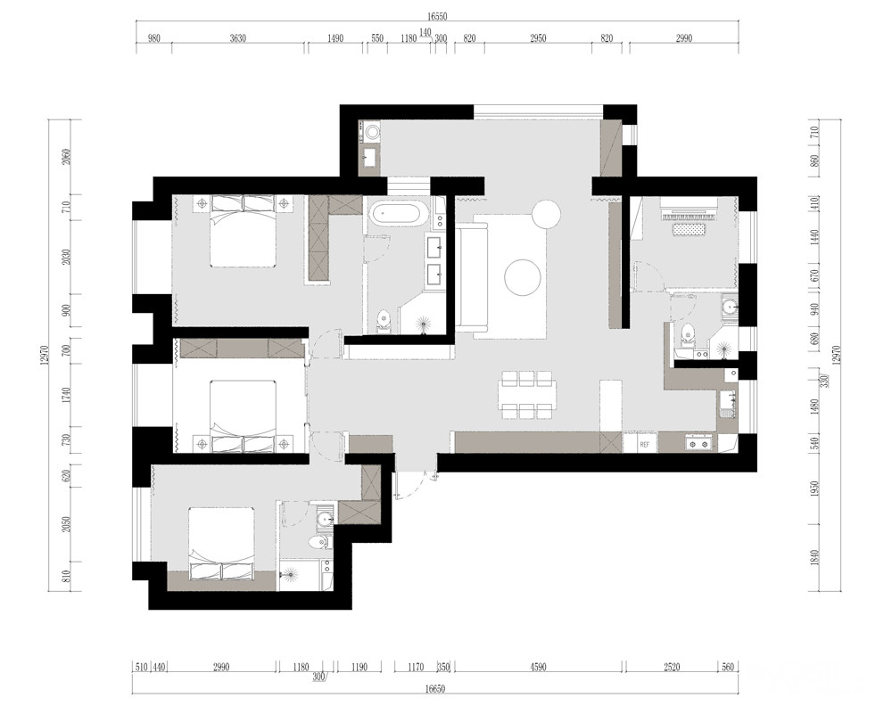
户型图

原始平面图
原始结构整体感觉还是可以的,结构上没有做过多的拆砌,主要在功能视觉上做了一些细微的调整,使得最大化

平面布局图
设计亮点:
1. 厨房进行开放式处理,在餐厨这里做了半高墙设计,做到空间划分的同时,增加了储物和厨房的操作空问。
2. 入户做了高柜与边柜的结合,在满足收纳的同时可以有足够的空间去进行一些简单的操作,与厨房在视觉上造型上达到统一,做了LDK设计。
客厅

整个客厅以温暖的奶咖色和具有温度感的黑胡桃木来呈现,加以极具包容性的大白墙沙发背景,同时在灰界空间内点缀了比较跳跃的棕色螃蟹椅,整个空间不会显的太单调,营造出舒适的居家氛国感。


外置储物柜和隐藏式储物柜结合组成整个电视墙设计,整个视觉上简洁大方,加入了一些开放格的展示架格子,让正面电视墙更加丰富美观。
野囗勇 Noguch 茶几#电视柜#螃蟹椅

白色打底的背景,少许黑色点缀,白墙不能算是个性出挑的背景墙,但又是一种极具包容性的选择,沙发整体造型简约大气,灰色更显高级和质感,简约而不简单

一盏灯,一把椅,配以多变色的月球灯,尽显慵懒与惬意!

皮质沙发、钢化茶几、布艺地毯……材质多样化的运用让材料之问的层次更加丰富,刚与柔,光与暗,虛与实,轻与重的对比更加清晰,利用差异化极大的充实了视觉感受,体会不同质感带来的多重体验。
沙发#茶几#绿植#落地灯

家不只是一个可触碰的物理空问,更是一种感觉的延续。利用色彩把控室内空间,伴随着对室内光影、维度、明暗的考量,营造出一个温馨舒适、独立个性的家居空间。

#沙发一角


角落里得落地灯温馨美观,享受极度舒适的独处,整个空间变得缓慢柔软,播放喜欢的音乐,享受每个细节

螃蟹椅特写
厨房
通透的客餐区融合了日式的LDK 设计文化,进行了开放式的处理,打破了传统的空间区隔,放的空问的同时还能深化家人之问的互动及沟通。空间布局的巧妙之处在于我们弱化了墙体的存在【零食柜收纳墙】,空间不设限,没有明确的划分,不用靠墙而立,穿梭之间多了几分自在和随性。

餐厅

1.餐厨间的吧台设计,做到空间划分的同时,增加了
储物和厨房的操作台空间,吧台的设计增加了互动
感,年轻人在厨房做饭,老人和小孩在餐桌上手办看书都是很不错的。
2.早餐都可以在吧台上解决的,体验感相当不错,这块空间属于厨房吧台的浪漫角落。
3.餐边柜中间的开放格可以摆放屋主日常使用的纸、茶杯以及喜爱的手办收藏。
4. 色调上延续厨房公区温暖的奶咖色及具有温度感的胡桃木色。

餐椅选用了莫兰迪色绿,灰度空间增加了一丝跳
色,整个空间尽显温馨,不会显的太单调。

小景#岩板餐桌
卧室

主卧空间没有太多复杂的装饰与鲜艳的色彩,延伸
公区的色调,整体效果力求简约有质感,纯粹的设计让空间回归极简的本质。
床头背景做了储物柜设计,灯带的嵌入增加了层次感,满足不同需求的光照明度。
卫生间

卫生间的双盆洗漱台能够满足俩人同时使用的需求,为了让卫生间在视觉上更统一,设计师采用了
与墙砖相接近的仿石材柜体板,从色彩上延续空间的整体性,诠释着轻奢的都市风格格调。



如果您喜欢我们的作品
请联系我们

地址:北固湾3区4-302
电话:18651287389
微信:jinhuan7374
QQ:958654390
了解《造物设计工作室》点击:
http://bbs.my0511.com/f96b-t7492954z
[ 本帖最后由 my0511菲雪 于 2023-5-15 16:47 编辑 ]









