【所在楼层】:1层
【建筑面积】:194
【装修风格】:现代简约
【包工方式】:半包
【装修公司】:一八二零空间设计(丁设计师)
【开工日期】:2016年10月12日
【装修预算】:
欢迎加入家装官方VIP别墅群 群号:565444352
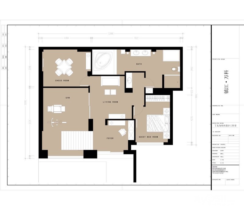
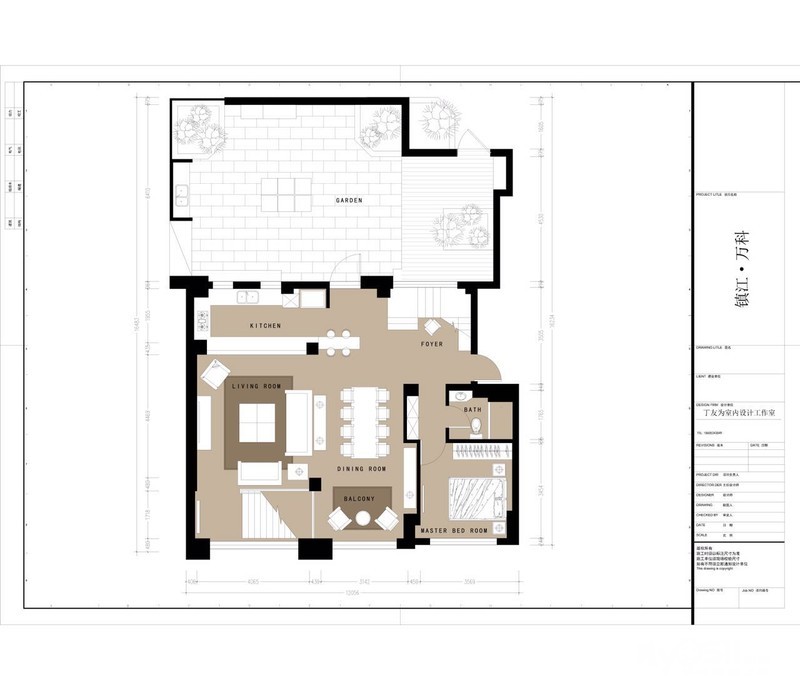
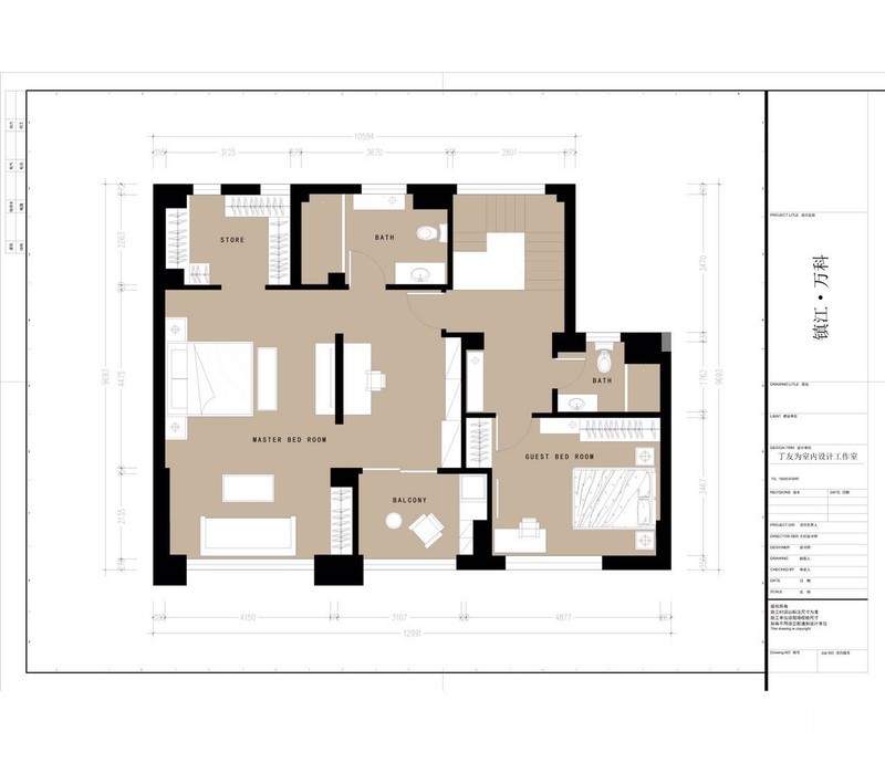
老房子从2000年住到现在,坑爹的车位让人分分钟想换小区,几年下来兜兜转转看了不少户型,一家三口有两个严重恐高,就没考虑大平层,在预算内的小别墅,又都是四层围着楼梯转,天天爬上爬下也没意思。考虑以后还要嫁出去,留两个老的在家住,再加上父母想换去清静一点的小区,最终敲定了万科蓝山的下叠户型,三层带南北小花园,实在是喜欢这套的户型结构,因为依山而建,户型南北错落,既可以从一楼南花园的休闲区域入户,也可以从二楼北花园的客餐厅入户,4个房间和客餐厅9面落地窗全部朝南,方方正正的。前年年底拿到房迟迟没有动工,跑了几家装修公司,效果图是看起来还不错,去快完工的施工现场看了下,实在不是我的菜。和哥们儿聊天,无意间聊起他的幼时伙伴刚从苏州的大装修公司辞职了回来单干,唯一完工的那户人家刚好和我一个小区一个户型,跑去看了,结果当即决定:开始装修!之后因为楼主还是比较信风水的,又纠纠结结拖拖拉拉改了小半年的方案,终于在国庆结束,开始动工!
户型图

已订部分:
中央空调:东芝内外进口机(暖福居)推荐
地暖:威能(暖福居) 新风系统:松下(天和)
马桶:箭牌(亿都)
花洒:汉斯格雅(海淘)
封门窗:维盾70系列(南京总代兼厂方)推荐
家庭背景音乐:泊声B51(主机+四套喇叭)
影音设备: 投影机——优派PJD7381HDL(网购)
幕布——红叶 120寸电动投影幕布(网购)
AV功放——雅马哈RX-V377(网购)
播放器——杰科BDP-G3606(网购)
净水系统:前置——康丽根(暖福居)
RO超滤末端——怡口(天和)
水槽:弗兰卡(月星2楼,3折清仓)
洗碗机:弗兰卡
浴缸:法标珠光款(月星)
[ 本帖最后由 my0511菲雪 于 17-2-7 15:20 编辑 ]



























原来这么便宜啊!扭头一看,我最钟爱大理石水槽的样品和龙头样品居然都还在,一开始我就是奔着大理石款去的,半路被老妈换款,缘分啊。3折,果断入!淘宝一套下来可都要接近5000,今天2900+到手哈哈哈,笑醒~~~顺手买了花园的小单槽,也是仅剩的样品,水槽300,龙头400,搞定!还有他家的洗碗机,查了据说也不错,就是比较小众,折后3000不到入手一只。灶台烟机啥的,撤柜了万一以后有个问题,想着维修也麻烦就不考虑了~

折后一共3388。之前在纠结要不要在家里添置一个的烤箱,折后2368,顺手就入了,不纠结了。
本着爱折腾的心去找了其他省份的经销商,6500不到谈下。再让我多纠结看看。


