
【家装设计精品案例展播】旨在为大家提供交流装修经验的平台,提升生活品位,共创魅力空间
第24集,我们来看一个家装作品,作品名称叫做《城市精神》。
城市精神
———企屋设计

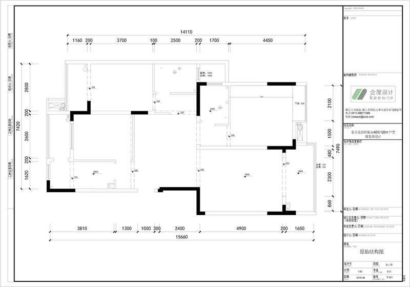
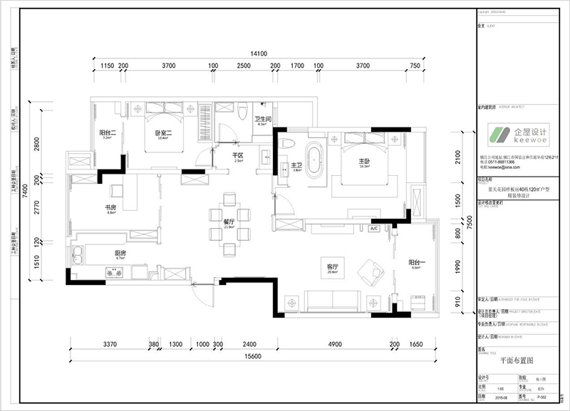
本案是景天花园花园洋房样板房设计,企屋设计团队深入透析镇江的优秀历史文化传统,又赋予鲜明的时代特征。
从空间构造到软装陈设,全方位解决方案,非常专业的、精细的考虑生活。
本案采用现代混搭的设计风格,融入装饰主义元素,简约中带有秩序的美感,崇尚的依然是一如既往的舒适。
[ 本帖最后由 my0511小妖 于 15-10-26 10:08 编辑 ]































很给力的一组作品




