凡心所向
我们不期而遇
命中注定
我们不再分离


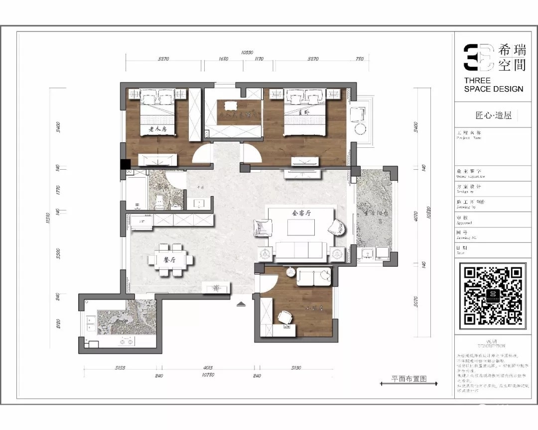
项目地址:瓯龙梦溪嘉苑
项目面积:120㎡
设计单位:希瑞空间设计
摄影单位:ingallery
本案业主:杨帆and小七


在
某年
某个月
遇见了你
此时此刻起
脑海里都是你
像春天万物欢喜
眼睛里藏不住秘密
金秋时结为伴侣
携手写下回忆
等时光老去
仍常感激
生命里
遇见
你

你向往的家是什么样的呢?或时尚或温馨或实用或复古,或静或动……
软装陈设方案

本案的呈现将做为业主的婚房,
两个人携手开启新的旅程,共同承担起家的责任,
有了担当,有了理解,有了个性的收敛,
设计师因此采用黑白灰等无彩色作为背景色及主体色进行表现,
让空间变得稳定,安逸舒适,
精心设计的灰度变化,从墙面到地面,软硬材质的变换,
再辅以低饱和度的有彩色的衬托与极具时尚感的金色点缀,
使空间安静中有生命的律动,平淡中有生活的热情,沉稳中有个性的张扬。
[ 本帖最后由 my0511唐老鸭 于 2018-10-22 13:09 编辑 ]


































欢迎串门

