| 标题
快捷导航

精彩推荐:MY0511客户端下载

    • 中信银行镇江分行

    • 公益体彩 乐善人生

    • 鹏龙鸿蒙

    • 天然石材·人造石

    » 梦溪论坛 » 家庭装修 » 90㎡简约风,年轻的味道充满爱!(转)
    家庭装修  >  [家居图片] 90㎡简约风,年轻的味道充满爱!(转)     
    查看: 10930  回复: 3
    [家居图片] 90㎡简约风,年轻的味道充满爱!(转)      查看: 10930  回复: 3
    • 来自 江苏省
    • 精华 0
    • 注册 2018-3-12
    •  
    90㎡简约风,年轻的味道充满爱!(转)

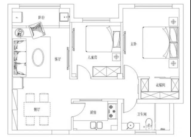
    说明项目命名:那些花儿
    项目面积:90㎡
    项目预算:硬装8万,软装2.7万(窗帘、灯具)家具8万




    一个客餐厅一体的空间,而且这个房子本身是没有阳台的,所以后期为了功能的需要,在不影响采光的前提下延展出一个小阳台。

    亮色的小饰品,让整个空间都有了年轻的味道。

    好多人问电视背景是什么材质做的,其实就是石膏板啊,有暗光灯槽(没有拍开灯效果)。

    背景装饰用了一点点镜子点缀,也很有空间拉伸感。

    客厅一角,我也特别喜欢。窝在这里看看书,看看电视,是最幸福的了。

    正面视觉展现了整体空间的延伸感,气场也是给人一种品味十足。

    餐厅45度展示。最美。

    餐厅正面照。

    美味不仅仅是嗅觉也要有视觉。

    精致的餐厅装饰品,活跃了整体餐厅的空间美

    餐厅一角,清新淡雅。两个小天使像房子的两个小主人一样可爱亲和。

    卧室一角,是主人最喜欢的也是我最喜欢的。艳丽却不浮夸。

    小朋友的房间,满天星、多啦A梦、汽车、恐龙等等,都是小朋友一再要求并必须满足的。

    干干净净的厨房,小却功能齐全。





                      
    • 来自 江苏省
    • 精华 0
    • 注册 2017-3-13
    •  
    • 来自 江苏省
    • 精华 0
    • 注册 2006-2-20
    • 行业 信息咨询
    •  

    书柜不错




    查看积分策略说明快速回复主题
    您目前还是游客,请 登录注册
    您目前是游客,本帖已被系统设置了自动关闭,不可回复!

    0/5000字

     
    < >
     

    Powered by Discuz! X 2 0.064187 s 清除 Cookies - 镇江网友之家 - 手机版
    论坛导航 关闭