| 标题
快捷导航

精彩推荐:MY0511客户端下载

    • 中信银行镇江分行

    • 公益体彩 乐善人生

    • 鹏龙鸿蒙

    • 天然石材·人造石

    » 梦溪论坛 » 家庭装修 » MY0511家装样板房直通车报名啦,6月9日网红装修公司看起来,施工设计都不赖哦
    家庭装修  >  [官方活动] MY0511家装样板房直通车报名啦,6月9日网红装修公司看起来,施工设计都不赖哦     
    查看: 593894  回复: 23
    [官方活动] MY0511家装样板房直通车报名啦,6月9日网红装修公司看起来,施工设计都不赖哦      查看: 593894  回复: 23
    • 来自 江苏省
    • 精华 9
    • 注册 2005-10-29
    • 晒家
    •  
    MY0511家装样板房直通车报名啦,6月9日网红装修公司看起来,施工设计都不赖哦



    MY0511家装样板房直通车是为即将装修的童鞋打造的装修体验式活动
    零距离走进各小区正在装修或装修好的样板房
    从业资深人士在工地进行现场讲解设计/施工知识/答疑解惑
    如果您即将准备装修,赶快加入我们吧!



    活动时间:2018年6月9日(周六)下午
    集合地点:万达喜来登门口大巴集合
          (不是酒店里面哦~活动前一两天小编会发大巴车牌号给大家的)
    集合时间:6月9日13:00
    样板房提供单位:


    【点击图标了解装饰/设计公司详情】

    样板房地点及进度:
    乙品装饰:    中南世纪城  [瓦工施工]         
    万科蓝山[整体完工]
    易兆装饰:     
    福临广场    [水电施工]           [整体完工]

    参观路线:
    万达——中南世纪————福临广场——万科蓝山——万达

    填写报名表报名(无筛选,报名即可参加):报名截止
    报名成功后,活动前两天小编会和你联系的哦


    参加MY0511样板房直通车的好处
    【理由一】直击施工现场,了解施工工艺与装修过程
    【理由二】设计师、监理现场陪同讲解装修细节,解决装修疑问
    【理由三】网友之间互动交流,分享宝贵装修经验
    【理由四】公益活动全程免费,空调大巴风雨无阻
    【理由五】施工和完工样板一个不缺,感受装修多环节
    【理由六】设计师一对一解析您家户型,免费答疑解惑

    看样板房注意事项
    1.为了不耽误大家时间,请同学们尽量准时到集合地点集合
    2.有待装房平面图的朋友可带上图纸,方便设计师现场一对一解析
    3.受客观因素制约,每户仅限2个参与名额
    4.整个活动的时间不短,并且工地环境不太适合小孩子待,所以请大家尽量避免带上小孩
    5.活动过程中请参观的同学跟随设计师(监理)的讲解顺序看样板房,以便您更全面了解样板房施工工艺、工程造价和装修注意事项等
    6.设计师讲解完后可以提出您的疑问,可不要害羞~
    7.请大家配合保护好施工现场哦,因为这个也是别人的家


    [ 本帖最后由 0511值班客服 于 18-6-9 08:29 编辑 ]





                      
    • 来自 江苏省
    • 精华 9
    • 注册 2005-10-29
    • 晒家
    •  

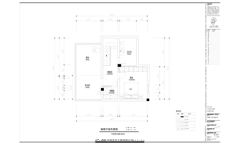
    乙品装饰样板房信息:

    样板房地址:中南世纪城94栋
    进度:瓦工进场(参观的时候估计结束了木工进场)
    设计师:郭益静
    风格:现代美式
    面积:230平
    承包方式:半包
    承包造价:土建9.6万,半包9.4万
    平面布置图:




    效果图:










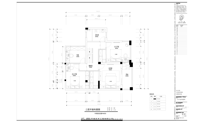
    样板房地址:万科蓝山
    进度:完工(软装阶段)
    设计师:方军 林力
    风格:现代美式
    面积:170平
    承包方式:半包
    承包造价:15万
    平面布置图:




    效果图:




    [ 本帖最后由 my0511小妖 于 18-5-28 13:22 编辑 ]




    • 来自 江苏省
    • 精华 9
    • 注册 2005-10-29
    • 晒家
    •  

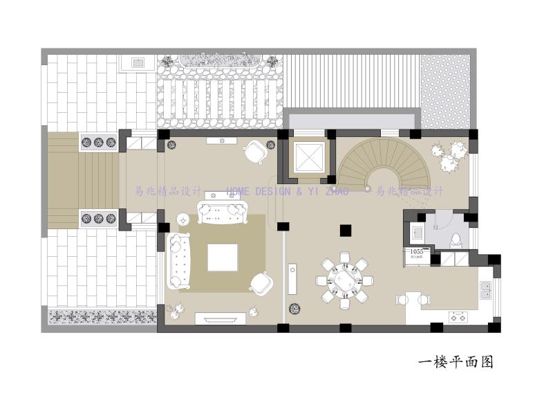
    易兆装饰样板房信息:

    样板房地址:福林广场10栋
    施工阶段:水电竣工
    设计师:杨砾
    风格:后现代
    面积:290平
    承包方式:半包
    承包造价:18W
    平面图:


    效果图:









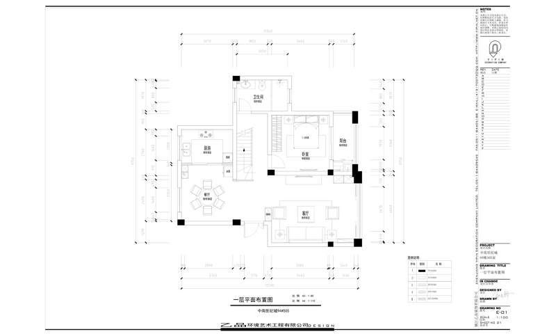
    样板房地址:臻越君庭13栋
    施工阶段:成品完工
    设计师:杨砾
    风格:古典欧式
    面积:350
    承包方式:半包
    承包造价:24W
    平面图:





    效果图:




    [ 本帖最后由 my0511小妖 于 18-5-28 13:22 编辑 ]




    • 来自 0
    • 精华 27
    • 注册 2012-2-1
    • 行业 房产建筑
    •  






    • 来自 江苏省
    • 精华 1
    • 注册 2016-6-22
    •  

    感觉不错




    • 来自 江苏省
    • 精华 0
    • 注册 2011-1-23
    • 行业 广告媒体
    •  

    怎么这么便宜




    • 来自 江苏省
    • 精华 71
    • 注册 2015-4-22
    •  






    • 来自 江苏省
    • 精华 75
    • 注册 2017-2-10
    • 行业 房产建筑
    •  






    • 来自 江苏省
    • 精华 75
    • 注册 2017-2-10
    • 行业 房产建筑
    •  

    http://bbs.my0511.com/f95b-t6833712z-1-1#pid104320306
    6月9号样板房直通车,欢迎体验




    • 来自 江苏省
    • 精华 0
    • 注册 2018-5-23
    • 行业 房产建筑
    •  

    不错不错

    [ 本帖最后由 my0511小妖 于 18-5-30 15:14 编辑 ]




    • 来自 0
    • 精华 0
    • 注册 2018-5-26
    • 行业 房产建筑
    •  






    • 来自 江苏省
    • 精华 8
    • 注册 2010-9-13
    • 行业 房产建筑
    •  






    • 来自 江苏省
    • 精华 0
    • 注册 2017-2-28
    •  

    怎么报名




    • 来自 江苏省
    • 精华 0
    • 注册 2017-5-5
    • 行业 房产建筑
    •  
    • 来自 江苏省
    • 精华 0
    • 注册 2018-5-8
    • 行业 房产建筑
    •  






    • 来自 江苏省
    • 精华 231
    • 注册 2011-7-1
    • 行业 其它
    •  






    • 来自 江苏省
    • 精华 0
    • 注册 2018-5-7
    •  
    • 来自 江苏省
    • 精华 0
    • 注册 2017-2-5
    •  
    • 来自 江苏省
    • 精华 75
    • 注册 2017-2-10
    • 行业 房产建筑
    •  


    QUOTE:
    原帖由 摩羯82 于 18-6-5 10:20 发表
    怎么报名
    直接在上面填写表格就可以了

    [ 本帖最后由 易兆精品设计 于 18-6-6 09:20 编辑 ]




    • 来自 0
    • 精华 0
    • 注册 2018-5-26
    • 行业 房产建筑
    •  

    谦谦君子




    • 来自 江苏省
    • 精华 0
    • 注册 2005-9-22
    •  

    好活动报名了。

    没有北欧风格的吗?




    • 来自 江苏省
    • 精华 48
    • 注册 2012-5-13
    • 行业 其它
    •  






    • 来自 江苏省
    • 精华 0
    • 注册 2018-3-22
    •  

    乙品设计师是很不错,上次遇到一个,问他常旅游么,说他会旅游并尽量体会当地酒店的设计。不管他今年的新马泰酒店之行能否成,有这样的学习意识也是好的,上进的。有遇到过没见识的设计师,还被批我想法多,跟人家不一样,这明明才是设计的精髓好吧。




    • 来自 江苏省
    • 精华 0
    • 注册 2018-3-22
    •  

    乙品设计师是很不错,上次遇到一个,问他常旅游么,说他会旅游并尽量体会当地酒店的设计。不管他今年的新马泰酒店之行能否成,有这样的学习意识是很好的。有遇到过不上进的设计师,批我想法多,跟人家不一样,这明明才是设计的追求好吧。




    查看积分策略说明快速回复主题
    您目前还是游客,请 登录注册
    您目前是游客,本帖已被系统设置了自动关闭,不可回复!

    0/5000字

     
    < >
     

    Powered by Discuz! X 2 0.086157 s 清除 Cookies - 镇江网友之家 - 手机版
    论坛导航 关闭