【小区名称】 紫檀
【建筑面积】 143
【装饰公司】 红居装饰
【设 计 师】 华虎
【装修风格】 简美
人生就是旅途,不管我们漂到哪,最终还是会回到温暖的地方—家。
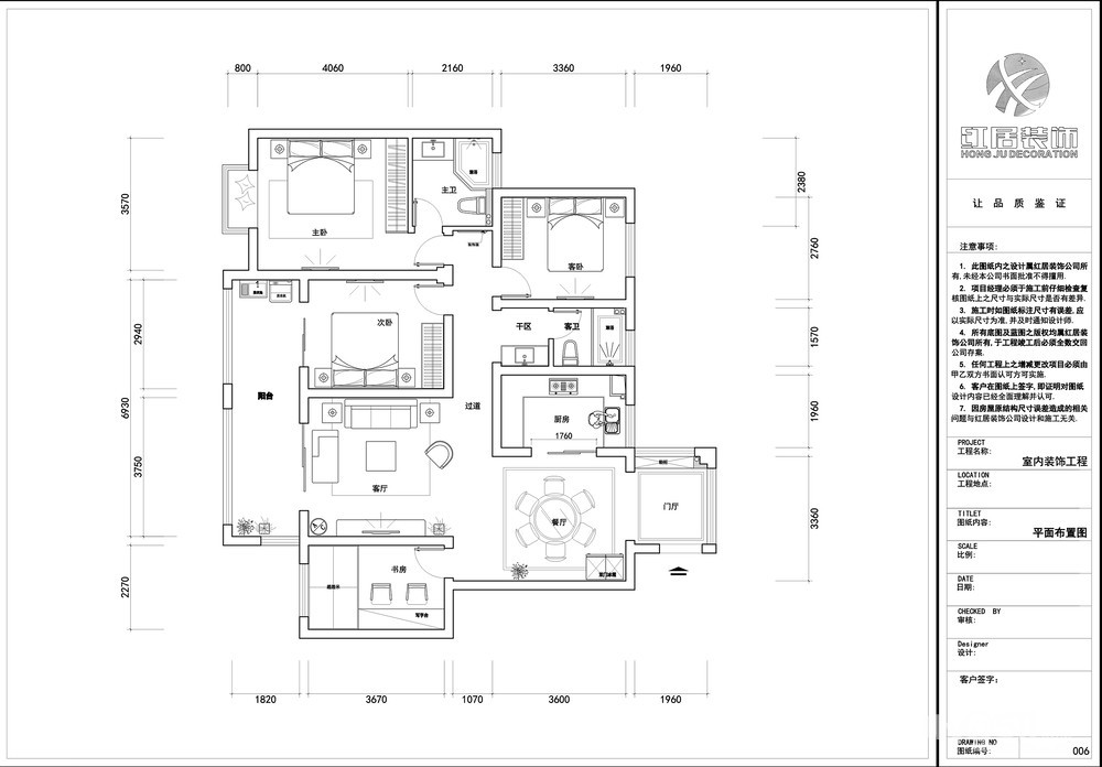
我家的平面图

简洁明亮的线条,通透的空间,将繁复的装饰凝练得更为含蓄精雅。

皮质沙发、木质家具搭配一株绿色的植物,传递着简洁、舒适的气息。
吊顶和沙发背景都采用了平板线条,简单又能勾画出平面的层次感,使墙面不再显得单调。

电视背景墙则采用木质护墙板和微晶石搭配,整体看起来会高端大气

我的家,简洁明了,我喜欢这样干净利落的感觉,清爽大气。




餐厅和客厅无论吊顶的处理还是灯具搭配都是配套的,简洁呼应。

客房做了榻榻米,囊括了睡觉、学习、休闲、储藏等诸多功能,一本书,一杯清茶,一段好时光。

卫生间则采用干湿分区,使不同空间各为所用,互不影响,考虑到了生活的细微之处,在很大程度上方便了生活,提高了生活质量。

门厅的设计采用了水刀拼花,算是一进门就给人的眼前一亮。鞋柜的设计也是功能和美观的完美结合。

这幅《蓝孔雀》给过道增加了丝丝色彩,丽而不艳,高尚典雅,也寓意吉祥幸福!

整洁明亮的厨房


卧室则一改公共区域简美的设计风格,对于自己的卧室,我希望她颜色清丽不复杂---
碎花墙纸,镂空雕花的欧式大床,复古风格的柜门,满足了少女的公主梦,我终于嫁入了我的小城堡(满满的幸福ing)
我和装修,就像谈了一场恋爱 ,过程中酸甜苦辣都有,幸福的是最终我们在一起了。在此感谢红居装饰的华工给了我想要的设计,感谢陆经理对工地的矜矜业业。









