【小区名称】:润康城
【所在楼层】:20楼
【建筑面积】:139
【装修风格】:美式
【装修公司】:红居装饰
【开工日期】:2018-6-9
【装修预算】:虽然有预算,但是还是跟着实际情况走吧!
其实已经潜伏0511一段时间了,看到很多网友写下的装修日记,记录自己装修的点点滴滴,现在我终于也可以来发个贴子了,文采一般,多多借鉴其他网友吧!
虽然现在住的房子小区还是不错的,房子也才住了几年,但是为了我们家公主能上个好的学校,我们开始挑选学区房了。买的时候没想太多,了解了下附近的学校,就直奔润康城了,从看房到签合同一气呵成,后面房价疯涨,才觉得庆幸自己没有考虑太多。
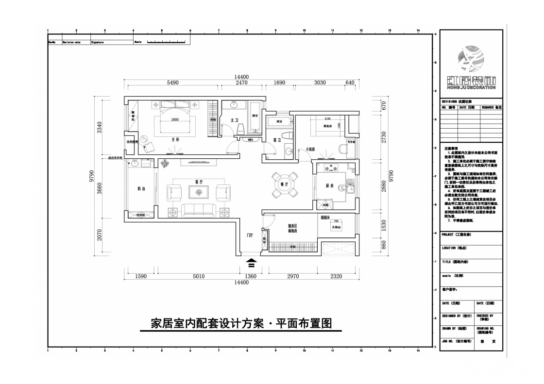
先放一张户型图,润康城的户型,说实话,不如我现在居住的房型,但是想想为什么买润康城,也就不会想那么多了。

眼看着小女儿还有一年就要开始上小学了,装修房子已经刻不容缓,于是将装修放上了行程,看到很多网友在选择装修公司投入不少时间精力,在这方面我基本没有纠结过。因为13年云开甲第房子装修的时候认识了现在红居的刘工,在整个装修过程中感觉到刘总的认真负责,有任何问题他都能及时出现解决,整个装修过程还是相对愉快的。于是乎这次装修也就直接选择了红居,也希望红居给我更多的惊喜。
我与红居的第二次缘分又开始了!先附上装修的效果图,期待与最后的实景图进行比较!
先来一张平面

设计效果图




我现在居住的房子当时装的是欧式的,这次尝试下美式,感觉美式很耐看,不复杂也不单调,沉稳也适合任何年龄段,相信也有利于小女儿的性格成长。
2018.06.09早上9.18分开工大吉了!装修路漫漫其修远已~~相信会顺顺利利的!


开工现场做的还是有模有样的,3000发的鞭炮,好大的“8”!
由于刚刚才开工两天,后续我会慢慢更新的......希望广大的网友们能多给点意见,多多交流!
[ 本帖最后由 我们不一样~ 于 2018-10-29 11:20 编辑 ]
























刘工和电工师傅现场交底

