小区名称:凤凰和润
建筑面积:122
装修风格:简美
装修公司:红居装饰
开工日期:2018-6-22
装修预算:预算PK决算
买凤凰和润房子的原因,跟镇江百分之九十的父母一样,为了给自家的囡囡一个好的教育环境,比较众多的学区房之后毅然选择了凤凰和润。潜伏0511这么久貌似很多宝爸宝妈选房子都是这个原因,说实话做家长的真的不容易,本来住在永隆感觉生活还是蛮便利的,当然现在换到凤凰和润也不错,离商圈近,离风景区也近,北固山脚下怡然自得!
其实上个月我们家就已经开工了,不要问我为什么现在才写帖子。一来,真的很忙,工作家庭真的难得有个时间空闲下来。二来,没想到工地进度这么快,总看到别的大大说装修拖拖拉拉,我以为我们家也不会太快,谁知道一晃眼,水电都做完了,想着再不写,等会会不会就是成品了(偷笑ING)。之所以选择红居主要是因为看了下网络口碑不错,问了几位选择他们家的网友反映都很好,工地看着也很满意,设计师聊过之后觉得也很不错,想想没啥好挑的了就这么定了下来,目前来看,选择还是比较正确的,希望后面顺顺利利!
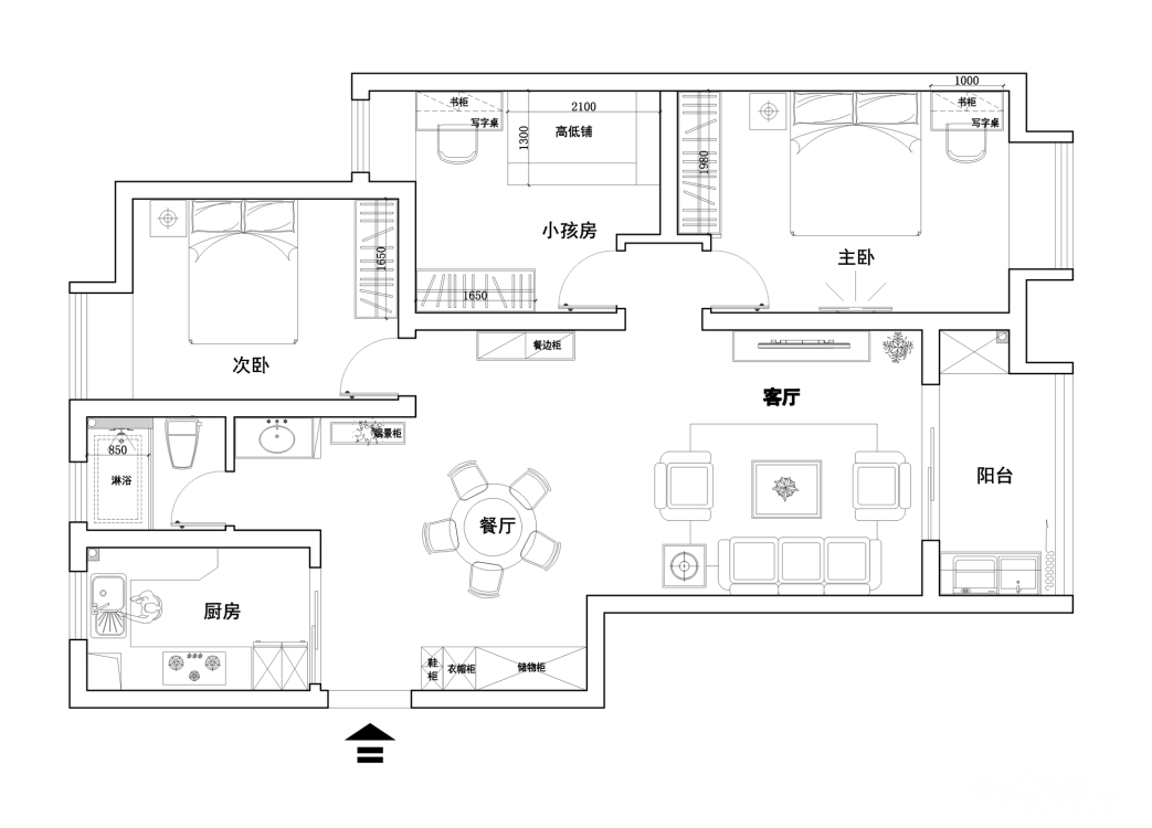
放上我们家的平面图,户型也算是精心挑选的了,开个帖子不容易,效果图啥的还是跟设计师要过来的,嘿嘿,大家帮我看看效果怎么样,有没有更好的建议?这种清新淡雅的感觉我还是蛮中意的!
平面图






感觉还是蛮耐看的,颜色也不俗气,就期待最后效果啦,等装修完拍个对比照!
由于我的拖延症,开工到现在水电已经完工了,工地去的不多,也就交底的时候项目经理通知去的时候去一下,也没拍什么照片,就借用微信群里项目经理传来的照片吧,水电做的蛮整齐的,试压也OK,反正太专业的我也不懂。






总之现场打扫的挺干净的,看着做的也OK,各项检验也合格,等瓦工做好了,再继续更新图片吧!
[ 本帖最后由 嘻嘻麻麻 于 2018-11-12 14:06 编辑 ]






祝装修愉快~

装修公司给工人准备了矿泉水还有防中暑的药,这点做的挺到位的。










半圆形的吊顶吊好了,跟效果图上的感觉差不多期待最后的效果



