欢迎加入家装官方微信群!加小编微信:13655287775 拉进群
官方QQ群: 群号:34092208
大宅群: 群号:565444352
北欧现代风
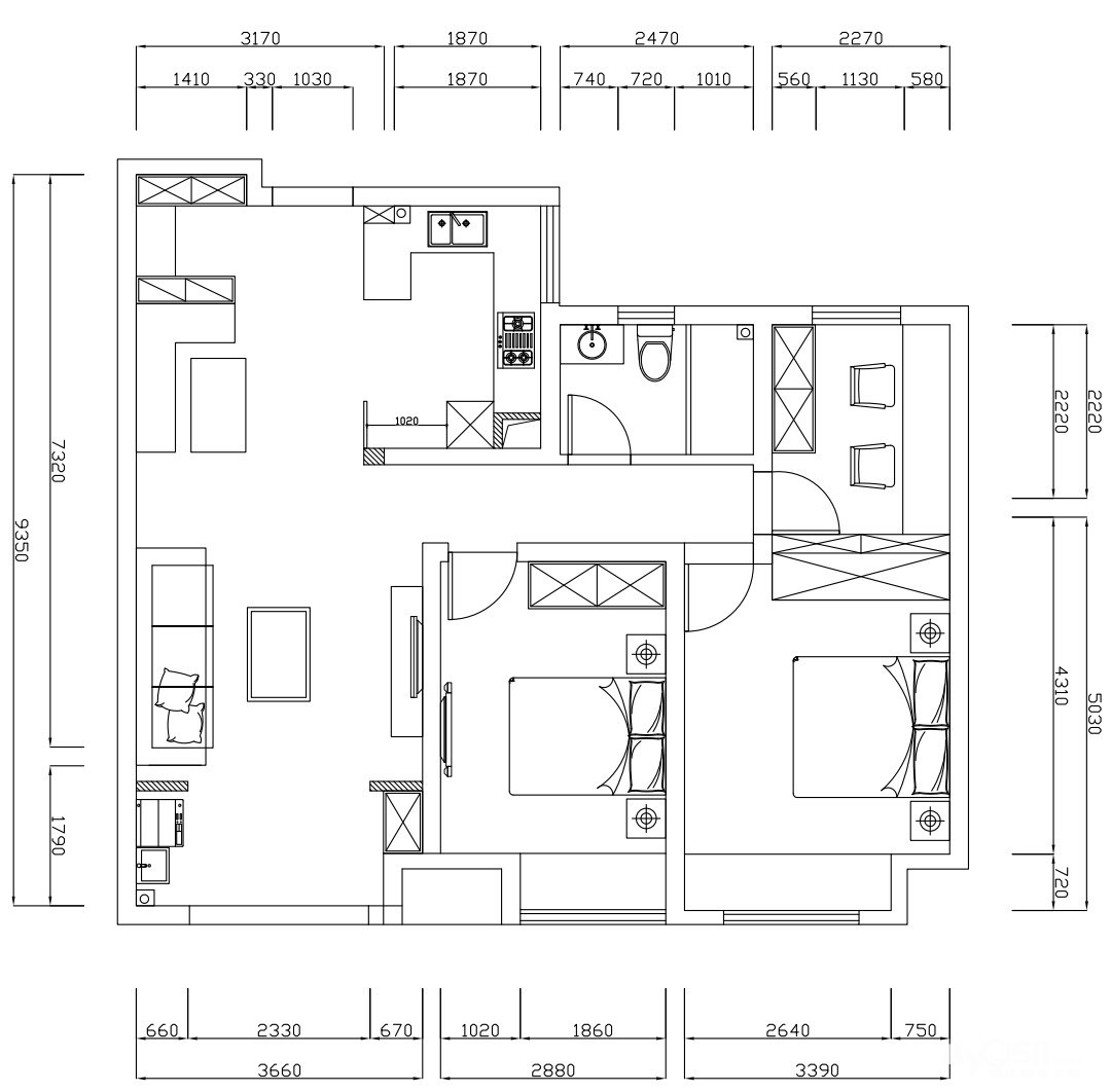
【小区名称】公园物语(物语花园)
【所在楼层】9楼
【面 积】98平米
【装修风格】北欧现代
【包工方式】半包
【装修公司】海文装饰
【设 计 师】关扬
开工日期:2020年1月12日
[ 本帖最后由 my0511唐老鸭 于 2020-5-7 15:01 编辑 ]
- 来自 江苏省
- 精华 0
- 注册 2018-12-25
- 来自 江苏省
- 精华 0
- 注册 2018-12-25
- 来自 江苏省
- 精华 0
- 注册 2014-7-2
- 来自 江苏省
- 精华 0
- 注册 2018-12-12
- 行业 其它
- 来自 江苏省
- 精华 0
- 注册 2019-10-12





























