
极简主义, 是一种生活态度
也是一种设计风格,除去多余元素
对于简单生活的追求,家也可以变得纯粹有力量
漫•行 Wandering
Copyright © 2021 FENG SHANG DA ZHAI DESIGN
01/空间,成为生活态度的表达

悠闲的空灵的风格
是舒适与自然相融合形成的一股清流
带人远离这城市的喧嚣浮躁
营造出舒缓、雅致、自在的空间氛围
述说温暖的眷顾




极简白+原木色
诠释着没有“特点”的高级感
彩色的缺席,让整个空间变得纯粹
繁华其实犹如云朵
内心的纯粹才是背后的永恒归所






白色柜面搭配黑色线条的高低组合
在满足丰富的收纳同时
提升了空间的清新舒适度
02/遇见,空间的优雅谦逊
白色空灵、迷人、安静
被称为“色盘中调不出来”的颜色
是最接近艺术本身的色彩


大面积的留白
搭配柔和的灯光
给人一种静谧放松的感觉
没有多余的装饰
显得雅致和舒适








从早到晚,每一刻都是风景!

一面是日光,一面是温暖
大面积的白色
加上超大面积的采光
让人仿佛置身纯净的天堂
让房间更加通透


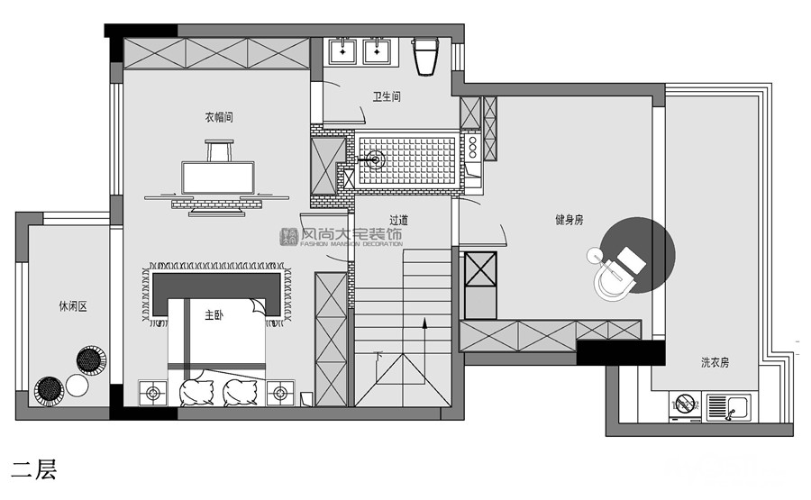
通过划分空间
二楼呈现出两个板块
通过串联的方式将空间规划的更优质、高效
在一个大的空间里面做出两个小的空间
一个主卧套间、一个综合空间
[ 平面图 ]



主案设计师 张文
Main case Designer:Zhang Wen

项目信息
项目地点 | 中企回龙山庄
Project location | Huilong mountain villa
项目面积 | 220㎡
Project area | 220 square meters
施工时间 | 2020.11
Construction time | 2020.11
拍摄时间 | 2021.10
Shooting time | 2021.10
设计风格 | 现代极简风格
Design style | Modern minimalist style
项目方式 |半包
Project mode | Half bag
设计施工 | 镇江风尚大宅装饰
Design and construction | Zhenjiang fengshang dazhai decoration
如果你也想拥有这样一套品位与品质共存的案例
请联系我们

咨询:13382993038(微信同)19531680301(微信同)
地址:汝山路沃得雅苑26幢101室
更多风尚大宅装饰案例请点击:
[ 本帖最后由 my0511唐老鸭 于 2021-11-18 11:09 编辑 ]







这么大房子,安排个客厅还是必要的,也许现在人想法不一样了,



