【项目概况】
|项目地址:镇江江山樾
|建筑面积:300m²
|主案设计:朱广东
|软装设计:周媛媛
|建筑类型:平层
|设计风格:现代美式风格
|设计施工软装:东墨设计
平面设计构思:江山樾的这个户型,南北通透,两房和客厅餐厅朝南,进户大门对着玄关,布局分布相当合理,风水运势非常好,本案是夫妻带个小男孩,所以下面规划的是一个朝南房间做套间来使用,北面小房间做儿童房兼书房使用,增加北面增加了一个衣帽间收纳功能,整体灯光上设计采用简洁明了轻硬装重软装设计思维,把空间感做大,设计还是要以人为本,利用空间结构,人体工程学,最大化改善空间利用率,首先考虑功能布局的合理性,其次考虑毕竟房子是用来居住的,收纳空间要多考虑些,其次利用环保材料打造空间的连贯性,塑造美的空间效果!




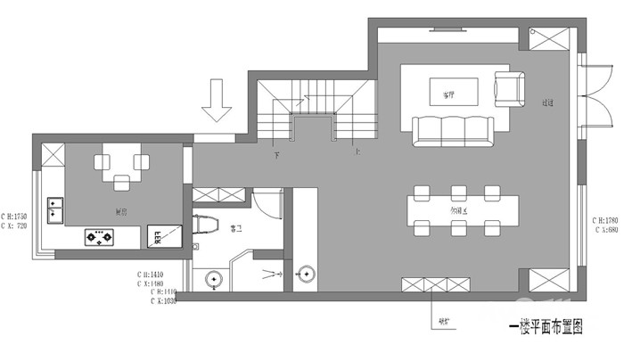
客厅餐厅
客厅电视背景采用美式特有元素线条来勾勒造型的设计,进门玄关放置装饰矮柜加装饰品装饰画的设计,使得进门更有美式风味,沙发后面采用多功能桌椅设计,既可以写字画画办公,人多也可以当餐厅来使用,背景采用线条和壁炉的设计造型,简单清爽,整体墙面采用白色色为主,整体简洁大气协调!沙发选用皮质橄榄绿,搭配黑白相间的布艺单椅,整体空间协调,窗帘也采用藏绿色系跳色!


















厨房
原有的厨房区域改为水吧台区域,把厨房放北面的空间里,平时人少厨房就餐就在北面空间里完成,既增加原有的客厅和休闲区的空间感,也把油烟远离客厅休闲区

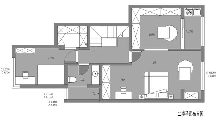
主卫


主卧
主卧床头背景采用线条的造型,加上个性的主灯和壁灯,床选用黑色实木,打破传统设计方式,窗帘也是采用橄榄绿色系!














如果你也想拥有这样一套品位与品质共存的案例
请联系我们

地址:旭辉时代大厦20楼2008室
电话:13160209458 / 15162976302 / 15262918655
更多东墨设计案例请点击:
[ 本帖最后由 my0511菲雪 于 2024-12-30 15:39 编辑 ]









