【小区名称:】镇江宝龙公寓
【设计风格:】现代简约
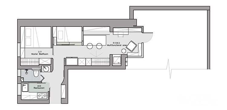
【房屋面积:】38
【房屋类型:】公寓
【设计师:】崔鹏
【套餐包:】舒适包
【方案改造说明:】
多功能空间,让这个区域不单是餐厅,同时也是理想的办公空间,也能满足家人在这里看投影。卡座区的坐深550mm,包围式布局,让久坐也不会觉得累。
这是孩子休息的区域,房间虽然不大,但功能比较齐全。两个格栅移门,方便活动推拉。床下也是收纳的空间,最外面的踏步下面还有抽屉。顶面增加吊顶,周边预留反光灯槽用于照明,让顶面有了悬浮的感觉。和餐厅之间的造型窗,让通风和采光也都比较好
主卧空间主要是采用地台和柜体相结合的形式来设计,这样既可以节省空间,又可以增加屋里的收纳。















