【小区名称:】镇江上河御府
【设计风格:】现代简约
【房屋面积:】138m2
【设计师:】陈海添
【套餐包:】品质包
【联系电话:】18652820974(同微信)预约设计师
【方案改造说明:】
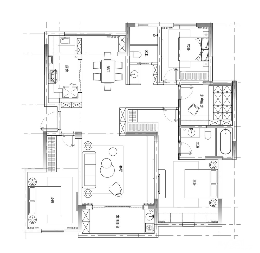
整体风格以现代轻奢为基本格调,主满足客户设计需求,次再与我设计理念中和。在原始结构图中,入户客厅时给人的观感不佳、厨房空间不足、过道纵宽过长等问题,所以平面布置时,侧重设计上述问题;入户玄关的理念是源于老子的《道德经》,是内气修养的一个突破关口,也可以是通关之地,放在现代室内建筑中,是指进入正室的重要过道,其重要性可想而知,玄关就是入户门所在的空间,这个地方虽然只是一个出入和迎送客人的通道地方,但它却是这个地方给人第一印象的地方,是整个家的门面,有着装饰空间的作用。而且有了玄关,也能够将室内私密进行保护,避免外来人员第一眼就看到整个居室的环境,对潜在的安全隐患有排除作用。
为了使厨房空间更大,与北阳台贯通是最好的选择,合理的避开下水管,包在新砌的砖墙内,厨房就能在原先空间多出2~3m2;而走道也正好因玄关背景是实墙的缘故,在另一面再砌一面实墙给主卧留有足够的步入式衣帽间。在整个设计过程中,合理划分空间,让设计融入生活,营造自然,品味,格调,这是我的设计理念。







[ 本帖最后由 金螳螂设计 于 2022-10-12 10:09 编辑 ]







