
【小区名称】:江山名洲 6期 江山府
【所在楼层】:联排
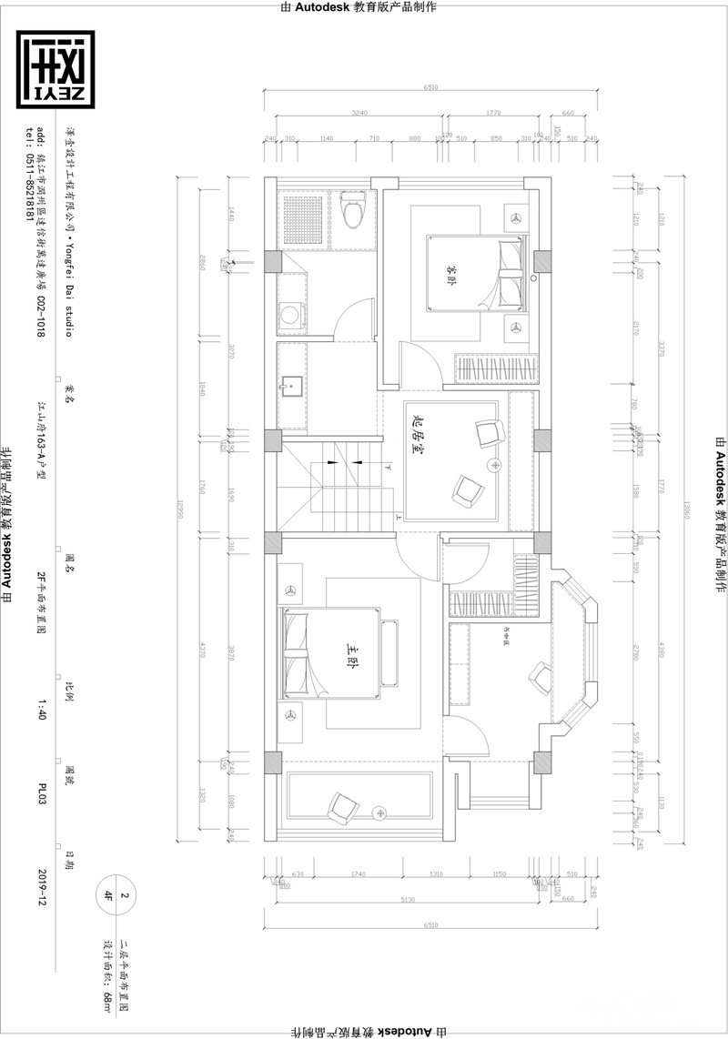
【建筑面积】:163平方
【装修风格】:简约,(不简单)
【包工方式】:半包
【装修公司】泽一设计
【开工日期】:2019年12月
【装修预算】:大概的装修预算 (越省钱越好,越便宜越好,能淘宝绝对不实体,一切以省钱为目的)
【户型图片】:附上户型图






[ 本帖最后由 my0511唐老鸭 于 2020-7-30 16:51 编辑 ]

其实不然,穷!没钱才是重点。。。。。
噶噶小。。。。
为什么这样说尼?
车库 及 阁楼 统统赠送!3楼了 , ~~~~写写选择装修公司吧。。。。
和螃蟹先生商量好,这次不找朋友不找亲戚,因为我们2太滴滴哒哒。。。。
从2017年年底我们就挑装修公司
,
是不是准备的够早的啊。。。
因为自己对设计及房屋的规划,有一点点小小的心得,俗话说的好“一瓶子水不响,半瓶子的水直晃” 因为自己有一丢丢小小的装修心得,所以觉得有的设计师还不如我
(夜郎自大)型。。。。
1:刚刚挑选装修,首选的当然是广东的大的装修公司。。。 可是一大圈转下来,没有和设计师有任何的心灵碰撞
2:又去看了所谓的江西帮的装修公司。。。。
3:最后才接触镇江本地。。
其实我的要求很简单,每一层才70平方,所以要合理规划把空间利用到最大化,是很简单的要求,其实并不简单。。
我的脾气又不是特别好,那必须找一个设计师涵养要好一点
要不然肯定会被我气S。。。。
替我装修公司可怜他3秒钟。。。。
就这样又把镇江公司折腾个遍。。。。。
千万不要怪我


(螃蟹先生但愿你看人是准的
)
主材清单:
【阳台门窗】 : 暂定
【橱柜】 : 暂定
【瓷砖】 : 暂定
【中央空调、新风】 : 暂定
【卫浴洁具】 : 暂定
【集成吊顶】 : 暂定
【定制衣柜) : 暂定
【地板】 : 暂定
【木门】 : 暂定
【沙发】 : 暂定
【床】 : 暂定
【餐桌椅】 : 暂定
【智能家居 : 暂定
【空开】 : 暂定
【入户门 : 暂定
【墙布、 : 暂定
窗帘】 : 暂定
更新中…………