收藏本站
客户端
扫码下载客户端
官方微信
打开微信扫一扫
登录
|
注册
|
标题
标题
用户
全站首页
|
论坛导航
|
网络问政
|
招聘求职
|
买房租房
|
装修频道
|
生活服务
|
教育
|
相亲
|
亲子
|
美食
|
婚嫁
|
手机客户端
家有学子
|
母婴乐园
快捷导航
精彩推荐:
MY0511客户端下载
中信银行镇江分行
公益体彩 乐善人生
鹏龙鸿蒙
天然石材·人造石
»
梦溪论坛
»
家庭装修
» [2021万家基和装饰杯]中南 上悦诗苑--装修小白之随性手记(大安装阶段)
家庭装修
>
[装修日记]
[2021万家基和装饰杯]中南 上悦诗苑--装修小白之随性手记(大安装阶段)
查看: 216546 回复: 514
快速回复
返回家庭装修
515
4/11
|
<
<
2
3
4
5
6
7
8
9
10
11
>
[装修日记]
[2021万家基和装饰杯]中南 上悦诗苑--装修小白之随性手记(大安装阶段)
查看: 216546 回复: 514
上一主题
|
下一主题
蓝莓果酱
来自 江苏省
精华 0
注册 2020-9-14
傍晚时分,黄师傅已经做好了厨房阳台的过门石,并且用水平仪一打,厨房阳台和卫生间过门石全在一个平面上,手艺精湛
2021-4-18 19:49
151楼
[联宇电脑] 电脑组装\维修\升级\企业单位电脑维护!
查看全部
分享本楼
蓝莓果酱
来自 江苏省
精华 0
注册 2020-9-14
补个水平仪图片
2021-4-18 19:49
152楼
[联宇电脑] 电脑组装\维修\升级\企业单位电脑维护!
查看全部
分享本楼
蓝莓果酱
来自 江苏省
精华 0
注册 2020-9-14
两个卫生间的地砖也贴好了,瓷砖面坡度做的肉眼可见,真正做到了“水关地干”
2021-4-18 19:52
153楼
MY0511相亲,一分钟注册,享一辈子幸福!
查看全部
分享本楼
蓝莓果酱
来自 江苏省
精华 0
注册 2020-9-14
时间上来不及,阳台墙砖要等黄师傅下次来贴了,明天木工先进场做起来
2021-4-18 19:53
154楼
[联宇电脑] 电脑组装\维修\升级\企业单位电脑维护!
查看全部
分享本楼
蓝莓果酱
来自 江苏省
精华 0
注册 2020-9-14
2021-4-18 19:53
155楼
找工作,就上MY0511!
查看全部
分享本楼
蓝莓果酱
来自 江苏省
精华 0
注册 2020-9-14
2021-4-18 19:53
156楼
找工作,就上MY0511!
查看全部
分享本楼
蓝莓果酱
来自 江苏省
精华 0
注册 2020-9-14
2021-4-18 19:54
157楼
[联宇电脑] 电脑组装\维修\升级\企业单位电脑维护!
查看全部
分享本楼
蓝莓果酱
来自 江苏省
精华 0
注册 2020-9-14
QUOTE:
原帖由
小蚂蚁blh
于 2021-4-18 21:42 发表
系统窗贵不?哪天去参观一下
对比了好多家,后来选了贝洛特,做工很好,性价比挺高的
2021-4-18 22:53
158楼
找工作,就上MY0511!
查看全部
分享本楼
蓝莓果酱
来自 江苏省
精华 0
注册 2020-9-14
QUOTE:
原帖由
镇江火车迷在线
于 2021-4-20 12:41 发表
参观 安排一下
欢迎欢迎
2021-4-20 19:39
159楼
买房、卖房、租房上镇江房产网!
查看全部
分享本楼
蓝莓果酱
来自 江苏省
精华 0
注册 2020-9-14
2021-4-20 19:39
160楼
[联宇电脑] 电脑组装\维修\升级\企业单位电脑维护!
查看全部
分享本楼
蓝莓果酱
来自 江苏省
精华 0
注册 2020-9-14
2021-4-20 19:39
161楼
0511家装频道:本地家居服务平台,数万业主共同选择
查看全部
分享本楼
蓝莓果酱
来自 江苏省
精华 0
注册 2020-9-14
2021-4-20 19:40
162楼
[联宇电脑] 电脑组装\维修\升级\企业单位电脑维护!
查看全部
分享本楼
蓝莓果酱
来自 江苏省
精华 0
注册 2020-9-14
2021-4-20 19:45
163楼
0511家装频道:本地家居服务平台,数万业主共同选择
查看全部
分享本楼
蓝莓果酱
来自 江苏省
精华 0
注册 2020-9-14
补张木工进场的图片
2021-4-25 09:21
164楼
[联宇电脑] 电脑组装\维修\升级\企业单位电脑维护!
查看全部
分享本楼
蓝莓果酱
来自 江苏省
精华 0
注册 2020-9-14
木工板材用的莫干山的纸面石膏板,莫干山轻钢龙骨,还有用来做窗帘盒的欧松板。
2021-4-25 09:28
165楼
[联宇电脑] 电脑组装\维修\升级\企业单位电脑维护!
查看全部
分享本楼
蓝莓果酱
来自 江苏省
精华 0
注册 2020-9-14
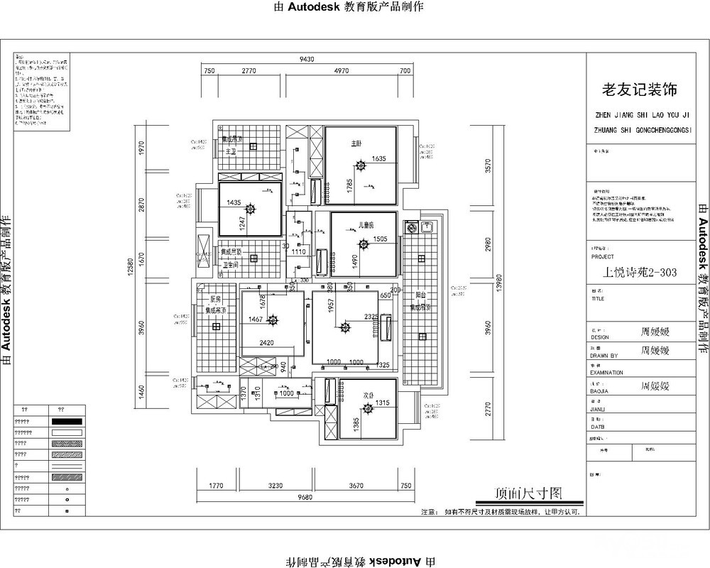
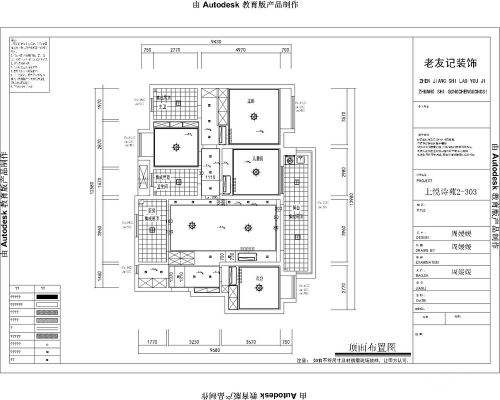
鲁师傅速度很快,刚进场两天就做好了客厅吊顶
2021-4-25 09:30
166楼
0511家装频道:本地家居服务平台,数万业主共同选择
查看全部
分享本楼
蓝莓果酱
来自 江苏省
精华 0
注册 2020-9-14
入户玄关和储藏室的吊顶也做好了
2021-4-25 09:31
167楼
0511家装频道:本地家居服务平台,数万业主共同选择
查看全部
分享本楼
蓝莓果酱
来自 江苏省
精华 0
注册 2020-9-14
2021-4-25 09:31
168楼
[联宇电脑] 电脑组装\维修\升级\企业单位电脑维护!
查看全部
分享本楼
蓝莓果酱
来自 江苏省
精华 0
注册 2020-9-14
2021-4-25 09:32
169楼
MY0511相亲,一分钟注册,享一辈子幸福!
查看全部
分享本楼
蓝莓果酱
来自 江苏省
精华 0
注册 2020-9-14
2021-4-25 09:32
170楼
0511家装频道:本地家居服务平台,数万业主共同选择
查看全部
分享本楼
蓝莓果酱
来自 江苏省
精华 0
注册 2020-9-14
2021-4-25 09:32
171楼
0511家装频道:本地家居服务平台,数万业主共同选择
查看全部
分享本楼
蓝莓果酱
来自 江苏省
精华 0
注册 2020-9-14
2021-4-25 09:32
172楼
MY0511相亲,一分钟注册,享一辈子幸福!
查看全部
分享本楼
蓝莓果酱
来自 江苏省
精华 0
注册 2020-9-14
2021-4-25 09:33
173楼
MY0511相亲,一分钟注册,享一辈子幸福!
查看全部
分享本楼
蓝莓果酱
来自 江苏省
精华 0
注册 2020-9-14
QUOTE:
原帖由
镇江火车迷在线
于 2021-4-25 09:53 发表
感觉 客厅吊顶 有点不妥!
客厅本来是空调出风口在阳台侧,中间有过道,后来过道太小了,改成了现在的方案。
2021-4-25 19:48
174楼
0511家装频道:本地家居服务平台,数万业主共同选择
查看全部
分享本楼
蓝莓果酱
来自 江苏省
精华 0
注册 2020-9-14
房间吊顶也做好了,只差过道吊顶了。
2021-4-25 19:50
175楼
MY0511相亲,一分钟注册,享一辈子幸福!
查看全部
分享本楼
蓝莓果酱
来自 江苏省
精华 0
注册 2020-9-14
2021-4-25 19:51
176楼
[联宇电脑] 电脑组装\维修\升级\企业单位电脑维护!
查看全部
分享本楼
蓝莓果酱
来自 江苏省
精华 0
注册 2020-9-14
2021-4-25 19:51
177楼
[联宇电脑] 电脑组装\维修\升级\企业单位电脑维护!
查看全部
分享本楼
蓝莓果酱
来自 江苏省
精华 0
注册 2020-9-14
2021-4-25 19:51
178楼
MY0511相亲,一分钟注册,享一辈子幸福!
查看全部
分享本楼
蓝莓果酱
来自 江苏省
精华 0
注册 2020-9-14
2021-4-25 19:52
179楼
找工作,就上MY0511!
查看全部
分享本楼
蓝莓果酱
来自 江苏省
精华 0
注册 2020-9-14
2021-4-25 19:52
180楼
0511家装频道:本地家居服务平台,数万业主共同选择
查看全部
分享本楼
蓝莓果酱
来自 江苏省
精华 0
注册 2020-9-14
2021-4-25 19:52
181楼
找工作,就上MY0511!
查看全部
分享本楼
蓝莓果酱
来自 江苏省
精华 0
注册 2020-9-14
2021-4-25 19:52
182楼
MY0511相亲,一分钟注册,享一辈子幸福!
查看全部
分享本楼
蓝莓果酱
来自 江苏省
精华 0
注册 2020-9-14
2021-4-25 19:55
183楼
MY0511相亲,一分钟注册,享一辈子幸福!
查看全部
分享本楼
蓝莓果酱
来自 江苏省
精华 0
注册 2020-9-14
2021-4-25 19:55
184楼
MY0511相亲,一分钟注册,享一辈子幸福!
查看全部
分享本楼
蓝莓果酱
来自 江苏省
精华 0
注册 2020-9-14
飘窗打算做个木台面,跑去亿都看了下,现在指接板还是有生产的,就是表面没处理过,要木工打磨上漆。
2021-4-25 19:59
185楼
找工作,就上MY0511!
查看全部
分享本楼
蓝莓果酱
来自 江苏省
精华 0
注册 2020-9-14
还有一种是市面上普及的免漆板,主要用来做柜体和装饰面的,摸上去滑溜溜的,又有点担心不耐晒。
2021-4-25 20:00
186楼
找工作,就上MY0511!
查看全部
分享本楼
蓝莓果酱
来自 江苏省
精华 0
注册 2020-9-14
2021-4-25 20:01
187楼
MY0511相亲,一分钟注册,享一辈子幸福!
查看全部
分享本楼
蓝莓果酱
来自 江苏省
精华 0
注册 2020-9-14
2021-4-25 20:01
188楼
买房、卖房、租房上镇江房产网!
查看全部
分享本楼
蓝莓果酱
来自 江苏省
精华 0
注册 2020-9-14
2021-4-25 20:01
189楼
MY0511相亲,一分钟注册,享一辈子幸福!
查看全部
分享本楼
蓝莓果酱
来自 江苏省
精华 0
注册 2020-9-14
2021-4-25 20:02
190楼
买房、卖房、租房上镇江房产网!
查看全部
分享本楼
蓝莓果酱
来自 江苏省
精华 0
注册 2020-9-14
2021-4-25 20:02
191楼
找工作,就上MY0511!
查看全部
分享本楼
蓝莓果酱
来自 江苏省
精华 0
注册 2020-9-14
2021-4-25 20:02
192楼
MY0511相亲,一分钟注册,享一辈子幸福!
查看全部
分享本楼
蓝莓果酱
来自 江苏省
精华 0
注册 2020-9-14
2021-4-25 20:03
193楼
[联宇电脑] 电脑组装\维修\升级\企业单位电脑维护!
查看全部
分享本楼
蓝莓果酱
来自 江苏省
精华 0
注册 2020-9-14
2021-4-25 20:04
194楼
0511家装频道:本地家居服务平台,数万业主共同选择
查看全部
分享本楼
蓝莓果酱
来自 江苏省
精华 0
注册 2020-9-14
2021-4-25 20:04
195楼
[联宇电脑] 电脑组装\维修\升级\企业单位电脑维护!
查看全部
分享本楼
蓝莓果酱
来自 江苏省
精华 0
注册 2020-9-14
2021-4-25 20:04
196楼
找工作,就上MY0511!
查看全部
分享本楼
蓝莓果酱
来自 江苏省
精华 0
注册 2020-9-14
2021-4-25 20:05
197楼
MY0511相亲,一分钟注册,享一辈子幸福!
查看全部
分享本楼
蓝莓果酱
来自 江苏省
精华 0
注册 2020-9-14
2021-4-25 20:05
198楼
买房、卖房、租房上镇江房产网!
查看全部
分享本楼
蓝莓果酱
来自 江苏省
精华 0
注册 2020-9-14
2021-4-25 20:06
199楼
0511家装频道:本地家居服务平台,数万业主共同选择
查看全部
分享本楼
蓝莓果酱
来自 江苏省
精华 0
注册 2020-9-14
2021-4-25 20:07
200楼
找工作,就上MY0511!
查看全部
分享本楼
返回家庭装修
515
4/11
|
<
<
2
3
4
5
6
7
8
9
10
11
>
快速回复主题
游客
您目前还是游客,请
登录
或
注册
您目前是游客,本帖已被系统设置了自动关闭,不可回复!
文明交流,理性发言
0/5000字
<
>
请在打开的新窗口中支付完成打赏
我已完成支付打赏
支付失败重新支付
其他金额
打赏金额:
元
确定
支付打赏
提 现
打赏人
打赏金额(元)
打赏时间
Powered by
Discuz! X 2
0.098180 s
清除 Cookies
-
镇江网友之家
-
手机版
论坛导航
关闭
吃喝玩乐
饮食男女
镇江钓友之家
菜菜鸟户外
镇江单车俱乐部
镜头里的镇江
畅游天下
猫狗总动员
视觉Coffeeshop摄影部落
花鸟鱼虫
婚姻.亲子.家庭
家有学子
谈婚论嫁
女性天地
母婴乐园
婚姻生活
梦溪佳缘
装修
家庭装修
装修招标
镇江室内设计师交流
装修商家直通车
你好,镇江!
百姓话题
我要买房
0511爱心家园
市场监管•12315热线
分类信息
生活服务
闲置转让
镇江二手房/镇江租房
镇江招聘求职
教育培训
镇江二手车
商铺厂房写字楼租售
宠物市场
运动健身
卡券交易
电脑维修升级
杂货铺
其他分类信息区
兴趣爱好
HiFi音响江城沙龙
镇江市美术家协会
我爱模型
车友俱乐部
车迷之家
汽车驾培中心
运动俱乐部
镇江市冬泳、铁人三项协会
聚焦足球
镇江羽毛球
镇江乒乓球协会
镇江网球协会
镇江市自行车运动协会
热爱篮球
动力机车
合作栏目
维权热线
天翼时代
色觉影像摄影工作室
站务区
疑问与建议
网络问政
市政府工作部门
垂直管理部门
党群工作部门
其他重点单位
辖市(区)