到邻居家串个门、顶个帖。

从美貌小资到实用舒适——我的平面变迁之路(一)
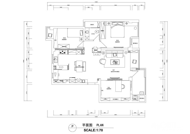
平面图1.0:关于新家,老婆想象中一直希望能有个大大的厨房、小资的吧台、宽敞的衣帽间,明亮、温暖、多姿多彩。于是在还没找装修公司之前我们就一直在讨论两个卫生间的取舍问题,一直很纠结是否要舍弃一个卫生间。舍弃客卫可以得到一个大大的厨房、舍弃主卫可以获得一间一直都想要的衣帽间,还是保留两个卫生间方便今后,鱼与熊掌的题目一向都不是我夫妻两个所擅长的。经过了长时间的纠结之后,在确定装修公司的时候,我们决定舍弃客卫获得一个大大的厨房和餐厅以及一个极具情调的吧台。于是经过与设计师的沟通后,我家的第一版平面图出炉了。

说实话,到现在我和夫人都很喜欢这一版的平面,放弃对于我们来说是极其痛苦和纠结的。这张平面图中有我们想要的中西分离式厨房、有美貌的吧台,按照这个平面做出来一定非常非常的小资,以至于我们一度拿着这张平面跑市场询价格。
最终使我们放弃这版方案的是因为老婆偶然看到了某装大牛的帖子后跟我说:好像我们的油烟机离烟道远了,网上说油烟机靠烟道越近越好,离得远了容易排烟不畅。我拿出平面一看一量,油烟机到烟道拉直线距离2.5米,好像是长了点,赶忙上网问去查,度娘一搜,答案不一,有说不能超过4米的,有说超过油烟机配套烟管长度(应该是1.7米)就会有影响,这个?我沉吟了,到底怎么办,想要现在的布局,就必须接排烟管,虽说不一定有问题,但万一有呢,一旦装好就没法改了。想来想去,我们决定还是要改平面。
从美貌小资到实用舒适——我的平面变迁之路(二)
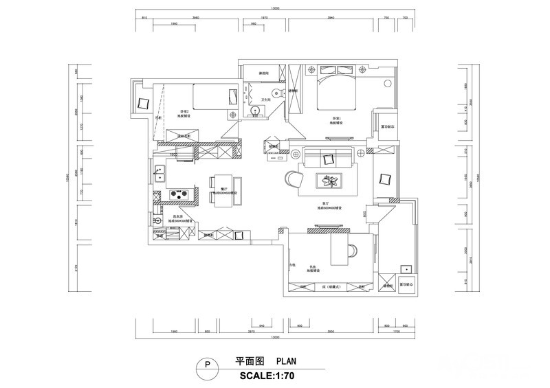
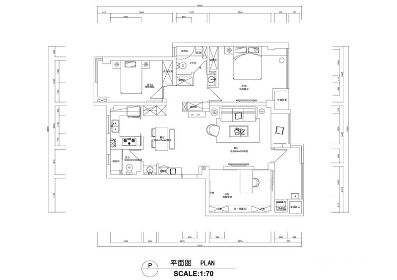
平面图2.0:第一次平面变更,我们向实用妥协了,决定把烟灶移到靠近公共烟道的位置,这也就意味着厨房和客卫间的墙不能打掉,也就意味着不可能把客卫划到厨房里来,原本那个小子的吧台必须舍弃了。那么客卫做什么用呢?还做卫生间,前思后想都觉的一百来平的房子设两个卫生间这面积太浪费了。那么该怎么利用客卫的位置呢?
一个偶然的机会,跟老婆谈到了洗衣机的放置,我突然一拍脑袋,对老婆说:要不客卫的位置就做洗衣房吧,做成一个美式味道浓郁的洗衣房也是很美貌的,这样阳台就变成了一个纯粹的阳台,洗衣机位可以打一个立柜,能放很多东西。听到我的话,老婆也是眼前一亮,于是乎我们的平面图2.0版本出炉了。

喜欢的洗衣房的图片:



















从美貌小资到实用舒适——我的平面变迁之路(三)
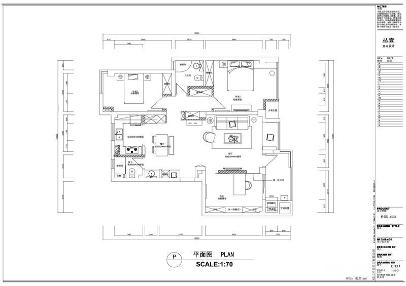
平面图3.0:洗衣房的方案是春节前的灵机一动,但是经过春节期间反复去新房子里面走动,我发现之前考虑的洗衣房实在太过局促了,因为原本卫生间中是有管道的,按照平面图2.0放下一大一小两个洗衣机、一个洗衣台盆和一个储物柜后,空间非常非常的小,如果强行去做,今后必然有诸多不便,老外很多房子很大,独立的洗衣房空间也非常宽敞,在我家确实非常勉强了。那么这个客位的空间到底如何利用呢?思前想后,在征求了家里老人的意见后,最终我和夫人决定还是保留两个卫生间,但完全按照原户型结构我是不甘心的,感觉不大的户型这样的空间利用太过浪费。
于是除夕之夜,我没有看春晚,一个人坐在平面图前敏思苦想,终于在零点钟声敲响时,随鞭炮声的响起,一个想法出现在我脑海。
下面是我的平面图3.0版本,主卫的墙向里移了,儿童房的门也向里移了,在主卧靠门的地方做了一个干区,这样卧室门前的走道形成了一块貌似衣帽间的区域,两边是衣柜,这个方案缩小了主卫(由于有客卫的存在,主卫不需要原来那么大了)。
