
- 来自 江苏省
- 精华 0
- 注册 2008-8-15
- 行业 学生
- 来自 江苏省
- 精华 0
- 注册 2008-8-15
- 行业 学生
- 来自 江苏省
- 精华 0
- 注册 2008-8-15
- 行业 学生
- 来自 江苏省
- 精华 0
- 注册 2008-8-15
- 行业 学生
- 来自 江苏省
- 精华 0
- 注册 2008-8-15
- 行业 学生
- 来自 江苏省
- 精华 0
- 注册 2008-8-15
- 行业 学生
下沉式卫生间的回填做法
为了方便排水布置,现在很多开发商都将卫生间做成下沉式,所谓下沉式,就是将卫生间整体格局下降一定高度(大约40cm),在里面进行埋管排水等操作,然后进行回填。那么下沉式的卫生间该怎么回填才最实际呢?
第一步,将裸露的卫生间墙体刷两遍防水涂料,在刷涂料的时候不要忽略墙体,最好刷至沉箱上40cm处,这一步比较重要,相当于做房子打地基的操作,保证日后即使渗水不会向四周外扩。
第二步,用红砖砌成400*400的正方形格子(我家瓦工格子砌的比较大),这个操作就相当于给房子做框架了,保证卫生间地面的承重,这一步很容易被忽略,但是小编建议最好做,否则日后地面很容易下沉出现漏水等问题。
第三步,做好框架后,就给这些小格子填充了,最好选择比较轻盈的陶粒和灰煤渣,因为它们的质地比较蓬松,能够起到吸水的作用。
注意填充时不要压得太紧实,毕竟它们只是用来吸水的,真正起到承重作用的是红砖框架。另外,很多人还在传言建筑垃圾可以作为填充物,小编在此说明,建筑垃圾是工人图方便的幌子,它作为填充物会给楼层增加负担,若是日后浸水更加是有隐患的!
第四步,填充完就要给它们铺上一层钢筋网,一般是200*200的小格子,它们的作用是使陶粒基层受力均匀。
最后,在上面倒混凝土(大约40毫米),这一步要注意下水道的斜坡操作。等干透后,连墙体一起刷两遍防水涂层。等防水层干透,再刷一遍素水泥浆,这一步操作是为了防止之后的贴砖会损坏刮花混凝土层。
[ 本帖最后由 哆瑞咪 于 2019-7-26 09:51 编辑 ]

为了方便排水布置,现在很多开发商都将卫生间做成下沉式,所谓下沉式,就是将卫生间整体格局下降一定高度(大约40cm),在里面进行埋管排水等操作,然后进行回填。那么下沉式的卫生间该怎么回填才最实际呢?
第一步,将裸露的卫生间墙体刷两遍防水涂料,在刷涂料的时候不要忽略墙体,最好刷至沉箱上40cm处,这一步比较重要,相当于做房子打地基的操作,保证日后即使渗水不会向四周外扩。
第二步,用红砖砌成400*400的正方形格子(我家瓦工格子砌的比较大),这个操作就相当于给房子做框架了,保证卫生间地面的承重,这一步很容易被忽略,但是小编建议最好做,否则日后地面很容易下沉出现漏水等问题。
第三步,做好框架后,就给这些小格子填充了,最好选择比较轻盈的陶粒和灰煤渣,因为它们的质地比较蓬松,能够起到吸水的作用。
注意填充时不要压得太紧实,毕竟它们只是用来吸水的,真正起到承重作用的是红砖框架。另外,很多人还在传言建筑垃圾可以作为填充物,小编在此说明,建筑垃圾是工人图方便的幌子,它作为填充物会给楼层增加负担,若是日后浸水更加是有隐患的!
第四步,填充完就要给它们铺上一层钢筋网,一般是200*200的小格子,它们的作用是使陶粒基层受力均匀。
最后,在上面倒混凝土(大约40毫米),这一步要注意下水道的斜坡操作。等干透后,连墙体一起刷两遍防水涂层。等防水层干透,再刷一遍素水泥浆,这一步操作是为了防止之后的贴砖会损坏刮花混凝土层。
[ 本帖最后由 哆瑞咪 于 2019-7-26 09:51 编辑 ]
- 来自 江苏省
- 精华 0
- 注册 2008-8-15
- 行业 学生
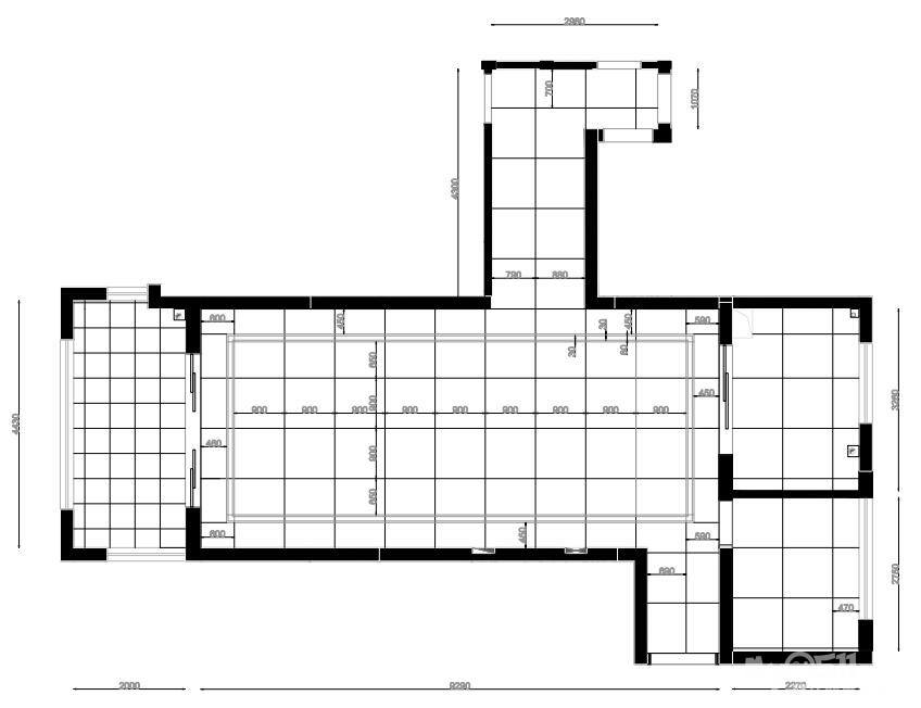
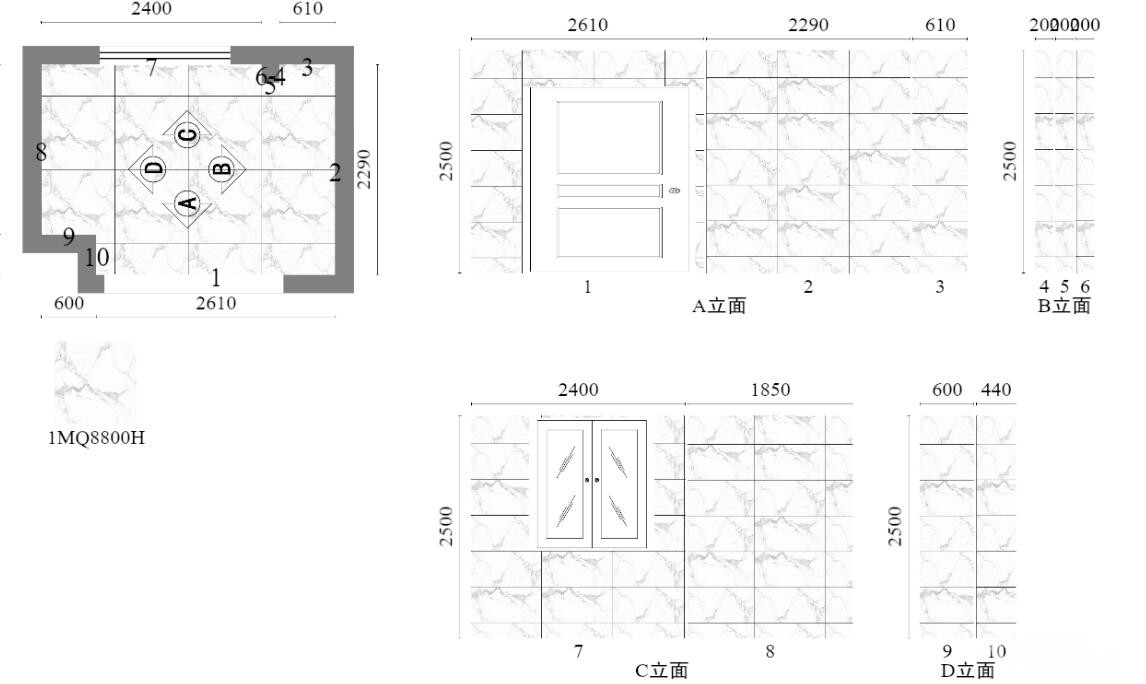
客餐厅的瓷砖布置,关于波导线的问题也是商量了蛮久的。
1.我们波导线要求走大圈,因为空调吊顶的原因,餐桌不是在餐厅吊顶区域的正下方的,如果做餐厅波导线会更加突出这一缺陷。
2.波导线也不要太多,最初设计时,进门一圈波导线,客餐厅波导线,过道还有波导线。分成还几个区域。个人还是喜欢简约一点的。不想框框太多
3.波导线是跳色好还是撞色好。跳色是对比比较强烈的,撞色是同色系不同深浅色。最终我们选择了浅灰与深灰的撞色搭配、
4.原本美式风格,想考虑柔光砖,实际看的感觉呢,柔抛砖跟人一种雾蒙蒙的感觉,用在客厅似乎不够敞亮、大气。于是客餐厅还是选择了亮光砖,阳台考虑光线充足,选择了同款式的柔光砖。
[ 本帖最后由 哆瑞咪 于 2019-7-29 11:02 编辑 ]
1.我们波导线要求走大圈,因为空调吊顶的原因,餐桌不是在餐厅吊顶区域的正下方的,如果做餐厅波导线会更加突出这一缺陷。
2.波导线也不要太多,最初设计时,进门一圈波导线,客餐厅波导线,过道还有波导线。分成还几个区域。个人还是喜欢简约一点的。不想框框太多
3.波导线是跳色好还是撞色好。跳色是对比比较强烈的,撞色是同色系不同深浅色。最终我们选择了浅灰与深灰的撞色搭配、
4.原本美式风格,想考虑柔光砖,实际看的感觉呢,柔抛砖跟人一种雾蒙蒙的感觉,用在客厅似乎不够敞亮、大气。于是客餐厅还是选择了亮光砖,阳台考虑光线充足,选择了同款式的柔光砖。
[ 本帖最后由 哆瑞咪 于 2019-7-29 11:02 编辑 ]
- 来自 江苏省
- 精华 0
- 注册 2008-8-15
- 行业 学生
- 来自 江苏省
- 精华 0
- 注册 2008-8-15
- 行业 学生
- 来自 江苏省
- 精华 0
- 注册 2008-8-15
- 行业 学生






































































