
此帖已成功报名2017家装日记大赛。更多家装信息关注MY0511家装频道
江城金甲地,云开见南山
【小区名称】:云开甲地
【所在楼层】:13
【建筑面积】:123
【装修风格】:现代简约
【包工方式】:半包
【装修公司】:荣昇装饰
【开工日期】:2017年4月12日
【装修预算】:15万
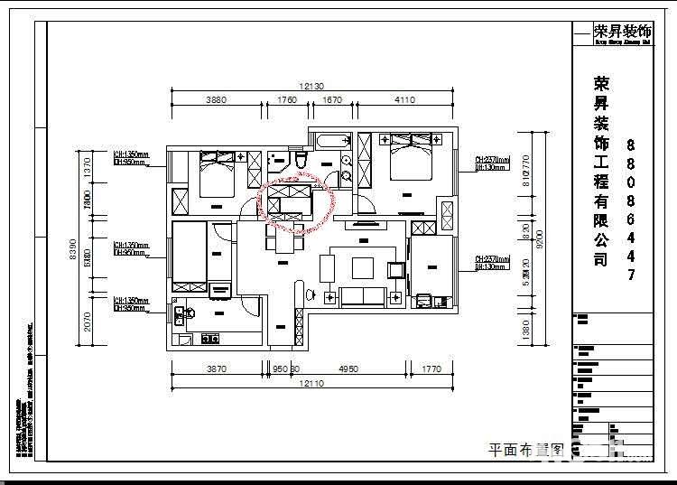
【户型图片】:

装修是件头疼事,写装修日志更是件麻烦事,语文不及格的我写装修日志简直麻烦的要死,没办法,媳妇没时间写,只能我随便写写了,不为别的,只是记录下我的小毛坯一步步变成温馨小窝的过程吧。
由于工作在外地,请了5天年假回镇江定装修的事情,交了差不多2万块给万恶的开发商和物业后终于拿到钥匙了,接下来马不停蹄的看装修公司,前前后后跑了四五家,最后定了荣晟装饰,在这里对其他几家说声不好意思了,忙前忙后帮我验房,出平面图,最后没有选择你们不是你们的设计不好,实在是因为我时间确实比较赶,所以每家装饰公司我见面第一句话就是我2-3天内要定下来,价格这块不要跟我太虚,定好设计后给我个最低价,能定我就定下来了,结果还是有几家价格天天报不一样的,每天给你降一点,太累。荣晟他们家刚开始就给了最后定下来的价格,设计师和老板人都是年轻人嘛,理念想法也比较一致,比较好沟通。所以就定了。期待陈设计的效果图了。
定的4.12号早上9:58分开工,放个鞭炮,老爸拿个锤子象征性的敲了下墙,我的装修之路就算正式开始了。。。。。。


修改后的平面图:原户型有两个卫生间连在一起,没什么必要,打通成一个大的,可以放个浴缸,然后还能增加个小的衣帽间,好像还不错的样子。。。。。。

发几张理想的风格图片:
实在写不下去了
,希望能坚持吧。


听设计师说好像要封阳台了,封阳台是什么玩意?找谁封?多少钱?疯了。。。慢慢来吧
[ 本帖最后由 dugwei 于 17-11-24 21:09 编辑 ]








,杀千刀的……今天早上去看了看进度,说实话有点缓慢,但装修公司说开槽的家里临时有事导致,好吧,谁家里还没有个突然事情呢,希望接下来赶上进度吧……开槽进度如下,各位看官姑且看看







,不过荣晟的细节还可以,水电结束后家里打扫的很干净,表扬下阿福同志






























等弄好了邀请你过来参观参观









