感谢我的父母,
因为有你们对家庭对孩子的细心照料我才能放下心来没有顾虑的去做自己想做的事;
感谢爱人,
因为你的一句想做就去做吧,还有我在,实在不行至少我的工资还能让你有饭吃,让我觉得我不是无依无靠,还有寄托;
感谢孩子,
因为你的到来,让我在30而立之年做完了此生作为女人该做的所有大事,让后半生有了为之努力的方向;
感谢我的伙伴小宋,
因为人品,让我感觉合作没有那么可怕,因为专业,让我觉得对待客户我更加有信心;因为坦白,让我觉得我们会一直一直走下去。。。。。。
感谢我们的第一个客户华都名城的郑哲,
因为你的信任,敢于做第一个吃螃蟹的人,在没任何样板房的情况下把你有可能以后的爱巢交由我们;
感谢永安新城的凌同学(我们的第三个客户),
因为你的一句我相信你们,把一个200多平方的房子交由我们来做,并且写装修日记进行记叙,使我们得到一些网友的关注与支持,并把你们的善良理解和包容让我们在这创业艰难路上倍感温暖。。。。。
。
还有很多很多,金色阳光的常姐姐,江山明洲的肖姐姐,永安新城的刘妹妹,驸马山庄的周姐姐,还有书生的顶楼,脏版的支持,所有的所有化为一句感谢都无以表达感恩之情!
哈哈,我最后可不可以也来插句广告,宏远理想,前景自创!

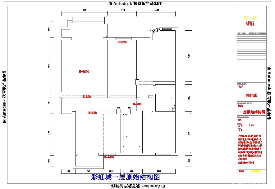
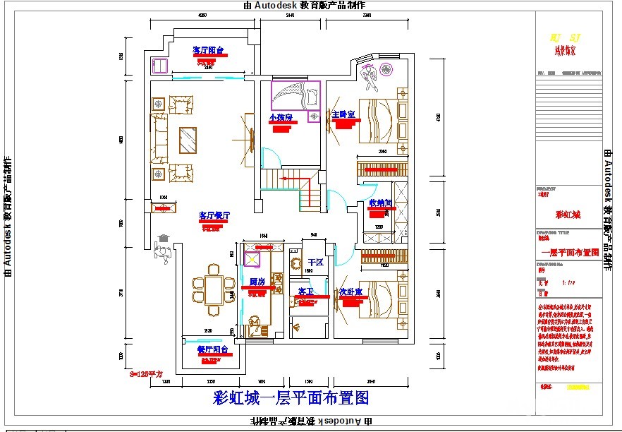
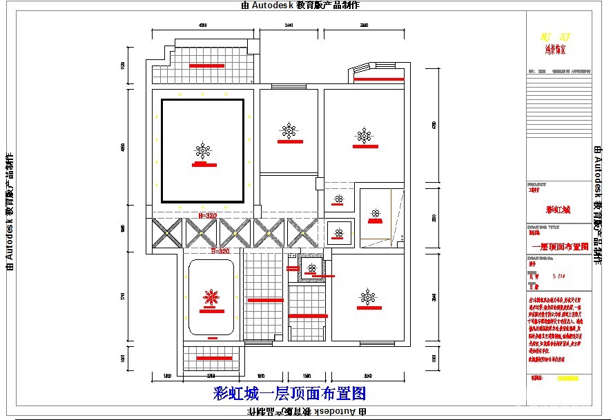
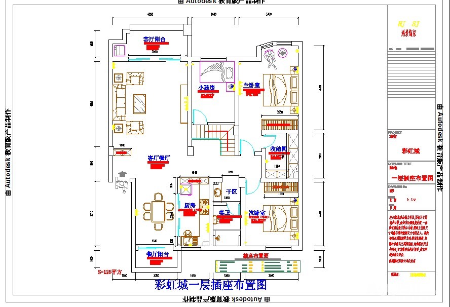
帮你在前页插入效果图供大家参考


[ 本帖最后由 【鸿景饰家】 于 13-9-15 20:55 编辑 ]
















请叫我小徐
到现在物业的装修协议还没签
没还给我









