小区名称:雅居乐涟山
建筑面积:100
装修公司:红居装饰
设计师:孟严
装修风格:北欧
每个女孩都希望有一个属于自己温暖的家,一个宠爱自己的老公,我也不例外。认识何先生,是一个神奇的开始,可能从看见对方的第一眼,我们就认定对方是那个对的人,哈哈哈。我们相约要守护对方一生一世,于是我们开启了打造我们小窝的装修历程。我一直喜欢黑白灰北欧的风格,简单清爽,低调有内涵。所以我初步把风格定为北欧啦。
何先生说:把你在装修上的遗憾和想法都放进我们未来的家,你喜欢的就是我喜欢的!(好会撩人有木有?幸福感爆棚......)
我们对比了很多家装饰公司,结合材料、工艺、设计、性价比等方面最终牵手了红居装饰,其实看到低调哥哥的帖子之后就想牵手他们家的。与设计师的交谈也十分开心,于是定下方案,定下开工日期六月十号,历时三个多月我们的小窝终于完成啦!
附带我的装修日记帖:http://bbs.my0511.com/f95b-t6404049z-1-1
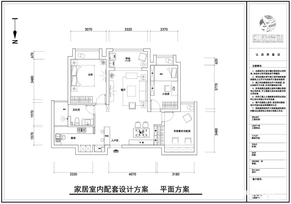
先来一张平面布置图

客厅通过时尚软装搭配出经典北欧特色;宽大的休闲阳台,营造出温馨的居家环境。电视背景墙则采用白色文化砖配合个性壁纸,墙面区域大小分割。文化砖加以黑色简约挂表,让墙面显得不会单调。

对于投影,设计之初就已决定。在我看来,闲暇时间,能和何先生看一部电影,便是段浪漫的时光。同时投影配合电动幕布的处理,让家的格调立刻高大上起来。


大爱火烈鸟挂画(被设计师说是火鸡~~~)

银桦色+一抹绿,瞬间让整个空间更加灵活。我原本以为北欧都是黑白灰的色调的,想不到这么靓丽的颜色穿插瞬间觉得整个空间活力感十足,让我对北欧风格重新定义,真的很喜欢......是我喜欢的调调......



餐厅靠墙区域采用卡座设计,靠近入户门一侧采用吧台结合鞋柜设计,外加时尚吊灯的装饰,整个空间简洁又不失大气。原木餐桌内敛而时尚,配合餐边柜,让整个餐厅区域和谐且实用。



鞋柜兼吧台的一体化设计,时尚与实用的完美结合。节省空间的同时,又起到了区域划分。

厨房则采取半开放式设计,在铁艺隔断选择上一度纠结很久,因为设计师希望更改起初设计图案,提供了图上这款需特别定制款(商家表示这是第一次制作,事实证明难度虽大,效果却不错)

大理石台面的吧台配合两张原木高脚凳,让家变得有情调起来。

黑白色菱形瓷砖铺贴带来强烈的视觉冲击,小方格白色瓷砖可以增强空间的即视感,配上深色柜门,完全不走寻常路。

卫生间墙地砖选择则采用经典元素搭配,无需过多的修饰,简洁、自然、人性化即可!

恋恋不忘的黑板墙,最终出现我的书房里,可以随意在这里涂写,享受童真的乐趣!


北欧在很大程度上追求的是自然与恬静的气息,灰白色加背景壁纸点缀,色调清新。床头高低错落的吊灯,实用且温馨。



看到我们的小窝装修顺利毕业,真的很有成就感,虽然装修有时候略感辛苦,但看到我们爱的小窝,心里还是很开心。
仅以此贴记录下我家的毕业照,相信这便是一段美好的回忆。
也感谢所有辛勤付出的人员,特别要感谢韩经理,真的辛苦了!
我和何先生的幸福生活开始啦......










[ 本帖最后由 my0511菲雪 于 18-3-22 09:15 编辑 ]





















